Plaatsing van een thermisch onderbroken aluminium venster en een stenen dorpel

  • image
  • image

De thermische onderbreking maakt het voor aluminium schrijnwerk mogelijk om aan de steeds strengere eisen op het gebied van de energieprestaties te voldoen. Teneinde een EPB-aanvaardbare plaatsing te kunnen realiseren, moet er echter rekening gehouden worden met aangepaste plaatsingseisen, zo stelt het WTCB

1. Plaatsingseisen

Om aluminium schrijnwerk op een EPB-aanvaardbare manier te kunnen plaatsen, moet men in bepaalde gevallen rekening houden met aangepaste plaatsingseisen. Zo mag bij toepassing van een stenen dorpel deze dorpel niet in contact komen met de thermische onderbreking van het vensterprofiel. Hierdoor blijft er echter slechts weinig plaats over om een EPB-aanvaardbare aansluiting te kunnen realiseren. In voorkomend geval raden de systeemleveranciers het gebruik van plaatsingsprofielen (bv. uit kunststof) aan. In wat volgt worden twee mogelijke plaatsingsoplossingen besproken waarbij er gebruikgemaakt wordt van dergelijke plaatsingsprofielen en luchtdichte omkastingen (alternatief voor de klassieke plaatsingsmethode met behulp van plaatsingsankers).

 

2. Plaatsingsoplossingen

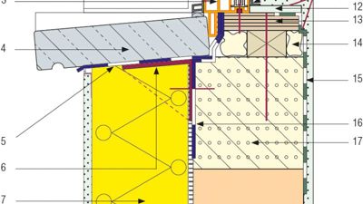
2.1. Terugliggende plaatsing in een lage-energiespouwmuur

De eerste plaatsingsoplossing betreft een terugliggende plaatsing in een lage-energiespouwmuur met metselwerkretour. Hiertoe dient de bouwchronologie aangepast te worden: eerst moet het schrijnwerk geplaatst worden, daarna moet de spouwisolatie aangebracht worden en ten slotte moet het buitenspouwblad opgetrokken worden. Het strekt tot aanbeveling om rondom de luchtdichte omkasting (11, afbeelding 1) in de spouwopening vaste isolatie (14, afbeelding 1) aan te brengen en vervolgens hierover een waterscherm (5 en 15, afbeelding 1) te bevestigen.

De aansluiting tussen het vensterkaderprofiel en het plaatsingsprofiel (3, in afbeelding 1) dient volgens de voorschriften van de systeemleverancier te gebeuren. De luchtdichtheid van de aansluiting tussen de luchtdichte omkasting en het vensterkaderprofiel enerzijds en tussen de luchtdichte omkasting en het plaatsingsprofiel anderzijds wordt verzekerd door een samengedrukte voeg of een expansieve lijm (7, afbeelding 1). De aansluiting tussen de luchtdichte omkasting en de dragende binnenmuur wordt gerealiseerd door een lucht- en dampdichte folie (of strook) (13, afbeelding 1). De membranen die in de vensteraansluitingen als lucht- en dampscherm fungeren, dienen te voldoen aan de markering die gedefinieerd werd in de geharmoniseerde productnorm NBN EN 13984.

Bij een terugliggende plaatsing in een lage-energiespouwmuur ligt de stenen dorpel (4, afbeelding 1) diep in de spouwopening en moet er een dorpelondersteuning (16, afbeelding 1) voorzien worden. Iedere dorpelondersteuning zal hierbij echter een bijkomende puntbouwknoop vormen in de vensteraansluiting. Teneinde de negatieve impact op de puntwarmtedoorgangscoëfficiënt van de consoles te beperken, kan men gebruikmaken van profielen met verhoogde warmteweerstand zoals profielen uit glasvezelversterkte kunststof (GRP, glassfibre reinforced plastic), uit polyamide, uit hout van de duurzaamheidsklasse 1 of 2 ...

 

Lees dit artikel verder op de website van het WTCB>>

Bron WTCB / CSTC

  • Deel dit artikel

Onze partners