Shortlist IPB Challenge-industriebouw: Duco (Govaert & Vanhoutte)
Langsheen de E40 ontwierp het architectenbureau Govaert & Vanhoutte een sterk staaltje ‘corporate branding’ voor het bedrijf Duco. Door de versmelting van een in het oog springend hedendaags ontwerp met de eigen technische installaties die het bedrijf ontwikkelt, werd dit nieuwe bedrijfsgebouw meteen ook het visitekaartje van de firma.

Bouwprogramma
Door de onafgebroken groei van het bedrijf Duco en de continue uitdaging om vlot in te spelen op de wensen van verschillende segmenten op de Europese bouwmarkt werd beslist om een volledig nieuw bedrijf op te richten dat zich maximaal focust op natuurlijke ventilatie- en zonweringsystemen voor de utiliteitsbouw. Om deze nieuwe tak te huisvesten, kreeg het architectenbureau Govaert & Vanhoutte de opdracht een opvallend nieuw bedrijfsgebouw te ontwerpen op een terrein van drie hectare groot dat werd aangeboden door de stad Veurne en de intercommunale WVI. Het nieuwe gebouw moest hierbij het visitekaartje worden voor Duco en haar “Green Building Solution” waarbij de combinatie van het architecturaal concept en de toegepaste natuurlijke ventilatie- en zonweringsystemen voor een minimaal energieverbruik en een maximaal gezond binnenklimaat moesten zorgen. Bovendien kregen de ontwerpers ook de specifieke opdracht om de grote zichtbaarheid van de hoekligging langs de E40 maximaal te benutten door middel van een opvallende en innovatieve architecturale compositie.
Architectonische meerwaarde
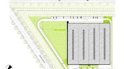
Architecturaal vertrokken de ontwerpers vanuit het idee van een ‘black box’, waarbij ze via zwart geschilderd beton trachtten aan te leunen bij de geslotenheid van de aanpalende industriegebouwen. Vervolgens situeerden ze aan de strategische scherpe hoek van het perceel een opengewerkte zijde, enerzijds gericht naar de autosnelweg A18 en anderzijds naar de Brugsesteenweg. Teneinde deze openheid concreet vorm te geven, werd binnen de ‘black box’ over twee niveaus een langwerpige insnijding gemaakt waarin zich de kantoren situeren en waar zich ook de inkompartij bevindt. Het kantoorgedeelte van het gebouw is op die manier zuid-oostwaarts georiënteerd en gaat schuil onder een uitkragend volume dat op de kopse kant uitkijkt en zodoende ook de passage langsheen de Brugsesteenweg capteert. Aansluitend op dit kantoorgedeelte werd een waterpartij voorzien, die eveneens binnen de lijnen van het omsloten zwart volume blijft. Tenslotte werd de lange betonnen oprijweg zodanig gesitueerd dat deze de perceelsgrens volgt ter hoogte van de scherpe perceelshoek, waardoor er een kwalitatieve perspectivische benadering ontstaat ten opzichte van het zwarte gebouw.

Duurzaam bouwen
Duco past eigen groene technologie toe in haar nieuw gebouw voor een comfortabel en energiezuinig binnenklimaat en tracht op die manier via haar eigen bedrijfsgebouw ‘The green building solution’ naar buiten toe uit te dragen. Niet alleen ventilatie maar ook zonnewering en night-cooling dragen bij tot een verhoogd werkcomfort. Door de juiste combinatie van deze drie elementen wordt een perfect energiezuinige en comfortabele oplossing voor een gezond en aangenaam binnenklimaat gegarandeerd. Door de architecturale zonnewering te integreren wordt de energiebehoefte sterk beperkt. Hetzelfde geldt voor de night-cooling: de koele nachtlucht komt binnen via geluidsdempende Duco roosters en door vele betonoppervlaktes naakt te laten kan hierbij gebruik gemaakt worden van de thermische inertie. Verder wordt het dagventilatiesysteem aangestuurd door een CO2-sensor.
Innovatief
Binnen dit opvallende bedrijfsgebouw is vooral het samenspel tussen architecturaal concept en technische installaties innovatief. Beiden werden maximaal op elkaar afgestemd om een zo klein mogelijk energieverbruik te realiseren. Hiertoe werd doelbewust geopteerd voor een compacte bouw, voor een grote hoeveelheid inerte materialen, voor natuurlijke zonwering met architecturale meerwaarde en voor natuurlijke ventilatie en koelingsystemen. Bovendien wordt de dakoppervlakte maximaal benut voor zonnepanelen, waardoor dit gebouw 100% energieneutraal is naar elektriciteitsbehoefte. Tenslotte wordt ook getracht zo veel mogelijk stroompieken in de productie te vermijden en wordt restenergie van compressoren en gasstookinstallatie gerecupereerd om de verwarming te voeden. Als resultaat van al deze ingrepen ontstaat een energiezuinig industrieel gebouw met de garantie voor werknemers van een gezond en comfortabel binnenklimaat zonder energieverslindende installaties als airco.
Troeven
Het gebouw is zodanig ingeplant dat het visueel kan benaderd worden vanop de autosnelweg A18 en de Brugsesteenweg. Het monochroom zwart aspect van de gevels zorgt ervoor dat het pand abstract en sober opvalt in zijn omgeving, waardoor het langsheen de verkeersassen in het oog springt als eerste gebouw van de achter- en nevenliggende bedrijfsgebouwen. Ook op het terrein zelf zorgt het lusvormige pad voor een architecturale benadering langsheen het gebouw. De grootste troef van het gebouw is echter de toepassing van de eigen groene technologie om zo een comfortabel en energiezuinig binnenklimaat te realiseren. Door de succesvolle toepassing van haar eigen energiezuinige systemen is het gebouw meteen ook hét visitekaartje voor Duco’s producten.

Technische Fiche
Naam van het project: Duco Ventilation & Sun Control
Adres: Bedrijvenlaan 2
Datum ingebruikname: 01/06/2008
Naam ontwerpers: Architectenbureau Govaert & Vanhoutte


