Staalbouwwedstrijd: Fiets- en voetgangersbrug in Knokke door Ney & Partners
De unieke en ranke constructie voor de brug, ontworpen door ingenieursbureau Ney & Partners, over de drukke Elizabethlaan en de tramsporen in Knokke werd beloond met de prijs in de categorie ‘Burgelijke bouwkunde' van de Staalbouwwedstrijd 2010.

De fietsers- en voetgangersbrug ‘De Lichtlijn’, 107 m lang en 3 m breed, wekt de indruk uit één grote staalplaat gesneden te zijn. De vorm van de brug doet denken aan een golfslag op zee. De link met de naastliggende Noordzee wordt nog benadrukt door de gekozen kleuren: zeezand voor de bovenzijde, lichtblauw voor de onderzijde van de staalstructuur van de brug. De speciale vorm vloeit voort uit de statica en de fysica: al het overbodige materiaal wordt als het ware weggesneden. Toch blijft het resultaat poëtisch.
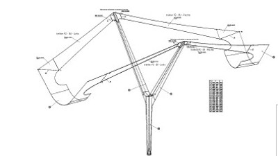
In grondplan beschrijft de brug een cirkel met straal van 80 m. Het gaat om een quasi-symmetrische brug, bestaande uit drie overspanningen. De complex ogende geometrie van de brug kan herleid worden tot vlakke platen boven het brugdek en gekromde platen eronder. Knikbuigen van de platen was niet toegestaan. De verschillende platen worden vervolgens samengevoegd tot een groter geheel door middel van volle weerstandslassen. De brugdekschaal vormt een vloeiende lijn in de ruimte, maar wordt uitgevoerd in facetten. Het aangewende staal voor de brug is quasi uitsluitend S355 J2G3.

Omwille van de complexiteit van de geometrie, is het brugdek in 5 grote delen in de ateliers gefabriceerd en vervolgens met speciale transporten naar de werf gevoerd. Deze grotere gehelen worden ten slotte op de werf geassembleerd.
De twee pijlers die de brug ondersteunen staan loodrecht op de as van het brugdek. Deze pijlers zijn via vlakke platen - die dienst doen als trekkers - verbonden met de brug en zijn onderaan scharnierend uitgevoerd. Ter hoogte van beide landhoofden is een inklemming gerealiseerd. De pijlers zijn samengesteld uit staalplaat van 40 en 50 mm dikte. Het probleem van de eigenfrequentie dat vaak voorkomt bij dergelijke lichte bruggen - 108 ton staal - wordt opgelost door de toevoeging van massa in de schaalstructuur van de brug.
Vermits de staalstructuur zich vlakbij de zee bevindt, werd geopteerd voor een corrosiebelastingscategorie C5M, waarbij een 5 lagen-corrosiesysteem werd toegepast met een totale laagdikte van 320 μm.

Motivatie van de jury:
Tegelijk baken en sculptuur in de ruimte, doet deze fiets- en voetgangersbrug dienst als stadspoort. Haar ontwerp en haar architecturale kwaliteiten vloeien voort uit de technische eigenschappen van staal. Haar vederlichte structuur is de uitgepuurde uitdrukking van een logica die is gestoeld op de aanwending van één enkel element: een versneden en gelaste staalplaat.
Technische fiche: Fietsers-en voetgangersbrug ‘De Lichtenlijn’
Plaats: Elizabethlaan, Zeebrugge / Knokke - Heist
Opdrachtgever: Vlaams Ministerie van Mobiliteit en Openbaar Werken - IVA Maritieme dienstverlening en kunst, Oostende
Architect: Ney & Partners, Brussel
Studiebureau: Ney & Partners, Brussel
Algemene aannemer: Herbosch Kiere, Kallo
Staalbouwer: Victor Buyck Steel Construction, Eeklo
