Urban Dots Studio tekent nieuwe jeugdlokalen in Hasseltse wijk Runkst

  • image
  • image

Na jaren voorbereiding krijgt de Hasselste wijk Runkst nieuwe jeugdlokalen. De verouderde lokalen blijven staan, tot na de opening van de nieuwbouw, in 2021. Het Hasseltse Urban Dots Studio stond in voor het ontwerp, Nescon voor de stabiliteitsstudie en Sensenergy en Deltha Engineering voor respecitievelijk de EPB en Technieken. “Aangezien het project bedoeld is voor jeugdbewegingen, maakten we gebruik van veel robuuste materialen, zoals gegoten beton en hout. Het gebouw kan tegen een stootje”, vertelt architect Ruben Hermans. 

De bestaande jeugdlokalen aan de Bakkerslaan staan er al sinds de jaren 70 en hebben hun beste tijd gehad. Onder meer Autisme Limburg en Arktos vinden er onderdak. Op de nieuwe site zal daar nog KSA Runkst bijkomen, maar het is de bedoeling de nieuwbouw ook open te stellen voor andere jongerenorganisaties of -initiatieven. Ook het idee een jeugdhuis onder te brengen in het nieuwe gebouw, ligt op tafel. Daarop werd al geanticipeerd met een wat groter lokaal voor kleine evenementen, met een bar. Ook een keuken wordt voorzien in de nieuwbouw.


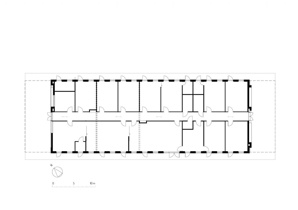
Flexibel ontwerp

Het ontwerp is van de hand van Urban Dots Studio en kenmerkt zich door een grote flexibiliteit. “Met uitzondering van de muren van de centrale gang en het sanitair werkten we met verplaatsbare, holle wanden”, vertelt architect Ruben Hermans. "Daardoor kan de indeling van het gebouw zonder veel ingrijpende werken aangepast worden aan nieuwe noden en functies. Zo zal bijvoorbeeld Autimse Limburg, een organisatie die een sterke groei kent, niet op haar limieten botsen in haar nieuw onderkomen. Maar jeugdorganisaties en -verengingen kunnen evengoed afslanken, waardoor de huidige lokaalverdeling en zelfs de gebouwfunctie in de toekomst niet verzekerd is. Die insteek had ook voor de architectuur aan de buitenkant gevolgen. “De gevel is opgedeeld in identieke traveeën die het aanpassen van de lokaalgroottes faciliteert.”


Dak vormde uitdaging

“Aangezien het project bedoeld is voor jeugd en dus tegen een stootje moet kunnen is er voor de vaste constructie veel gebruikgemaakt van robuuste materialen zoals gegoten beton en hout”, legt Hermans uit. “Vooral voor de dakconstructie was dat een uitdaging. Die moest immers zeer licht zijn omwille van de grote overspanningen, maar toch robuust. Door het gebruik van speciale, gelamineerde dakliggers konden we het gewicht, maar ook de montagetijd, drastisch verminderen. Bovendien is er geen eindafwerking nodig voor een strak resultaat en akoestische werking. De liggers bestaan immers uit twee lagen beplanking met voorgespannen spaanplaten in de kern.”


Gebruik van zon en bodemwarmte

Het gebouw voldoet aan alle duurzaamheidsnormen die vandaag gelden. “Grondwater zal opgepompt worden om het gebouw te verwarmen. Naast het gebruik van bodemwarmte, zal ook de zon worden gebruikt als energiebron. Door het hele dakoppervlak te vullen met zonnepanelen zal het gebouw nagenoeg zelfvoorzienend zijn op vlak van energie. De HVAC en technieken zijn dan weer aanpasbaar aan de veranderende indeling van het gebouw”, besluit Hermans.


Speelplein op oude locatie

In 2020 vatten de werken aan. De huidige, verouderde jeugdlokalen worden na de opening van de nieuwbouw in 2021 afgebroken. De vrijgekomen oppervlakte wordt omgevormd tot een speelplein voor de buurt.

  • Deel dit artikel

Onze partners