Vernieuwd stedelijk wonen in voormalige wasserij in Berchem (Stramien cv)

  • image
  • image
  • image
  • image
  • image

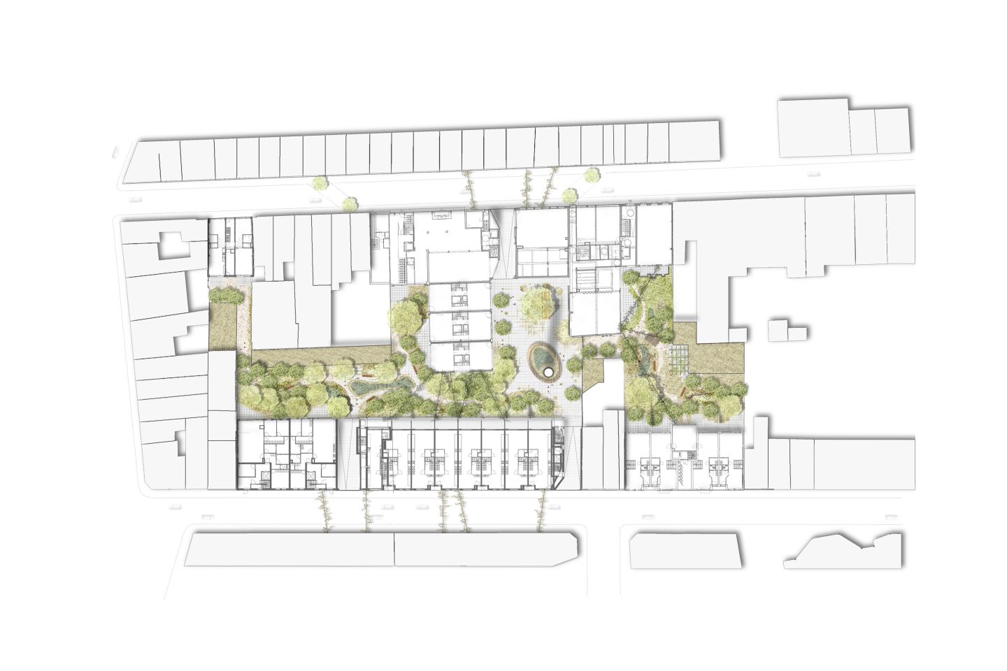
Op de voormalige site van Wasserij Goossens in Berchem ontwierp STRAMIEN architectuur & ruimte CV een vernieuwend stedelijk woonproject. Een gevarieerd woningaanbod, met aandacht voor de industriële configuratie rond groene stadsnatuur ligt aan de basis van het ontwerp voor ‘de Wastuin’. Het industriële karakter van de wasserij blijft voelbaar. Onder meer de schouw wordt gerestaureerd en geïntegreerd in de nieuwe binnentuin, die ingericht wordt als een nieuw stukje stadsnatuur. Het geheel komt gepast tegemoet aan de recente en gevarieerde woningvraag in onze steden.

De site wordt een interessante bouwplaats voor een nieuwe woonontwikkeling in de stad. Een gevarieerde woningtypologie met aandacht voor de industriële configuratie rond groene stadsnatuur ligt aan de basis van het ontwerp voor ‘de Wastuin’. Stramien kiest hierbij weloverwogen voor een combinatie van sloop waar het nodig is, behoud waar het nog kan en nieuwbouw als toegevoegde waarde. Het industriële karakter van de oude wasserij blijft voelbaar door de restauratie van de bakstenen schouw en de herbestemming van enkele magazijnen, terwijl nieuwe woonvolumes aan de straatzijde zich inschrijven in de typische architectuur van deze wijk; een integratie op twee gevellijnen.


Divers woningaanbod

Het project omvat een zeer divers aanbod aan woonvormen met compacte stadswoningen voor jonge gezinnen en een cohousingproject voor circa 25 gezinnen met gedeelde leefruimte voor ontmoeting, (thuis)werken en ontspanning en centraal in het project, de voormalige loodsen van de wasserij als atelierwoningen. Hierin worden wonen en werken gecombineerd. Tenslotte is er een ruim aanbod aan kleine tot middelgrote appartementen gespreid over het project. Het geheel komt gepast tegemoet aan de woningvraag in onze steden.


Stadsnatuur

Bij de uitwerking van het project gaat de aandacht van de ontwerpers ook naar de open ruimte tussen de gebouwen. De groene binnenruimte tussen de woningen wordt met stadsnatuur ingericht. Deze ‘Wastuin’ wordt gedeeld door alle bewoners. Met een rijkdom aan begroening zorgt de tuin voor rust en verbinding tussen de bewoners en genereert verschillende ecosysteemdiensten. Biodiversiteit op een kleine stedelijke schaal brengt in dit project iedereen dichter bij de natuur en bij mekaar.


Impuls voor de wijk

Dit project is ambitieus en ingetogen tegelijk. Het hanteert op een doordachte manier verdichting in de stad en wil woonkwaliteit maximaal koppelen aan een helende omgeving met respect voor ons collectief verleden. Samen met andere stedelijke initiatieven in de buurt geeft de Wastuin een nieuwe identiteit en impuls aan de wijk.

Bron Stramien

  • Deel dit artikel

Onze partners