Voorpostkazerne Berendrecht verenigt publieke missie met woonopgave

  • image
  • image
  • image
  • image
  • image
  • image
  • image
  • image

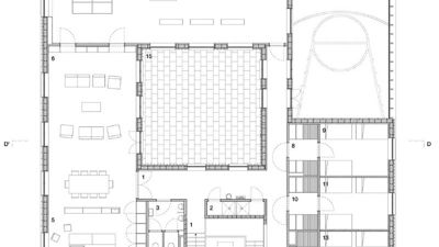
De nieuwe brandweerkazerne in Berendrecht in opdracht van AG Vespa is ontworpen door Bovenbouw architectuur en werd vorig jaar opgeleverd. De kazerne verenigt een publieke missie met een woonopgave. Deze brandweerkazerne is een loods met daarop een huis.

De kazerne streeft volgens de ontwerpers niet naar een directe formele gelijkenis met de naastgelegen hangars, maar beoogt eerder een synthese van het karakter van havengebouwen. Lichte hoogteverschillen tussen de gebouwdelen op de bovenverdieping articuleren de woonlaag. Het buitensportveld steekt wat boven het dakenlandschap uit. Het markeert de hoek die het best zichtbaar is vanaf de snelweg. Zo functioneert het volume niet enkel als front naar de straat, maar ook als object voor passanten op de A12.

 

Penthouse in een unheimliche omgeving

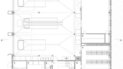
De leefruimtes, de slaapkamers en de keuken liggen rondom een patio: de bovenste verdieping wordt zo een intieme penthouse in een unheimliche omgeving. De patio heeft niet enkel een visueel motief, ook geur en omgevingsgeluid zijn er minder aanwezig. Een klein hoekvolume in de patio dient voor de daalbuis, de enige rechtstreekse verbinding tussen de garage en de penthouse.

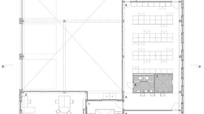
De fitnessruimte wordt geflankeerd door een tweede buitenruimte voor sportactiviteiten. Dit buitensportveld heeft een transparante bekleding en laat zo –anders dan de patio – wél een relatie met de buitenwereld toe. Die relatie wordt bestendigd door de buitentrap. Via deze weg kunnen de brandweerlieden rechtstreeks naar de parking. Een open trap verbindt de penthouse met de kantoren. De kantoren kunnen gezien worden als een overgangszone tussen het wonen en het hardere programma. Van hieruit is er een visuele relatie met de brandweerwagens, en met de straat. Op de tussenlaag bevinden zich ook de kleedruimtes, de douches en de EHBO. Beneden liggen de functies geplooid rondom de garage. Een zijdelingse dienstingang sluit aan op het parkeerterrein en de fietsenberging.

 

Voorbeeldfunctie qua duurzaamheid

De brandweervoorpost kent een belangrijke voorbeeldfunctie op vlak van duurzaamheid. Niet alleen door doorgedreven isolatie, met vlasvezel en inblaasisolatie op basis van papiervlokken, maar ook door de materialiteit. De volledige gevelopbouw en de structuur van de bovenste verdieping bestaan uit duurzaam ontgonnen hout (FSC). Het aanwezige ventilatiesysteem voorziet warmteterugwinning. Verwarming gebeurt door een pelletkachel. Er is een systeem voor regenwaterrecuperatie en een rietveld om het afvalwater te zuiveren. Een zonneboiler op het dak verwarmt het water voor de douches.

  • Deel dit artikel

Onze partners