WE-S architecten actualiseert begijnhoftypologie met Brugs starterswoningproject ‘Ten Boomgaard’
- 24 augustus 2023
- Laatste update: 29 januari 2025
-
© Nicolas da Silva Lucas
-
© Nicolas da Silva Lucas
-
© Nicolas da Silva Lucas
-
© Nicolas da Silva Lucas
-
© Nicolas da Silva Lucas
-
© Nicolas da Silva Lucas
-
© Nicolas da Silva Lucas
-
© Nicolas da Silva Lucas
-
© Nicolas da Silva Lucas
-
© Nicolas da Silva Lucas
-
© Nicolas da Silva Lucas
-
© Nicolas da Silva Lucas
-
© Nicolas da Silva Lucas
-
© Nicolas da Silva Lucas
-
© Nicolas da Silva Lucas
-
© Nicolas da Silva Lucas
-
© Nicolas da Silva Lucas
-
© Nicolas da Silva Lucas
-
© Nicolas da Silva Lucas
-
© Nicolas da Silva Lucas
-
© WE-S architecten
-
© WE-S architecten
-
© WE-S architecten
-
© WE-S architecten
-
© WE-S architecten
-
© WE-S architecten
-
© WE-S architecten
-
© WE-S architecten
-
© WE-S architecten
-
© WE-S architecten
-
© WE-S architecten
-
© WE-S architecten
-
© WE-S architecten
-
© WE-S architecten
-
© WE-S architecten
-
© WE-S architecten
-
© WE-S architecten
-
© WE-S architecten
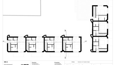
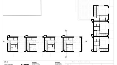
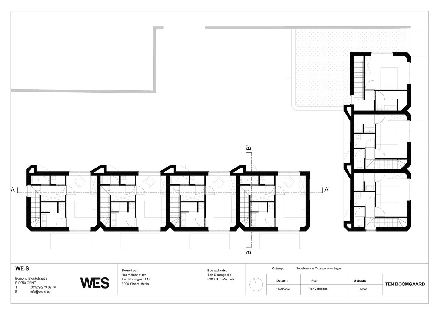
Op een hoekperceel in de Brugse deelgemeente Sint-Michiels, op een steenworp van de Kerkebeek, realiseerde het Gentse ontwerpbureau WE-S architecten het woonproject ‘Ten Boomgaard’. Het project omvat zeven starterswoningen, gegroepeerd rond een collectieve binnentuin volgens de begijnhoftypologie.
Ontwerp
De maximale bouwenveloppe wordt aan de noordzijde afgebouwd zodoende aan te sluiten op de aanpalende buren (STAP 1). Deze ingreep optimaliseert de daglichttoetreding in de collectieve tuin. Aan de zuidzijde wordt het bouwblok opgedeeld in 2 autonome volumes die enerzijds de gemeenschappelijke parking ontsluiten, anderzijds de fietsenstalling en de binnentuin (STAP 2). Beide volumes worden aan de hand van flauw aflopende daken en verticale insnijdingen verder verschaald tot een schakeling van compacte rijwoningen voor starters, jonge koppels en alleenstaanden (STAP 3).
Materialen
Het project tracht op verschillende manieren de typologie van het traditionele begijnhof met kleinschalige woningen, gegroepeerd rond een collectieve tuin, te actualiseren. Niet enkel de planschikking maar ook de materialisatie refereert op subtiele manier aan de traditionele vormgeving van de begijnwoning. Zo wordt de plint wordt uitgewerkt in een genuanceerd bruin gevelparement. De bovenbouw wordt uitgevoerd in een bleke baksteen die wordt gechipperd. De ramen op het gelijkvloers, evenals de inkomdeur worden afgewerkt met een rollaag die de plint vervoegt. De inkom ter hoogte van de collectieve tuin wordt geaccentueerd aan de hand van een luifel die samen met de uitpandige schouw en het verhoogde terras, de toegang tot iedere woning verbijzondert (STAP 4).
Artikels
Projecten
Dossiers
Architectura nieuwsbrief
Meteen op de hoogte van het laatste architectuurnieuws?
De Architectura-nieuwsbrief biedt een boeiende mix van actualiteit, projectbeschrijvingen, opiniestukken, productinnovaties, info over evenementen, maar video's, podcasts en zoveel meer.
Schrijf je nu in en ontvang onze wekelijkse nieuwsbrieven in jouw mailbox.
AbonnerenMeest recent
-
B-architecten transformeert gesloten schoolblok in Temse tot open woonwijk Gustave
-
WIT architecten en Miss Miyagi tranformeren Mechelse panden tot sociaal-circulair project Impact Factory
-
COLUMN. Wat een ruimtelijk dieet kan doen voor klimaatbestendigheid - Dimitri Minten (RE-ST)
-
Seminarie belicht injectietechnieken voor waterdichting van betonconstructies
-
Concept van Sweco, BAU, Atelier Jéol en Erfgoed en Visie voor Meir in Antwerpen goedgekeurd
-
Van dakafval naar grondstof: bitumineuze dakafdichting zet stap richting circulariteit
-
Elektrische veiligheidssloten ondersteunen zorgomgeving in FPC Antwerpen
-
LEZING. Miss Miyagi & WIT architecten (CCHA, 25 maart 2026)
-
OPINIE. De “vergunningsrevolutie”: hoe natuur in Vlaanderen stap voor stap wordt afgebouwd (Peter Bossu)
-
Duurzame oplossing maakt ‘bouwen op een postzegel’ mogelijk