WIT architecten ontwerpt therapietoren van UZ Pellenberg

  • image
  • image
  • image
  • image
  • image
  • image
  • image

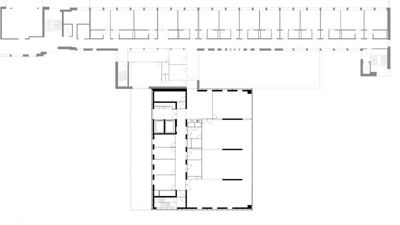
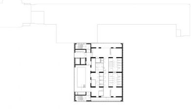
Het Universitair Ziekenhuis Pellenberg moet tegen 2017 een gespecialiseerd revalidatiecentrum huisvesten. WIT architecten stelde hiervoor het masterplan op en de nieuwbouw therapietoren is de eerste fase van het plan. De toren omvat alle therapieruimten in een verticale stapeling van oefen – en behandelzalen, een kine- en fitnesszaal, een therapiebad en sporthal.

De doorlopende verticale elementen zoals liften trappen en kokers bevinden zich in één smalle structuurzone die het gebouw de nodige windstabiliteit geeft. De overblijvende brede zone kan op die manier reageren op programma en omgeving. De zesde verdieping is een volledig stijve vierendeelligger en maakt een sport- en kinezaal mogelijk die vrij is van structuur.

 

Kasteelpark

Door de stapeling van verschillende verdiepingshoogtes legt de toren een link met het omringende kasteelpark en het bestaande beddenhuis. De toren graaft zich eerst drie verdiepingen in de berg en heeft door het hellende terrein op elk van deze verdiepingen aansluitingen naar het park. Vervolgens zijn er vier verdiepingen die gekoppeld zijn aan het beddenhuis en waar de hoogte van de verdieping bepaald wordt door het bestaande gebouw. Boven het beddenhuis zijn er grote zalen en vergezichten over het park en de bebouwing heen. De stapeling is een structuur die bijna zonder verdere afwerkingen in gebruik kan genomen worden.

 

Modulaire jurk

De afwerking van de ‘corpus’ is eenvoudig met isolatie en cementering waar de corpus met de voeten in het park staat. Hogerop wordt een roestbruine modulaire ‘jurk’ toegevoegd van cortenstalen panelen, schrijnwerk en roosters.

Als eerste fase in het masterplan is de toren ook de nieuwe energiecentrale van de toekomstige campus. Er werd een systeem ‘op de groei’ bedacht dat bij iedere fase uitgebreid kan worden. Het groeperen van de technieken en de schakeling van kleinere productie-units maakt steeds een goed rendement mogelijk. De toren zelf is uitgerust met automatisch openende ramen voor free cooling tijdens de zomer.

  • Deel dit artikel

Onze partners