Brandweervoorpost Berendrecht

  • image
  • image
  • image
  • image
  • image
  • image
  • image
  • image

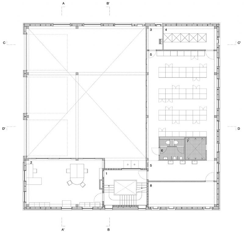
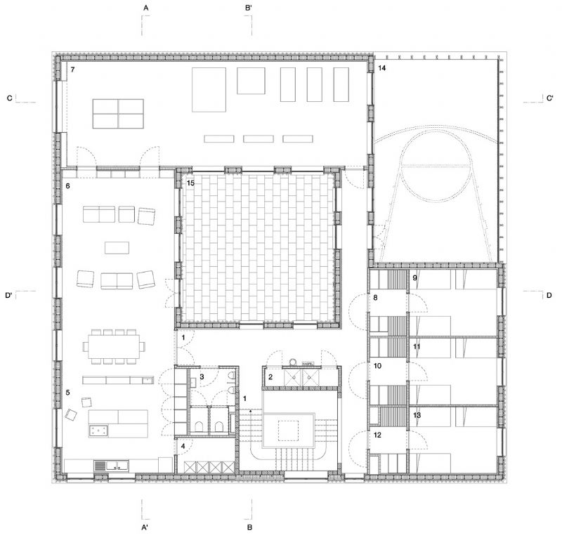
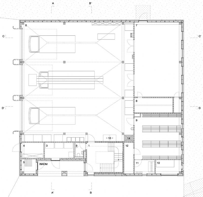
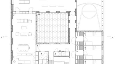
Een brandweerkazerne verenigt een publieke missie met een woonopgave. Deze brandweerkazerne is een loods met daarop een huis. Midden in het huis biedt een patio wat beschutting in de rauwe omgeving van de Antwerpse haven. Het gebouw bestaat grotendeels uit hout: een weloverwogen keuze.

De kazerne is er één van de meest ecologische in Vlaanderen: zo is alles extra geïsoleerd, wordt het water via een zonneboiler op het dak verwarmd en bestaat de verwarming uit pellets, een milieuvriendelijke brandstof, gemaakt van houtafval.