Brunfaut 35

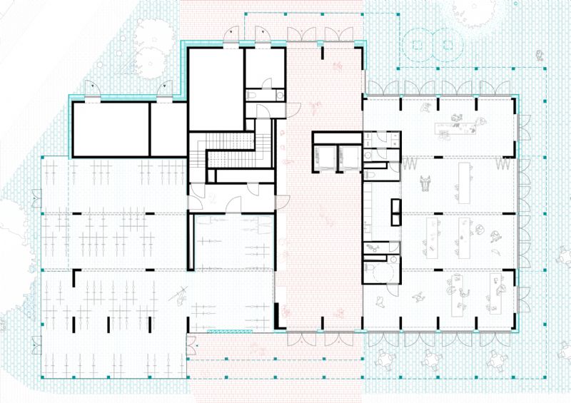
Het project betreft een energetische renovatie van een bestaande woontoren van 93 sociale woningen in de Kanaalzone van Brussel. Hierbij worden zowel de gevel als de technieken aangepast  aan de huidige normen. Het project omvat daarnaast een grondige transformatie van het gelijkvloers door de relatie met de omgeving zoveel mogelijk te optimaliseren.