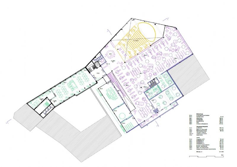
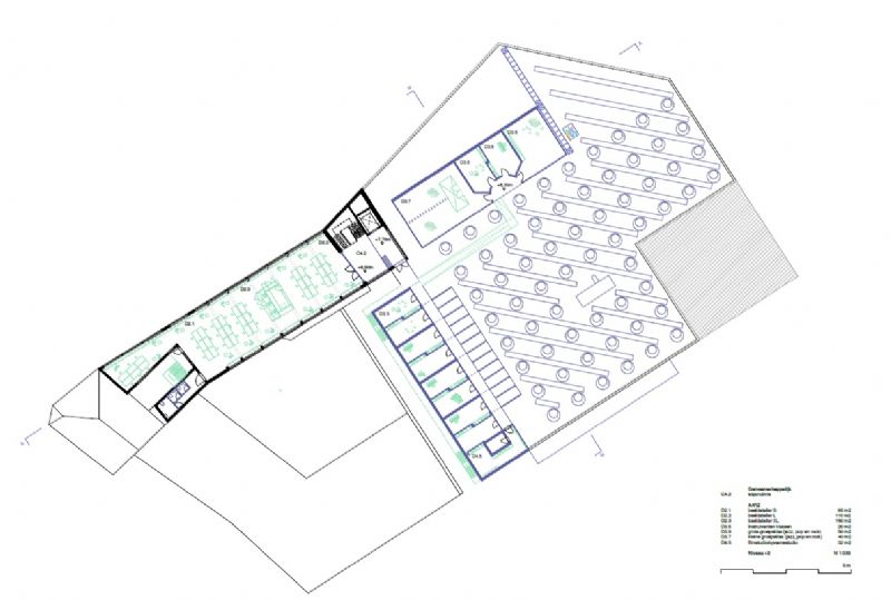
Cultuurfabriek
Het bouwprogramma wordt bepaald door een hybride combinatie van verschillende gebruikers. Aangezien enkele van de belangrijkste openbare gebouwen van de stad stilaan verouderden, te klein of ontoereikend zijn voor de huidige vraag, heeft de Stad Izegem besloten de Openbare Bibliotheek, de kunstacademie Art'IZ en het Stadsarchief te bundelen tot een nieuw cultureel centrum binnen de bestaande structuur van de prachtige drukkerij in het hart van Izegem. De synergie tussen deze instellingen resulteert in een maatschappelijk geheel, waarin elke Izegemnaar is opgenomen.
