Duurzame sociale woningen St-Agatha-Berchem
- Sint-agatha-berchem (Brussel)
- Bekijk op Google Maps
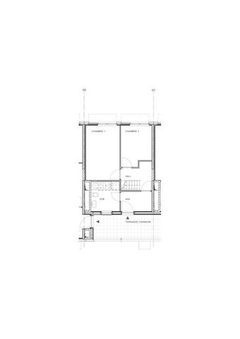
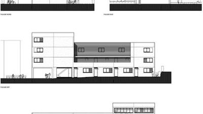
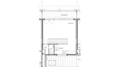
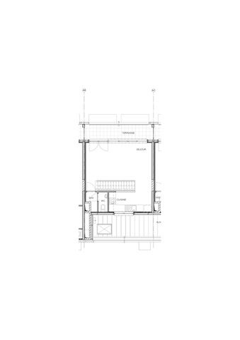
Voor de Société du logement de la Région Bruxelles-Capitale heeft Buro II & ARCHI+I een complex van duurzame sociale woningen ontworpen op twee locaties, 'Termonde' en 'Gérance', in Sint-Agatha-Berchem. In totaal zijn er 75 woningen gerealiseerd in samenwerking met een team van adviseurs en bedrijven.
