Flanders Business School Antwerpen
- Antwerpen (Antwerpen)
- Bekijk op Google Maps
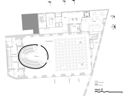
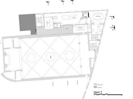
Flanders Business School (FBS) vierde onlangs de ingebruikname van de nieuwe campus in Antwerpen. Het bouwproject betreft twee negentiende-eeuwse panden op de hoek van de Sint-Katelijnevest en de Korte Nieuwstraat. Deze gebouwen vormen één geheel en zijn op alle verdiepingen verbonden. Ze zijn beschermd als monument sinds 1981. De panden stonden leeg en bevonden zich in precaire staat. BURO II & ARCHI+I i.s.m. Jan De Vloed stonden in voor het ontwerp.
