Gaudium
- Dilbeek (Vlaams-Brabant)
- Bekijk op Google Maps
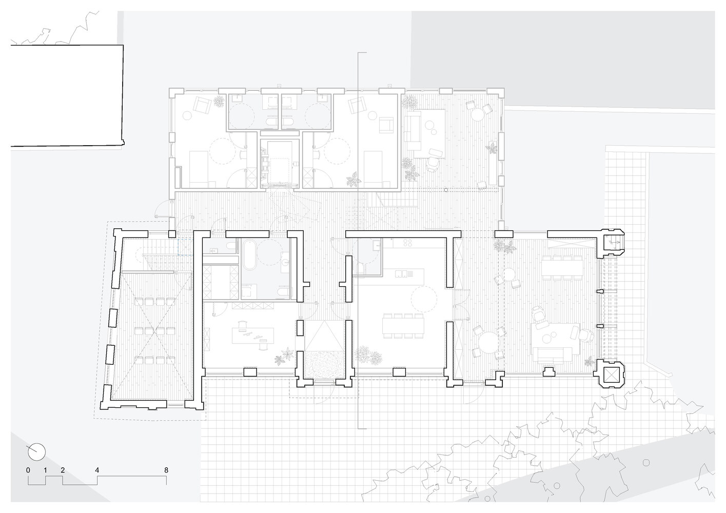
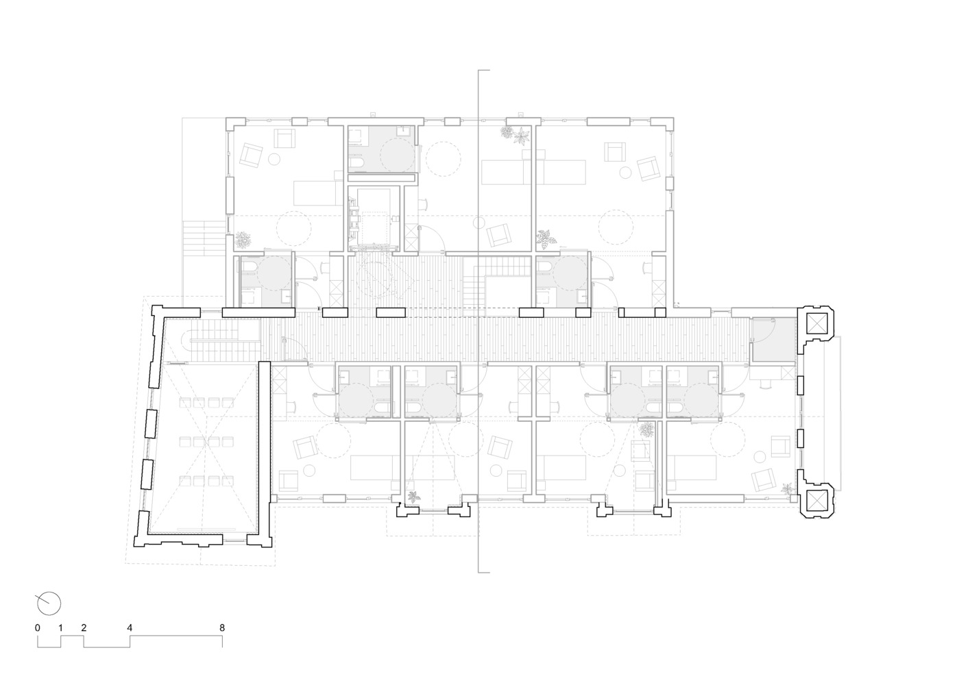
In het dorp Sint-Ulriks-Kapelle in het hart van het Pajottenland ligt een voormalig kasteeldomein waar de VZW De Verlosser en de zusters huizen. Het parkdomein is beschermd erfgoed en omvat naast het landhuis ook koetshuizen, een boerderij, aalmoezenierswoning,... Om ook in de toekomst kwaliteitsvolle ouderenzorg te kunnen aanbieden, heeft het Brusselse ontwerpbureau PLUSOFFICE een masterplan gemaakt dat het kasteel- en beschermde parkdomein versterkt en de krijtlijnen uitzet voor de verdere uitbouw van een woonzorgcentrum met 150 bedden.
 
			 
                             
                             
                             
                             
                             
                             
                             
                             
                             
                             
                             
                             
                             
                             
                             
                             
                             
                            