Kantoor- en bedrijfsgebouw Haasrode
- Oud-heverlee (Vlaams Brabant)
- Bekijk op Google Maps
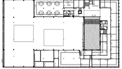
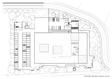
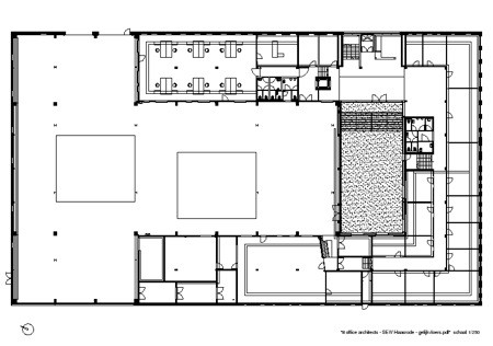
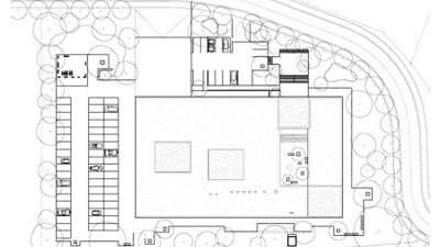
8 Office Architects realiseert een nieuw kantoor- en bedrijfsgebouw te Haasrode
Meteen op de hoogte van het laatste architectuurnieuws?
De Architectura-nieuwsbrief biedt een boeiende mix van actualiteit, projectbeschrijvingen, opiniestukken, productinnovaties, info over evenementen, maar video's, podcasts en zoveel meer.
Schrijf je nu in en ontvang onze wekelijkse nieuwsbrieven in jouw mailbox.
Abonneren8 Office Architects realiseert een nieuw kantoor- en bedrijfsgebouw te Haasrode
Architect
Studiebureau
Nog geen account? Registreer hier
Wachtwoord vergeten? Reset wachtwoord