Kasteel Boekenberg Deurne
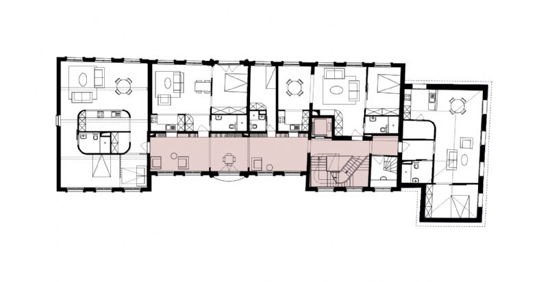
Het Kasteel Boekenberg is beschermd als monument en is gelegen in een beschermd cultuurhistorisch landschap. Het rococogebouw werd in het midden van de 18de eeuw ontworpen door architect Jan Pieter van Baurscheit als hof van plaisantie. Het kasteel zal omgevormd worden tot een cohousingproject voor senioren vanaf ca. 50 jaar.
