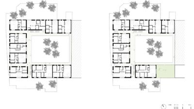
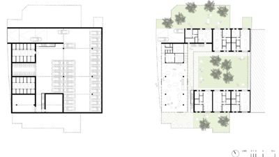
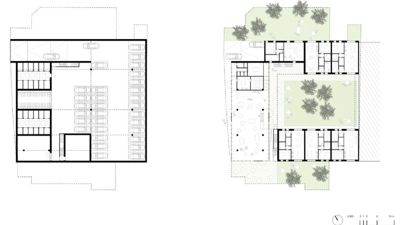
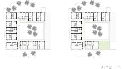
Lepelhof
- Mortsel (Antwerpen)
- Bekijk op Google Maps
Het architectenbureau Veelaert Architecten zorgt voor het nieuwe ontwerp van het Lepelhof in Mortsel. De bouwwerken, die nog te plannen zijn, gebeuren in opdracht van De Ideale Woning, dat erkend wordt door de Vlaamse Maatschappij voor Sociaal Wonen (VMSW).
