Muziekkapel Koningin Elisabeth
- Waterloo (Waals Brabant)
- Bekijk op Google Maps
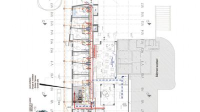
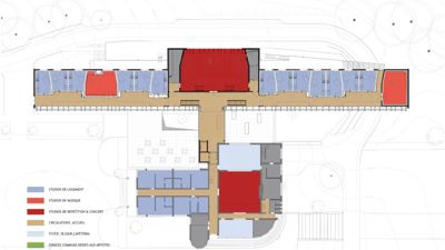
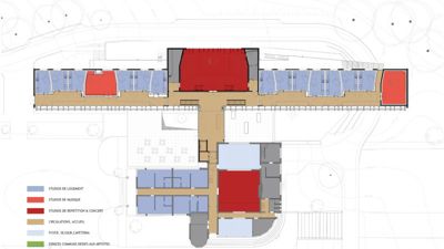
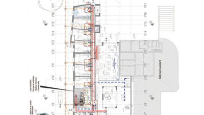
Eind vorige maand, in januari 2015 en zo’n 75 jaar na de oprichting van de Muziekkapel, is de nieuwe Launoit-vleugel van de kapel feestelijk geopend. Voor de infrastructuuruitbreiding van de Muziekkapel werd gekozen voor studie- en architectenbureaus Synergy International en L’Escaut, gespecialiseerd in culturele infrastructuren en gebouwen met een hoge milieuwaarde.
