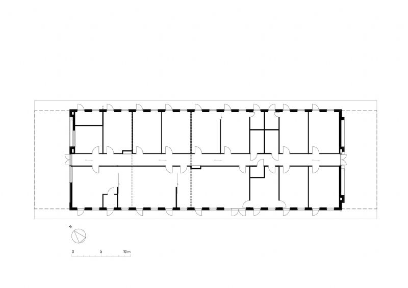
Nieuwe jeugdlokalen Runkst
Na jaren voorbereiding krijgt de Hasselste wijk Runkst nieuwe jeugdlokalen. De verouderde lokalen blijven staan tot na de opening van de nieuwbouw, in 2021. Het Hasseltse Urban Dots Studio stond in voor het ontwerp. Aangezien het project bedoeld is voor jeugdbewegingen, maakte het bureau gebruik van veel robuuste materialen, zoals gegoten beton en hout.
