Pacheco 32
- Brussel (Brussel)
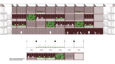
Op 25 april 2023 werden de eerste winnaars gehuldigd van de projectoproep RENOLAB, een van de instrumenten van de Renolution-strategie van het Brussels Hoofdstedelijk Gewest. Het project werd eind 2021 gelanceerd en is een laboratorium voor duurzame en circulaire renovatieprojecten, van eengezinswoningen tot grote multifunctionele gebouwen. Voor de periode 2021-2022 werden 90 aanvragen ontvangen. 57 projecten (47 voor RENOLAB onderdeel B en 10 voor onderdeel ID) werden geselecteerd en kregen aanzienlijke technische en financiƫle steun. Hiertoe behoorde "Pacheco 32", een grootschalige renovatie van het voormalige gebouw van de Koninklijke Munt tot een hedendaags complex voor gemengd gebruik met kantoren, woonunits, winkels en horeca.

