Passieve school De Zeppelin voor bijzonder lager onderwijs
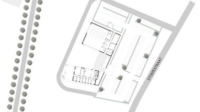
Passieve school voor het bijzonder lager onderwijs in Assenede. Het programma van eisen omvat 13 grote klaslokalen, 4 kleine klaslokalen, administratieve lokalen, een kleine sportzaal en een refter met leskeuken. Voor de buitenaanleg: een open speelplaats, een overdekte speelplaats en een parkeerplaatsen voor 114 wagens.
