Polyvalent Centrum Uyttenhove
- Lochristi (Oost-Vlaanderen)
- Bekijk op Google Maps
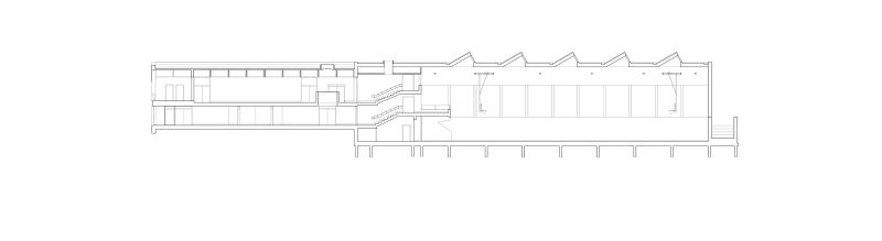
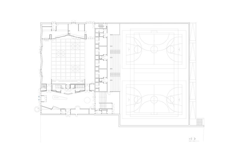
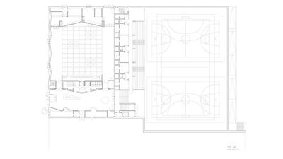
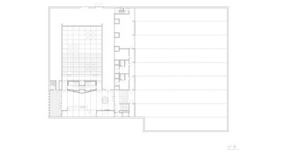
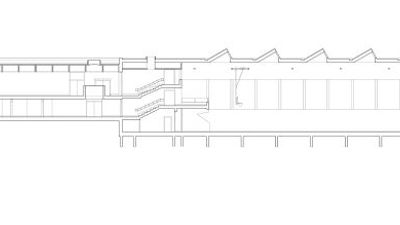
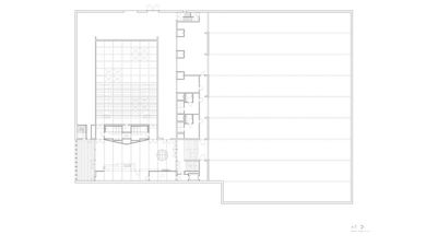
De bloemengemeente Lochristi heeft grote behoefte aan nieuwe accommodaties voor haar bloeiende sport- en verenigingsleven. In een vlak, suburbaan landschap van serres, hallen en verkavelingen ontwerpt BULK architecten een multifunctioneel gebouw dat het midden houdt tussen een groot huis en een boerenschuur.