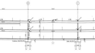
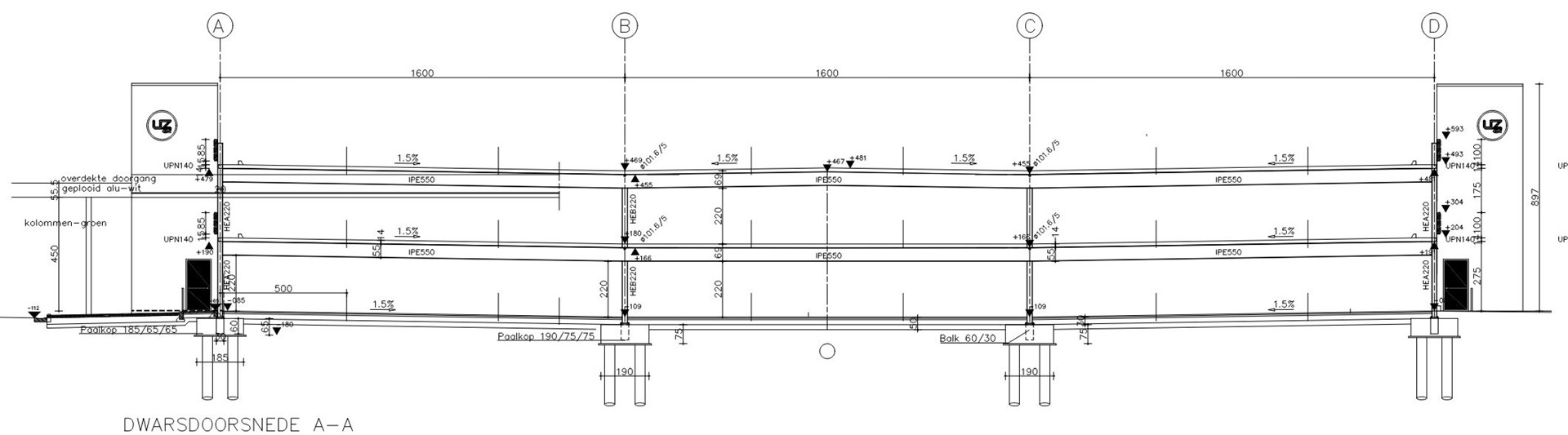
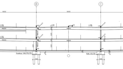
Project U: hoofdgebouw UZ Gent

  • image
  • image
  • image
  • image
  • image
  • image
  • image
  • image
  • image

UZ Gent heeft VK architects+engineers (part of Sweco) aangesteld om een geïntegreerd masterplan en de nieuwbouw van het UZ Gent te ontwerpen. De opdracht omvat onder meer de realisatie van een aantal voorbereidende en aanverwante projecten (12.710m²) en een centrale nieuwbouw (73.300m²). VK hertekent volledig de bestaande campus van 42 ha, momenteel met zowat 40 gebouwen, naar een compacte, intelligente health campus met een centraal en verbindend ziekenhuisgebouw. Het resultaat wordt een innovatieve, CO2-neutrale campus die klaar is voor de toekomst.