Reconversie Militair Hospitaal
- Brugge (West-Vlaanderen)
- Bekijk op Google Maps
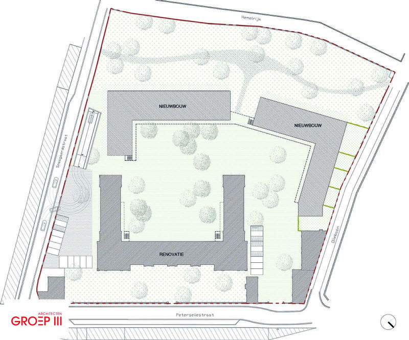
Het voormalig Militair Hospitaal in de Peterseliestraat in Brugge wordt herbestemd tot een totaalproject voor sociale huisvesting, beperkte lokale handel en een openbaar park. Het bestaande gebouw ondergaat een renovatie en er wordt een nieuwbouw aan de site toegevoegd.