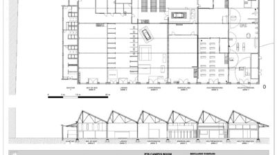
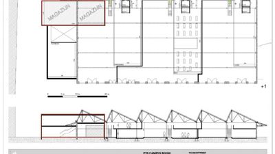
Renovatie Provinciale Technische Scholen campus Boom
Campus Boom van De Provinciale Technische Scholen wordt grondig gerenoveerd. 4000 vierkante meter plat dak krijgt een nieuwe beurt en de turnzaal, die jarenlang als magazijn gebruikt werd, wordt nu heringericht tot open leercentrum. Ook een capaciteitsuitbreiding door de herinrichting van werkhuizen maken deel uit van het project waar ontwerper Erfgoed & Visie en studiebureaus Herelixka en Brosens de bezielers van zijn.
