Tabaksfabriek, Menen
- Menen (West-Vlaanderen)
- Bekijk op Google Maps
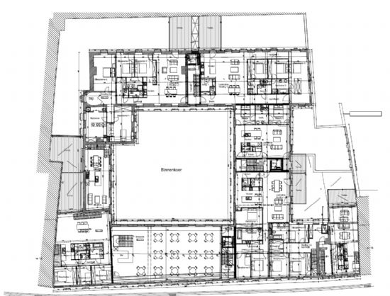
Trendy wooncomplex in oude tabaksfabriek, voormalig militair hospitaal op 200m van de markt van Menen. NV Vanhaerents in samenwerking met het architectenbureau Buro II uit Roeselare en Antoine Dugardyn uit Brugge. Het project streeft naar een gevarieerd aanbod van type woningen met een verscheidenheid van grootte van woonentiteiten: lofts, appartementen, duplexwoningen,... De entiteiten zijn gegroepeerd rond een semi-publieke binnenkoer waardoor er een nieuwe en ook rustige woonomgeving gecreƫerd wordt in het centrum van de stad.

