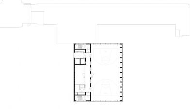
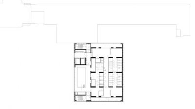
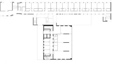
Therapietoren UZ Pellenberg
Het Universitair Ziekenhuis Pellenberg moet tegen 2017 een gespecialiseerd revalidatiecentrum huisvestigen. WIT architecten stelde hiervoor het masterplan op en de nieuwbouw therapietoren is de eerste fase van het plan. De toren omvat alle therapieruimten in een verticale stapeling van oefen – en behandelzalen, een kine- en fitnesszaal, een therapiebad en sporthal.

