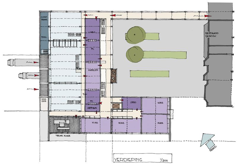
Uitbreiding KTA Heist-Op-Den-Berg
KTA Heist-Op-Den-Berg krijgt er in 2016 een nieuw gebouw bij. Het nieuwe gebouw staat tegenover het oude gebouw, waardoor de campus een mooi binnenplein krijgt.
De voorontwerpen van het project zagen er meer open uit, maar vanwege veiligheidsredenen en de akoestiek heeft het architectenbureau gekozen voor een meer simpel en leesbaar ontwerp. Dankzij de bakstenen sokkel, sluit het nieuwe gebouw aan bij het oude. De bovenstructuur is uitgevoerd in vezelcementplaten die het dieper liggende raamvlak van de werkplaatsen omkadert en zorgt voor een optimale lichtinval in de werkplaatsen. Met een passerelle in staal wordt de verbinding gemaakt met het bestaande gebouw.


