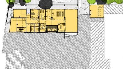
Woonzorgcentrum Sint-Jozef Evere
Er wordt een uitbreiding gerealiseerd met een afdeling voor 30 dementerenden, een lokaal dienstencentrum en 17 assistentiewoningen. Voor dit project hebben 3 opdrachtgevers zich gegroepeerd, namelijk het woonzorgcentrum Sint-Jozef, het lokaal dienstencentrum Aksent en de private investeerder cvba Evere Green. Architectenbureau BURO II & ARCHI+I stond in voor het ontwerp.
