ATAMA et V+ transforment le campus Kaai de l'Erasmushogeschool Brussel en un environnement d'apprentissage dynamique

  • image
  • image
  • image
  • image
  • image
  • image
  • image
  • image
  • image
  • image
  • image
  • image
  • image
  • image
  • image
  • image
  • image
  • image

L'Erasmushogeschool Brussel (EhB) a récemment dévoilé les progrès réalisés dans le projet de campus Kaai au cœur d'Anderlecht. Le campus Kaai, foyer des étudiants en Design & Technologie, Musique et RITCS, est actuellement en pleine transformation, selon les plans des cabinets d'architectes ATAMA et V+. L'Erasmushogeschool Brussel s'engage pleinement dans l'expansion de ce campus dédié aux technologies de l'information et aux arts, à travers des constructions neuves et des rénovations, comprenant notamment une salle de théâtre acoustiquement performante et un studio de cinéma de pointe. Les programmes de formation de l'EhB, du KCB et du RITCS se rejoindront sur ce site, contribuant à l'établissement d'un véritable pôle créatif à Anderlecht.

L'Erasmushogeschool Brussel (EhB) consacre d'importants investissements à l'édification de campus modernes, durables et sécurisés, des foyers propices à l'éclosion de la créativité et de l'innovation", déclare Dennis Cluydts, directeur général de l'Erasmushogeschool Brussel. "Ce projet incarne non seulement notre vision de croissance en tant qu'établissement dédié à la pratique professionnelle et artistique, mais également notre engagement envers une haute orientation vers l'avenir. À travers nos initiatives pédagogiques, nos recherches, nos services et notre développement artistique, nous préparons nos étudiants à impacter positivement la société."

PAS UNE ÎLE EN VILLE

L'Erasmushogeschool Brussel affiche sa détermination à attirer de nouveaux étudiants, des partenaires du monde professionnel ainsi que des futurs collaborateurs avec le campus Kaai. Ce lieu promet de devenir un environnement d'apprentissage dynamique, dynamisant non seulement les missions fondamentales de l'université, mais les soutenant également de manière dynamique.

"Le campus Kaai sera un espace ouvert, invitant les riverains et favorisant la collaboration avec les organisations locales. Un véritable lieu de rencontre donc. L'Erasmushogeschool Brussel démontre ainsi qu'elle ne se comporte pas en îlot isolé dans la ville, mais bien comme un acteur actif au sein de celle-ci."
- RAYMONDA VERDYCK, PRÉSIDENTE DE L'ERASMUSHOGESCHOOL BRUSSEL -

 

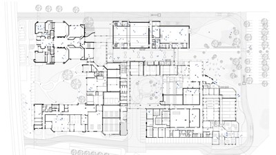
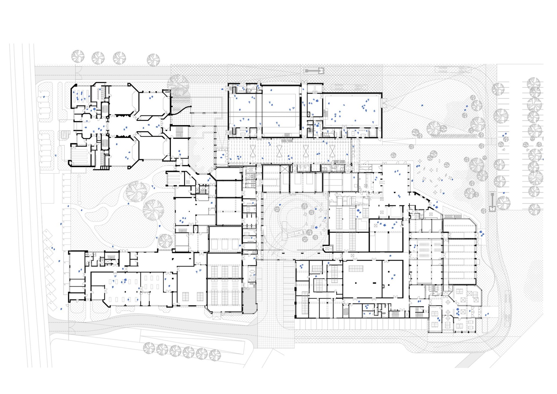
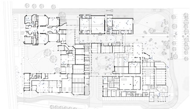
Le projet de construction à Anderlecht implique une expansion majeure du campus existant. Actuellement, les programmes d'Informatique Appliquée et de Multec (Multimédia & Technologie créative) du département Design & Technologie, le programme Musical du Conservatoire royal de Bruxelles et les services de soutien de l'université y sont logés. Bientôt, le programme Musique du Conservatoire trouvera également un abri temporaire ici, pendant que le bâtiment du Conservatoire dans la rue de la Régence sera en cours de rénovation approfondie.

Cependant, avec la nouvelle construction en cours, l'Erasmushogeschool Brussel transformera véritablement ce site en un campus artistique, un environnement d'apprentissage et de travail tourné vers l'avenir où seront également accueillis le Graduat en Techniques de Scène et d'Événement, le baccalauréat en Techniques de Scène & Production et le programme académique en Arts dramatiques.

STRUCTURE COURSIVE

Les travaux de construction et de rénovation permettront aux étudiants, aux enseignants, mais également aux habitants du quartier ainsi qu'à d'autres invités et utilisateurs d'accéder à une salle de théâtre à l'acoustique haut de gamme et à un studio de cinéma de pointe. Une grande galerie-foyer - l'agora - servira d'espace de production connectif et créatif rassemblant étudiants et enseignants des divers programmes. De plus, de nombreux espaces de cours et d'entraînement seront aménagés, surtout dans la partie rénovée.

Le long du canal et étroitement lié à l'université, le RITCS trouvera sa place appropriée dans cette ville productive. Une ville dont il contribuera, selon les concepteurs de ATAMA et V+, à façonner l'image. Le profil est à la fois familier et nouveau, combinant et interprétant les formes de toits des studios de cinéma, des bâtiments de théâtre et du patrimoine industriel pour former une nouvelle entité visuelle.

En positionnant précisément la nouvelle construction, la structure existante des "cours entourées de bâtiments" sera complétée. Chaque cour est unique et invite à une utilisation différente : la "cour théâtre", la "cour cinéma" et le "jardin caché". En misant résolument sur le caractère "simple" du bâtiment existant, un lieu singulier émergera.

  • Partager cet article

Nos partenaires