Bureau régional Ouest – Zone de police d’Anvers : des techniques high-tech derrière une façade historique (Collectief Noord)

  • image
  • image
  • image
  • image
  • image
  • image
  • image
  • image
  • image
  • image
  • image
  • image
  • image
  • image
  • image
  • image
  • image
  • image
  • image
  • image

Dans la Lange Gasthuisstraat, au cœur d’Anvers, a ouvert le tout nouveau bureau régional Ouest de la zone de police d’Anvers, un projet signé Collectief Noord Architecten, en collaboration avec Sweco, Util Struktuurstudies, Landinzicht Landschapsarchitecten et l’entrepreneur STRABAG. Derrière la façade protégée du XIXe siècle se cache aujourd’hui un commissariat ultramoderne, conciliant subtilement passé et avenir. Grâce à une infrastructure technique minutieusement pensée, le bâtiment offre un climat intérieur particulièrement stable et sain, avec chauffage par le sol, plafonds climatiques et ventilation intelligente qui s’adaptent automatiquement à l’occupation et aux conditions météorologiques.

Ce que les visiteurs du bureau régional voient n’est que la partie émergée de l’iceberg. Derrière les murs se déploie un jeu complexe de techniques durables. Une pompe à chaleur géothermique, reliée à un champ BEO sous le bâtiment, fournit chauffage ou refroidissement selon les besoins saisonniers. Le système sélectionne à chaque instant la source d’énergie la plus efficace et distribue la chaleur de manière homogène via les sols et plafonds. Résultat : une température constante, sans courants d’air, et une consommation énergétique remarquablement faible.

Une technologie intelligente au service du confort

La qualité de l’air est également surveillée et ajustée en continu. Grâce à un système de ventilation piloté par le taux de CO₂, le bâtiment sait exactement quelle quantité d’air frais injecter pour maintenir des espaces agréables et sains. Ce système communique avec le système de gestion du bâtiment (GBS), qui coordonne l’éclairage, la protection solaire et la consommation énergétique. Des panneaux photovoltaïques en toiture produisent de l’électricité locale, tandis que des bornes de recharge intelligentes avec équilibrage de charge préviennent toute surcharge du réseau. Même l’eau de pluie est collectée via les toitures végétalisées et réutilisée — un bel exemple d’efficacité circulaire en contexte urbain compact.

Le résultat est un bâtiment qui « réfléchit » littéralement avec ses usagers. Chauffage, ventilation, éclairage et énergie sont gérés de manière autonome et optimisés en permanence. Le personnel n’a pratiquement plus besoin d’intervenir : le bâtiment anticipe les variations de température et le rythme d’occupation. Il en résulte un environnement de travail où la technologie reste discrète, au service du confort et du calme qui émanent de ce nouveau bureau régional.

Façade historique, lecture contemporaine

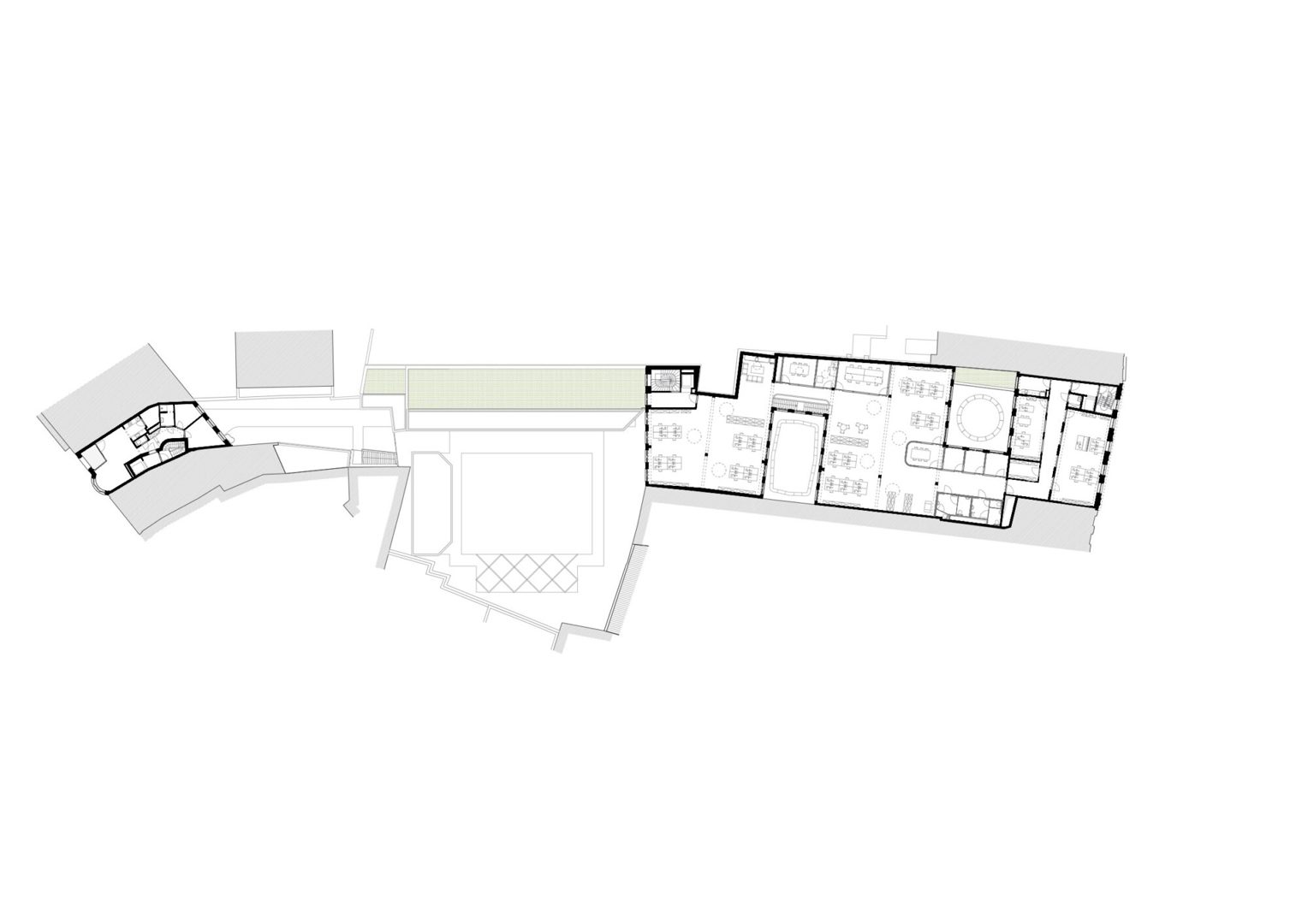
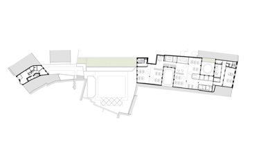
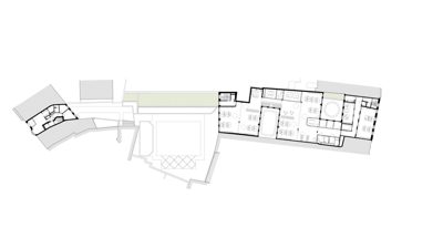
Les architectes de Collectief Noord ont choisi de préserver la façade classiciste historique, tandis qu’un bâtiment entièrement neuf a été reconstruit derrière elle. L’ancienne structure en enfilade du large immeuble du XIXe siècle a été subtilement réinterprétée dans un plan contemporain, rythmé et lisible. Le concept s’inspire de la typologie des palazzi italiens : une succession d’espaces intérieurs et extérieurs où la transparence, la lumière et les perspectives sont centrales.

Cette séquence spatiale prend forme à travers une série de patios, chacun doté de sa propre ambiance et de sa fonction spécifique. Ils agissent comme des charnières entre les zones publiques et les espaces de travail plus internes, effaçant la frontière traditionnelle entre intérieur et extérieur. Le premier patio, lié à la zone d’accueil, offre aux visiteurs une vue contrôlée sur le fonctionnement de la police. Plus loin, un jardin intérieur constitue le cœur vert du complexe, où le personnel peut se détendre à l’écart du rythme urbain.

Une architecture qui relie structure et atmosphère

À l’intérieur, Collectief Noord évite délibérément l’image du bureau générique. Les espaces sont structurés par des portiques de colonnes et de poutres, perpendiculaires aux murs de refend et variant selon leur fonction. Cette structure porteuse crée un cadre visuel et spatial propice à la sérénité, tout en favorisant ouverture et flexibilité. Les matériaux choisis sont sobres, ponctués de touches chaleureuses qui mettent en valeur la texture du bois et du béton.

Les architectes misent sur la lumière, les vues et la fluidité. De grandes fenêtres, des perspectives sur les patios et une lumière naturelle soigneusement maîtrisée donnent au bâtiment une impression d’ouverture. L’architecture dépasse ainsi la simple fonctionnalité pour devenir un vecteur social : un lieu favorisant la rencontre et la collaboration.

Un commissariat à échelle humaine

Outre la technique et la structure, l’atmosphère joue un rôle essentiel. Le bureau régional dégage une impression de calme et de sécurité, renforcée par les jardins intérieurs et l’abondance de lumière du jour. Le personnel perçoit les espaces comme chaleureux et accueillants, ce qui améliore bien-être et productivité. Les visiteurs apprécient la transparence et l’accessibilité des zones d’accueil, conçues pour inspirer confiance.

Les collègues d’autres services aiment également s’y retrouver. Les patios et espaces extérieurs servent de lieux de rencontre informels où naissent des échanges spontanés. Le bâtiment rompt ainsi avec l’image du commissariat fermé et austère, pour se présenter comme un véritable lieu de travail public intégré à la ville.

Ancrage stratégique dans le tissu urbain

Le bureau régional Ouest s’inscrit dans le plan directeur immobilier de la zone de police d’Anvers, qui combine centralisation et déconcentration. Tandis que les services d’intervention sont regroupés au sein d’un quartier général, le travail de proximité est réparti dans la ville. Le bâtiment de la Lange Gasthuisstraat constitue un point d’ancrage stratégique pour la partie ouest du centre-ville — proche des habitants, visible et accessible.

Par sa conception et son implantation, le bâtiment s’intègre harmonieusement à la structure urbaine d’Anvers. La façade historique rétablit la continuité du front de rue, tandis que le nouveau volume en arrière-plan offre l’espace nécessaire à une organisation tournée vers l’avenir. Ainsi, le commissariat s’ancre à la fois dans le passé et dans le futur, en parfaite cohérence avec la vision globale d’AG Vespa en matière de rénovation urbaine.

Source Collectief Noord Architecten & Sweco

  • Partager cet article

Nos partenaires