archipelago en Mangado y Asociados realiseren met Liège Expo nieuw scharnierpunt in de stad

  • image
  • image
  • image
  • image
  • image
  • image
  • image
  • image
  • image
  • image
  • image

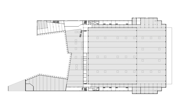
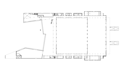
In het hart van Luik, vlakbij de Maas, realiseerde het architectenbureau archipelago, in samenwerking met Mangado y Asociados, de nieuwe expohallen van Liège Expo. Deze stedelijke evenementenruimte met internationale ambities biedt plaats aan uiteenlopende activiteiten, van vakbeurzen tot sportwedstrijden. De schaal van het project is indrukwekkend: vijf expohallen en een polyvalente zaal beslaan samen meer dan 16.500 m² bruikbare oppervlakte en kunnen tot 10.000 bezoekers ontvangen.

Deze ambitie reikt verder dan het gebouw zelf. Liège Expo wil de stad opnieuw positioneren op de Europese evenementenkaart en tegelijkertijd de lokale gemeenschap aanspreken. De infrastructuur is strategisch ingebed in het stedelijk weefsel: zowel een eind- als beginpunt van de tramlijn en nauw verbonden met emblematische pleinen en internationale mobiliteitsassen. Het project fungeert zo als een toegangspoort én bestemming binnen het dynamisch netwerk van Luik.

Van afgesloten hal naar open stedelijk forum

Een van de opvallendste kwaliteiten van Liège Expo is de manier waarop het publieke leven verweven wordt met de architectuur. Het complex presenteert zich niet als een gesloten doos, maar als een uitnodigend stedelijk ensemble. De tentoonstellingshal aan de zuidzijde grenst rechtstreeks aan het plein en versterkt de relatie tussen binnen en buiten. In open configuratie wordt de buitenruimte zelfs tijdelijk een verlengstuk van het gebouw.

De locatie, in de wijk Bressoux-Droixhe, onderging een fundamentele metamorfose. Waar voorheen industriële leegte overheerste, ontstaat nu een nieuwe publieke ruimte die uitnodigt tot ontmoeting. Liège Expo maakt zo deel uit van een bredere stadsvernieuwingsstrategie waarin mobiliteit, duurzaamheid en stedelijke kwaliteit hand in hand gaan. Het project fungeert als hefboom voor de transformatie van de hele buurt.

Flexibiliteit als motor voor veelzijdig gebruik

Functionele veelzijdigheid stond centraal in het ontwerp. De vijf hallen en polyvalente ruimte laten zich op uiteenlopende manieren combineren of opsplitsen, afhankelijk van het soort evenement. Dankzij de aparte circulatiezones kunnen meerdere activiteiten tegelijkertijd plaatsvinden zonder elkaar te hinderen. Deze opzet vergroot niet alleen het gebruikscomfort, maar versterkt ook het commerciële potentieel van de infrastructuur.

De architectuur biedt bovendien maximale vrijheid zonder aan leesbaarheid in te boeten. Elke ruimte is duidelijk gearticuleerd, met doordachte oriëntatiepunten en een vloeiende overgang tussen binnen- en buitenruimtes. Die aanpak maakt Liège Expo geschikt voor zowel grootschalige als meer intieme evenementen, en weerspiegelt een visie waarin architectuur een kader biedt zonder de regie over te nemen van de gebruiker.

Duurzaamheid als structureel uitgangspunt

De ontwerpkeuzes getuigen van een uitgesproken duurzaamheidsambitie. De materialisatie is robuust maar zorgvuldig, met oog voor lage milieu-impact. Regenwateropvang, geautomatiseerde verlichting en energie-efficiënte temperatuurregeling zijn ingebouwd in het ontwerp. De dakstructuur laat overvloedig daglicht toe, wat de nood aan kunstlicht drastisch beperkt.

Ook de buitenaanleg sluit naadloos aan bij die visie. De manoeuvreerruimten voor voertuigen zijn discreet en functioneel geïntegreerd, terwijl infiltratieswales zorgen voor een natuurlijke waterhuishouding. Door het vergroenen van parkeer- en logistieke zones draagt Liège Expo niet alleen bij aan de stedelijke beleving, maar ook aan de ecologische prestaties van de site.

Stedelijk anker voor een nieuw tijdperk

Liège Expo is geen louter infrastructuurproject, maar een publiek instituut met een uitgesproken maatschappelijke betekenis. Het is een plek die tegelijk economisch potentieel ontsluit én publieke meerwaarde genereert. Door zijn positionering, vormgeving en functionele flexibiliteit vormt het een scharnierpunt in de stad, waar regionale identiteit en internationale uitstraling samenkomen.

De realisatie door archipelago en Mangado y Asociados getuigt van een hedendaagse benadering van publieksarchitectuur: open, toekomstgericht en sociaal geëngageerd. Liège Expo nestelt zich daarmee tussen de gebouwen die niet alleen ruimte bieden, maar ook betekenis geven – als forum, als infrastructuur en als symbool.

Bron archipelago

  • Deel dit artikel

Onze partners