ARO group architectuur laureaat met ontwerp voor zorg- en dienstencentrum Sint-Oda

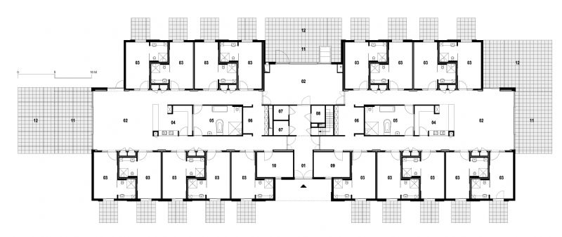
Voor zorg- en dienstencentrum Sint-Oda in Overpelt ontwierp ARO group architectuur 108 vervangende nieuwbouw studio`s met gemeenschappelijke ruimten. De vervangingsbouw dient de huidige bewoningsvorm aan te passen aan de veranderende en gestuurde behoeften in de sector. ARO group architectuur ontwikkelde zijn voorstel rond een centrale aslijn die doorheen het terrein van 1,5 km lengte vaak fragmentarisch terug te vinden is.

Via een architectuurwedstrijd daagde bouwheer vzw Stijn enkele gerenommeerde bureaus uit om een ruimtelijke visie voor de hele site uit te werken die de bestaande gebouwen moest structureren en die de inplanting van de nieuwbouwvleugels diende te verantwoorden. De vervangingsbouw voor 108 studio`s moet de huidige bewoningsvorm aanpassen aan de veranderende en gestuurde behoeften in de sector. Prikkelgevoeligheid en reactievermogen staan centraal bij de invulling en inrichting van de privatieve en gemeenschappelijke ruimten. ARO group architectuur ontwikkelde zijn voorstel rond een centrale aslijn die doorheen het terrein van 1,5 km lengte vaak fragmentarisch terug te vinden is. De centrale lijn - gebruiks-, zicht- en wandelas - dient als kapstok voor de verdere uitbouw van de campus.

 

Sokkel

De studio`s worden samengebracht in leefgroepen van telkens 9 personen. De privatieve ruimten worden gegroepeerd in balkvormige volumes die tegenover mekaar worden opgesteld en zo de sokkel vormen voor de overdekking van de tussenliggende gemeenschappelijke ruimten. De leefgroepen worden lateraal per twee in één gebouw geplaatst met op het raakpunt een inkom en extra leefruimte.

 

Ritmiek

Door het geheel volledig met baksteen te bekleden, ontstaat een massief bouwwerk dat voor stabiliteit in de zichtbare omgeving zorgt. Verticaal metselwerk vanaf het lateiniveau tot aan de dakrand brengt ritmiek met zich mee. Ook het spel van wisselende paneelbreedtes naast de studioramen zorgt voor diversiteit in de gevelopbouw.

 

Overdekte terrassen

Het einde van de gemeenschappelijke ruimten wordt afgerond door de U-vormige afdekking 5 meter in overkraging te laten doorschieten waardoor aan de leefruimten ruime overdekte terrassen ontstaan. De glasgevels van de kopse kanten geven uitzicht op de omliggende natuur en buitenruimte.

In de verhoogde middenzone onder de U-vormige overkapping worden de gemeenschappelijke functionaliteiten ondergebracht in speelse en aan de bewoners aangepaste containerblokken. De openheid en geslotenheid van deze vrijstaande containerblokken evenals de speelsheid van kleurgebruik en wandtextuur worden per leefgroep aan de specifieke bewonerseisen aangepast.

  • Deel dit artikel

Onze partners