Centre Universitaire Zénobe Gramme: een multifunctioneel universitair centrum, open voor de stad (Ma2 & archipelago)

  • image
  • image
  • image
  • image
  • image
  • image
  • image
  • image
  • image
  • image
  • image
  • image

De transformatie van het historische Zénobe Gramme-gebouw kadert in de strategie van de stad Charleroi om haar aantrekkingskracht te versterken. De stad wil een toonbeeld zijn van uitmuntendheid op het gebied van onderwijs, onderzoek, wetenschap en sensibilisering voor technische beroepen. Het nieuwe universitaire centrum combineert erfgoed met hedendaagse architectuur, biedt een nieuwe verbinding met de stad en haar bewoners, en maakt deel uit van de herontwikkeling van de wijk met meer plaats voor voetgangers en groen.

De Université du Travail (UT), opgericht door Paul Pastur, werd in 1905 gebouwd door architecten Albert en Alexis Dumont. Het gebouw omvatte grandioze tentoonstellingszalen, verlicht door drie grote lichtkoepels die de technische knowhow tonen van die tijd, een majestueuze grote zaal opgetrokken uit witte steen, gele baksteen en versierd met een mozaïekvloer, en een hele reeks leslokalen en laboratoria.

De universiteit vertoont de industriële invloed van Charleroi aan het begin van de 20e eeuw en belichaamt zo een politieke boodschap van opkomende krachten, de confrontatie tussen de arbeidersklasse en de bourgeoisie. Een unieke instelling voor zowel technisch als economisch onderwijs, gericht op het opleiden van arbeiders en bedienden. Het gebouw staat sinds 2004 op de monumentenlijst en heeft het bijzondere kenmerk dat het op de vestingmuren van Charleroi is gebouwd.

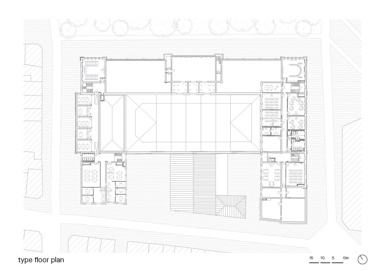
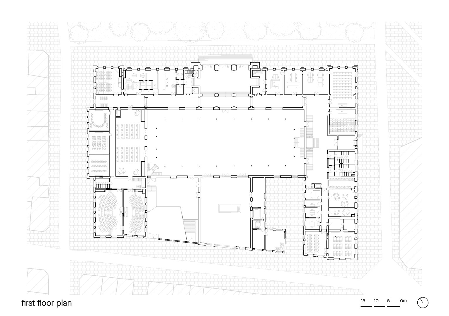
Veelzijdige renovatie

De transformatie van het gebouw omvat de restauratie van opmerkelijke interieurs en gangen (die werden opgenomen op de monumentenlijst), met daarnaast ook de renovatie van de gevels, terug naar hun oorspronkelijke staat, en ramen die nu voorzien zijn van performante beglazing.

De binnenruimtes zijn gerenoveerd zodat ze nieuwe actieve leermethoden kunnen ondersteunen met multifunctionele ruimtes zoals het leercentrum, de klaslokalen en auditoria. Er is een innovatief technisch centrum bedacht om het gebouw energieonafhankelijk te maken. Alle gebouwtechnieken hebben bovendien een upgrade gekregen en de brandveiligheid werd subtiel geoptimaliseerd door o.a. verborgen sprinklersystemen in de staalconstructies en bijkomende structurele verstevigingen.

Visie op onderwijs en onderzoek

Een van de belangrijkste uitdagingen van het project is om nieuwe onderzoekinfrastructuren te integreren in het Zénobe Gramme-gebouw en zo een ecosysteem te creëren dat innovatie en duurzame ontwikkeling bevordert door verschillende actoren samen te brengen met complementaire expertise.

Het onderzoekscentrum wordt beschouwd als een instrument om onderzoekers, studenten en industriëlen fysiek samen te brengen en gedeelde infrastructuren te creëren die de ontwikkeling van buitengewone technologie mogelijk maken. Op deze manier speelt het Centre Universitaire Zénobe Gramme een dynamische rol in het creëren van kennis om aan grote maatschappelijke problemen een effectieve oplossing te bieden.

Bron archipelago

  • Deel dit artikel

Onze partners