Circu l'air (KPW architecten): circulaire renovatie op grote hoogte

  • image
  • image
  • image
  • image
  • image

In 2022 renoveerde KPW architecten drie studio’s met focus op betaalbaarheid en circulariteit. Dit project is een proefproject binnen het kader van Vlaanderen Circulair. Dankzij de renovatie verzamelt de instantie kennis en hardcore data waarmee de haalbaarheid en de wenselijkheid van het circulair renoveren wordt afgetoetst. Het renovatieproject kreeg de naam Circu l’air, omdat het gaat om een renovatie op grote hoogte.

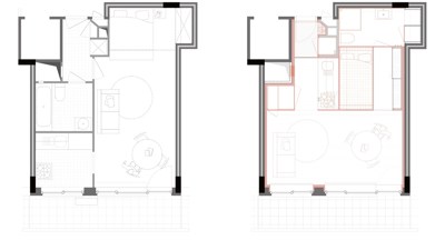
Het ontwerp van KPW architecten zet in op een compact en gerieflijk micro-appartement. Hierin worden de normen rond oppervlakte van de Vlaamse Maatschappij voor Sociaal Wonen (VMSW) in vraag gesteld om tot een compactere oplossing te komen met het accent op ruimtelijkheid. Dit doet de architect door een leefruimte, die de volledige breedte van de woning heeft, met een kamerbreed terras aan te bieden.

Daarnaast zocht KPW architecten naar een slimme en compacte oplossing om toch op een kleine oppervlakte het gemak van een ruim appartement aan te bieden. Dit doet ze door een inkom en badkamer slim te combineren of een slaapnis te ontwikkelen met maximale bergruimte. Het architectenbureau ontmantelde en renoveerde de drie studio’s volgens de principes van circulair bouwen. Voor de aanneming deed het team beroep op sociale initiatieven.

Geen bijkomende ruimte

Bij de renovatie in een woongebouw in het centrum van Leuven werd er geen bijkomende open ruimte ingenomen. De intelligentie van dit project ligt in het omvormen van een kleinere ruimte, ongeveer 30 tot 34 m2, tot een aantrekkelijk en comfortabel micro-appartement. Op een beperkte oppervlakte wordt er een hoge woonkwaliteit aan een zeer betaalbare huurprijs aangeboden, de hoofddoelstelling van AG Stadsontwikkeling Leuven.

Urban mining

Bij de start van de renovatie verzamelde de architect alle waardevolle, demonteerbare en herbruikbare materialen uit de studio volgens het principe van urban mining. Een deel van deze materialen kreeg opnieuw een plekje in de gerenoveerde studio’s. Voor de overige materialen zocht het bouwteam nieuwe eigenaars zoals de Leuvense Materialenbank of enkele jeugdverenigingen.

Als aanvulling voor deze materialen gebruikte de aannemer recuperatiematerialen en productieoverschotten. Zo zijn de inox-werkbladen van de keukens afkomstig uit het Leuvense politiehuis. De oude schoorsteenmantels werden verwerkt tot unieke natuurstenen die je nu kan terugvinden als mozaïekvloeren in de inkom. Indien er toch nieuwe materialen werden toegepast, koos de architect voor duurzame alternatieven.

Lage CO2-uitstoot

Door het verbeteren van de isolatieschil, het drastisch bijsturen van warmteafgifte-toestellen en het gebruiken van recuperatie- of biobased materiaal bij de renovatie beperkte de aannemer de CO2-uitstoot. Het buitenschrijnwerk werd geëvalueerd, behouden en verbeterd. Het bestond namelijk uit degelijk houten schrijnwerk met een aluminium afwerking. Het volstond om het glas te vervangen, de dichtingen te verbeteren en het geheel te schilderen om up-to-date te zijn.

  • Deel dit artikel

Onze partners