Devoskoer: van vervallen arbeidershuizen tot karaktervolle woonsite

  • image
  • image
  • image
  • image
  • image
  • image
  • image

De twaalf zwaar vervallen arbeiderswoningen van de Devoskoer in het oude stationskwartier van Ronse krijgen weldra een nieuw leven als functioneel, aantrekkelijk en veilig ingerichte wooneenheden in een karaktervolle woonsite. In 2021 neemt architectenbureau Bressers de moeilijke taak op zich om het beschermde 19de-eeuwse beluik te restaureren.

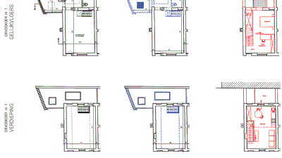
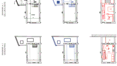
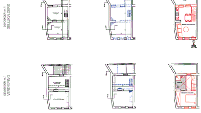
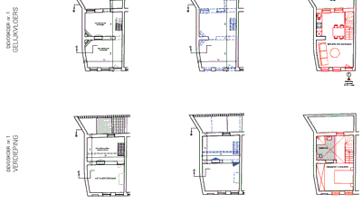
Tijdens de restauratie zal de traditionele ruimte-indeling van de arbeiderswoningen zo goed mogelijk bewaard blijven. De woningen – die allemaal relatief klein zijn – werden steevast opgebouwd volgens een vast patroon. Op het gelijkvloers bevinden zich twee kleine ruimtes met achteraan een koertje. Ook de eerste verdieping omvat twee kleine kamers. Onder het zadeldak ligt een kleine zolder. Naargelang aan welke kant van de gemeenschappelijke koer de huizen zich situeren, zullen deze op een andere manier worden ingedeeld.

Dankzij hun ligging langs een 5,5 meter hoge muur krijgen de woningen aan de linkerkant van de binnenplaats een eerder atypische indeling. De leefruimte en de keuken zullen op de eerste verdieping geïnstalleerd worden, terwijl het gelijkvloers plaats zal bieden aan een bureau of bergruimte en een slaapkamer met badkamer. Door het koertje achteraan dicht te bouwen, kan de benedenverdieping uitgebreid worden met een kleine patio. Een terras op de eerste verdieping zal de leefruimte optisch vergroten en meer licht naar binnen halen.

De huizen rechts van de koer zullen traditioneler ingericht worden met een keuken en leefruimte op het gelijkvloers en een slaapkamer en badkamer op de eerste verdieping. Omdat de achterkoertjes van deze woningen aansluiten met die van de buren, is er enkel een buitenterras mogelijk op de benedenverdieping. De huizen zullen bijgevolg wat kleiner aanvoelen.

Om meer ruimte te voorzien in de kleine huizen van de Devoskoer, speelt Bressers met het idee om een nieuw volume op het zadeldak te creëren. Op die manier wordt de zolder een bruikbare ruimte. De zolder kan opengemaakt worden om een gevoel van ruimte te creëren, maar kan ook als afgesloten kamer gebouwd worden. Vanop het binnenplein zou het nieuwe volume amper zichtbaar zijn omdat ze aan de achterkant van de woning geïmplementeerd zou worden.

Architecturale samenhang

De sobere en verfijnde gevelontwerpen van de arbeidershuizen maken van de Devoskoer een uniek beluik. Ze dienen dan ook zo goed mogelijk bewaard te blijven. Om de oorspronkelijke architecturale samenhang tussen de gevels, die door het verval van de huizen hier en daar verstoord is, opnieuw duidelijk zichtbaar te maken, zullen de topgevels met respect voor het originele materiaal gerestaureerd worden en de gevelschema’s en ritmering verbeterd.

Oog op herbestemming

Met het oog op de herbestemming van de Devoskoer tot een woonsite voor jong en oud wil Bouwmaatschappij Ronse – de eigenaar van de panden – het huis op de Nieuwebrugstraat nummer 12 aankopen. Op het gelijkvloers van dat huis kan een gemeenschappelijke leefruimte ingericht worden, terwijl er op de eerste verdieping en de zolder plaats is voor een duplexappartement. De overdekte koer zou dienst kunnen doen als een stalplaats voor fietsen of een plaats om afval te bergen. Via die koer kan tevens een doorgang gemaakt worden naar de Devoskoer, die momenteel enkel langs een nauwe doorgang in de Nieuwebrugstraat te bereiken is.

 

  • Deel dit artikel

Onze partners