Contactformulier

Goedefroo architecten

Goedefroo architects ontwerpt in Diksmuide flexibel en circulair hoofdkwartier voor Politiezone Polder

  • image
  • image
  • image
  • image
  • image
  • image
  • image
  • image
  • image
  • image
  • image

Het nieuwe politiegebouw aan de Woumenweg in Diksmuide is meer dan een functionele uitvalsbasis voor de Politiezone Polder. Goedefroo architects heeft ingezet op een uitgesproken contextueel en circulair ontwerp dat harmonie zoekt met de omliggende woon- en industriegebieden. Strategisch ingeplant op een hoekperceel, is het gebouw tegelijk zichtbaar en discreet: de primaire operationele toegang ligt aan de drukke Woumenweg, terwijl bezoekers binnenkomen via een uitnodigend portaal aan de rustigere Pluimstraat. Deze opdeling versterkt de leesbaarheid van de functies en ondersteunt een vlotte circulatie. Een groene buffer rond het perceel verzacht de overgang naar de omgeving en draagt bij aan een aangename beleving voor buurtbewoners en bezoekers.

De robuuste volumetrie van het nieuwe politiegebouw gaat hand in hand met een zorgvuldig gekozen materiaalpalet. De gevel is opgebouwd uit een fijnmazig gordijn van geperforeerde, lichtblauwe aluminiumplaten die het gebouw omhullen als een sluier. Deze huid filtert het zicht tussen binnen en buiten en zorgt tegelijk voor passieve zonwering. Achter deze schermende schil ontvouwt zich een volledig houten draagstructuur in Cross-Laminated Timber (CLT), die niet alleen een warme uitstraling geeft maar ook een duurzame ambitie onderstreept. De perforaties in het gevelmembraan maken het mogelijk om subtiele bewegingen te registreren, zonder de privacy van de werking prijs te geven. Zo krijgt het gebouw een gelaagd karakter dat professionaliteit combineert met discretie.

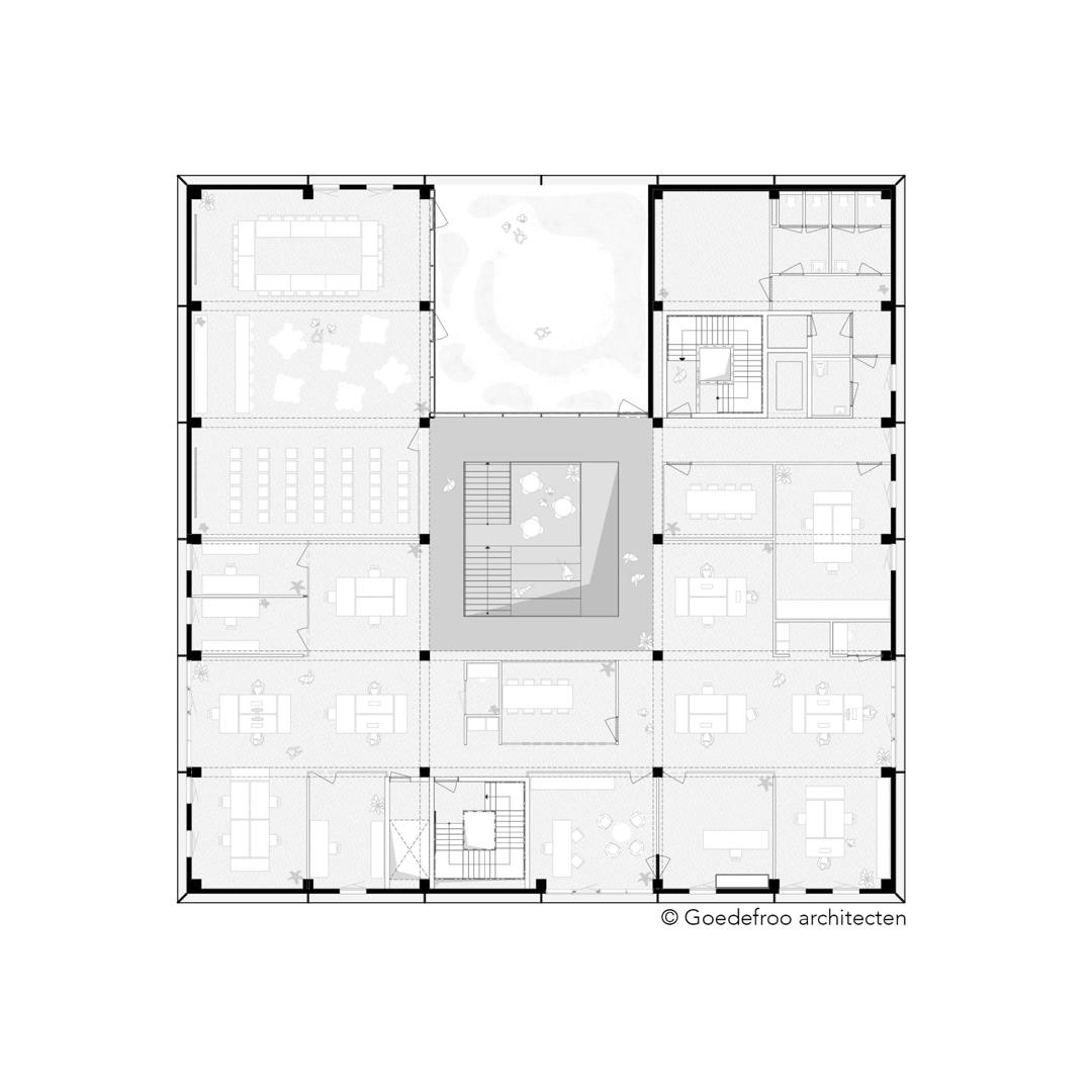
Compacte kern die verbindt

Het politiegebouw telt drie verdiepingen en organiseert de uiteenlopende functies rond een centraal atrium. Dit lichte hart vormt een vanzelfsprekend oriëntatiepunt en een informele ontmoetingsplek voor het personeel. Op het gelijkvloers bevinden zich de publieksfuncties, waaronder loketten en verhoorlokalen, samen met een logistieke garage en technische ruimtes. De arrestantenstroom is strikt gescheiden en loopt via een voertuigensas direct naar cellen en beveiligde verhoorlokalen, waardoor veiligheid en discretie gewaarborgd blijven. Het atrium fungeert daarbij als constante schakel tussen alle verdiepingen en versterkt het gevoel van open samenwerking.

Op de bovenliggende verdiepingen zijn de operationele zones ondergebracht, met kantoren, kleedruimtes en vergaderplekken. Dankzij het 5 bij 5 meter modulair grid zijn de plattegronden flexibel in te delen. Die neutraliteit laat toe dat het gebouw meegroeit met veranderende noden, zonder ingrijpende aanpassingen aan de draagstructuur. Het centrale atrium brengt bovendien overvloedig daglicht diep in de plattegrond, waardoor ook de werkplekken aan de binnenzijde licht en ruim aanvoelen. De open structuur maakt het eenvoudig om nieuwe technologieën of werkplekvormen te integreren naarmate de organisatie evolueert.

Duurzaam in opzet en uitvoering

Het uitgesproken circulaire karakter zit niet alleen in het ruimtelijk concept, maar ook in de bouwmethodiek. De CLT-structuur is volledig geprefabriceerd, wat de bouwtijd aanzienlijk verkortte en de impact op de omgeving minimaliseerde. Binnen blijft het expressieve hout zichtbaar: plafonds, wanden en zelfs de imposante tribune langs het atrium stralen een herkenbare materialiteit uit die zowel tactiliteit als rust brengt. De houten elementen zijn volledig demonteerbaar, wat het mogelijk maakt om materialen later opnieuw in te zetten bij verbouwingen of andere projecten. De natuurlijke uitstraling van het hout draagt bovendien bij aan een gevoel van rust en geborgenheid in een vaak stressvolle werkomgeving.

Door bewust te kiezen voor demonteerbare en herbruikbare elementen investeren de ontwerpers in een gebouw dat op lange termijn waarde behoudt. Het politiegebouw is zo niet enkel een antwoord op de huidige behoeften, maar vormt ook een kader dat nieuwe werkvormen en toekomstig hergebruik faciliteert. De keuze voor CLT onderstreept de ambitie om ecologisch verantwoord te bouwen én een plek te creëren die inspireert tot zorg voor de omgeving. Zo worden duurzaamheid, functionaliteit en esthetiek overtuigend met elkaar verweven.

Evenwicht tussen transparantie en discretie

Hoewel veiligheid en discretie cruciaal zijn, wilde Goedefroo architects geen gesloten bastion bouwen. De gefilterde gevel laat subtiele bewegingen doorschemeren, zodat het gebouw toch een zekere levendigheid uitstraalt naar de omgeving. Vanuit de publieke ruimte is de activiteit van personeel fragmentarisch zichtbaar, wat een gevoel van nabijheid en transparantie oproept. Tegelijkertijd blijft de privacy gewaarborgd, doordat de perforaties enkel diffuse indrukken toelaten. De gevel fungeert zo als een filter die openheid en bescherming in balans brengt en het gebouw een herkenbare, hedendaagse uitstraling geeft die past bij zijn publieke rol.

Binnen is dit samenspel tussen geborgenheid en transparantie even voelbaar. De royale lichtinval en zichtlijnen tot in de daktuin zorgen voor een aangenaam werkklimaat en versterken de collectieve identiteit van de politiezone. Ook bezoekers ervaren een onthaalomgeving die tegelijk professioneel en uitnodigend aanvoelt, wat bijdraagt aan een positieve beleving van het gebouw. De heldere indeling en het gebruik van natuurlijke materialen ondersteunen een gevoel van rust, terwijl de open structuur samenwerking stimuleert en de dagelijkse werking vergemakkelijkt.

Architecturaal statement in eenvoud

Met een oppervlakte van 3500 vierkante meter is Politie Polder een gebouw dat helderheid uitstraalt in al zijn geledingen. Van de rationele plattegrond tot de verfijnde detaillering en het consequente gebruik van hout: alles is ontworpen vanuit systeemlogica en materiaalefficiëntie. Toch gaat deze doelmatigheid niet ten koste van de esthetiek. Integendeel: de eenvoud van de opzet, gecombineerd met het genuanceerde gevelspel, maakt het gebouw herkenbaar en eigenzinnig. Door zijn circulaire potentieel bewijst het project dat duurzame publieke architectuur niet hoeft in te boeten aan kwaliteit of gebruiksgemak.

Het project illustreert hoe een publieke infrastructuur kan bijdragen aan een hedendaagse invulling van circulaire ambities, zonder aan comfort of representativiteit in te boeten. Voor de Politiezone Polder betekent dit een nieuw hoofdstuk in een omgeving die voortdurend in beweging is. Ook in de toekomst kan het gebouw flexibel antwoorden op maatschappelijke veranderingen en nieuwe werkprocessen. Zo kan het politiegebouw uitgroeien tot een herkenbaar baken dat fungeert als werkplek én symbool voor een duurzame publieke dienstverlening.

Bron Goedefroo architects

  • Deel dit artikel

Onze partners