Jona Van Steenkiste (Bureau Bouwtechniek) en Lisa Van Gulck (UGent) over EURECA-project: “Begrijpen waarom ons ontwikkelde circulaire gevelsysteem nog niet levensvatbaar is”

  • image
  • image
  • image
  • image
  • image

EURECA, een onderzoeksproject gesubsidieerd door Vlaanderen Circulair met de ambitie een circulair gevelsysteem te ontwikkelen dat toelaat gebouwen op een snelle én circulaire manier tijdelijk te renoveren, werd deze zomer afgerond. Ingenieur-architect Jona Van Steenkiste van Bureau Bouwtechniek en doctoraatsstudente aan de UGent Lisa van Gulck, die meewerkten aan het project, lichten voor Circubuild de onderzoeksresultaten toe. “We begrijpen waarom ons ontwikkelde circulaire gevelsysteem vandaag nog niet levensvatbaar is. Maar ook dat is een waardevolle bevinding. We hopen nu dat vervolgonderzoek onze mock-up nog verder kan verfijnen”, klinkt het.

Het EURECA-project werd in december 2019 opgestart en zou normaal eind 2021 gefinaliseerd worden. Door de coronacrisis kregen de partners echter meer tijd, tot juni van dit jaar. Die partners, dat waren Bureau Bouwtechniek, dat de leiding nam, de UGent, Algemene Bouw Maes en De Witte Aluminiumconstructies.

EURECA staat voor Effectively Upscaling the Renovation of Envelopes witch a Circular Approach. De bedoeling van het project bestond erin een circulair gevelsysteem te ontwikkelen dat toelaat om grote gebouwen met een repetitieve gevel, zoals appartementsgebouwen of kantoorgebouwen, op een snelle én circulaire manier energetisch te renoveren. Het gevelsysteem moest demontabel zijn zodat het kon worden hergebruikt op andere gebouwen.

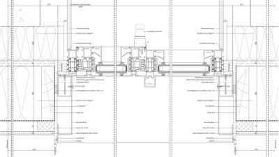
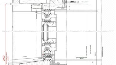
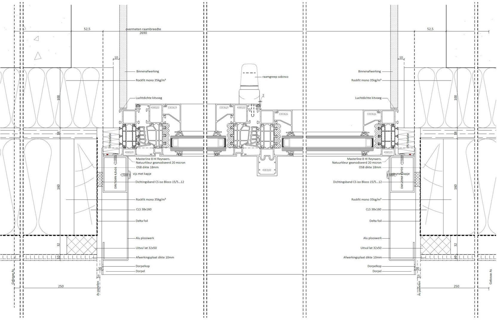
Er werd een mock-up ontwikkeld op ware grootte. Die kreeg een plaats op een van de gevels van gebouw S4 van campus De Sterre van de UGent. Enkele weken later werd het model, een nieuw raam in een voorzetgevel en vier panelen errond met aansluitingen, gedemonteerd en opnieuw gemonteerd op een van de kopse gevels van het gebouw. De mock-up en het (ver)plaatsingsproces moesten het onderzoeksteam inzicht bieden in de praktische aspecten van demontage en hergebruik van het systeem, zoals onder meer snelheid van uitvoering en het schaderisico bij demontage.


Systeem met twee lagen en 9 gevelpanelen

Jona Van Steenkiste, duurzaamheidsadviseur bij Bureau Bouwtechniek, en Lisa van Gulck, die als doctoraatsstudente namens de UGent meewerkte aan het project, geven nog meer tekst en uitleg bij het project en lichten toe wat het onderzoek nu exact heeft opgeleverd. “Met een paar gevelexperten van de vier projectpartners zijn we eerst samen gaan zitten om te bepalen welke gevelopbouwen relevant zouden kunnen zijn. Dat hebben we gedaan voor zowel laag-, middelhoog- als hoogbouw, omdat voor die drie soorten gebouwen andere brandveiligheidseisen en eisen op het vlak van belasting gelden”, begint Jona Van Steenkiste te vertellen. “Vervolgens hebben we bepaalde prototypes uitgewerkt en die geanalyseerd op verschillende criteria, zoals plaatsingsgemak, werftijd, hergebruikpotentieel, isolatiewaarde, akoestische waarde … Uiteindelijk hebben we ervoor gekozen een combinatie van twee systemen verder uit te werken en er een mock-up van te maken.”

“Die mock-up bestaat uit twee lagen”, vult Lisa Van Gulck aan. “De eerste laag, het dichtst tegen de gevel, is een uitlattingslaag die dient om oneffenheden in de bestaande gevel en het eventueel niet helemaal verticaal staan van de gevel weg te werken. De profielen zijn gemaakt van metaal. LCA-studies die ik gemaakt had, hadden wel uitgewezen dat metaal een hogere milieu-impact heeft dan hout, maar we wilden dus één systeem voor zowel laag-, middelhoog- als hoogbouw en in het geval van hoogbouw konden we moeilijk anders.”

“Dat lattenwerk werd opgevuld met zachte minerale wol”, gaat Jona Van Steenkiste voort. “Aan die drager hingen we dan het gevelsysteem op. We ontwikkelden prefabgevelpanelen in negen maten, combinaties van een breedte van 50, 100 en 200 cm en een hoogte van 150, 250 en 350 cm. Zo konden we met de panelen verdiepingshoog gaan, maar konden we er ook mee weg tussen twee ramen. De twee lagen zorgen er ook voor dat houten of metalen elementen sowieso door één isolatielaag werden bedekt en dus geen koudebrug vormen. De eerste laag biedt overigens de mogelijkheid om technische leidingen of kanalen te plaatsen, die we liever niet in onze herbruikbare panelen wilden.”

Vervolgens ging het projectteam aan het puzzelen. Jona Van Steenkiste: “Met de computer hebben we dan met de beschikbare panelen een zo hoog mogelijke dekkingsgraad proberen te verkrijgen op enkele gevels. We behaalden vrij hoge dekkingsgraden, zeker op de kopse zijden van de appartements- en kantoorgebouwen, omdat je daar minder ramen en terrassen hebt. Dat stelde ons wel gerust. Hoekjes en kantjes zouden dan moeten afgewerkt worden zachte minerale wol en een regenscherm. Of je moet natuurlijk werken met prefabgevelpanelen op maat, maar gezien onze focus wilden wij natuurlijk werken met standaardafmetingen.”


As a service niet haalbaar

Het EURECA-project onderzocht ook de haalbaarheid van een as a servicemodel om de mock-up te vermarkten. “De aannemers in het project hebben dat volledig onderzocht, maar we moesten besluiten dat as a service financieel niet haalbaar bleek”, aldus Lisa Van Gulck. “Vooral omdat er toch nog veel handelingen moeten gebeuren op de werf. Gevelpanelen zijn geen kant-en-klaar product dat je zonder kennis of handelingen kan plaatsen. We hebben verschillende pogingen gedaan om dat probleem te counteren, maar dan kom je dus snel uit bij gevelpanelen op maat van een gebouw en dat wilden we zoals gezegd net niet, want dan is hergebruik niet mogelijk en blijft enkel de optie recyclage over.”

“Daarnaast was een andere moeilijkheid in het as a serviceverhaal het verantwoordelijkheidsvraagstuk. Als je als fabrikant de gevelpanelen tien jaar lang ‘afgeeft’ aan een gebouw, dan zou er ook een stuk verantwoordelijkheid bij de gebouweigenaar moeten liggen, zodat je absolute zekerheid hebt dat je ze er ooit weer zorgvuldig en in een goede staat af kan halen.”


Vergelijking met twee courante systemen

Naast het gevelpaneel ontwikkelen, was een tweede belangrijk luik van het onderzoek natuurlijk de vergelijking met courante systemen op de markt. Lisa Van Gulck: “EURECA maakte ten eerste de vergelijking met een ETICS-systeem. Dat gevelsysteem heeft door zijn geringe aantal materialen een relatief lage milieu-impact, maar in de praktijk wordt het wel haast altijd afgewerkt met pleister. Doordat de isolatie op de draagstructuur wordt gekleefd en door de pleisterlaag op de isolatie is het niet herbruikbaar. De tweede vergelijking maakten we met een geventileerd gevelsysteem. Dat kan wel gedemonteerd worden aangezien het uit onafhankelijke lagen en omkeerbare verbindingen bestaat.”

“Een LCA-studie over zestig jaar maakte duidelijk dat ons systeem niet opkan tegen ETICS. Maar dan spreken we dus over de situatie waarin die ETICS-gevel zestig jaar rond hetzelfde gebouw blijft zitten, want door de onomkeerbare pleisterwerken valt het niet te hergebruiken. Het is dus niet circulair. Ons systeem is net ontwikkeld als tijdelijke verbetering van de gevel tot een volgende ingrijpende renovatie zich opdringt en om dus regelmatig te verhuizen van gebouw naar gebouw. We moeten wel zeggen dat zelfs uit een vergelijkende LCA-studie waarin we een verplaatsing om de tien jaar in rekening namen voor een studieperiode van dertig jaar, TICS nog altijd beter kwam. Ons systeem kon, met de nodige materiaalverliezen, hergebruikt worden, terwijl het ETICS-systeem telkens moest worden weggegooid en opnieuw geproduceerd, maar ETICS heeft zo’n lage milieu-impact dat je het wel een aantal keren kunt produceren vooraleer het de slechtste oplossing wordt. Het relatief verschil tussen ETICS en ons systeem wordt wel kleiner naarmate er meer verplaatsingen plaatsvinden. ETICS is dan weer niet de meest logische keuze bij hoogbouw omwille van een slechtere bestandheid tegen windbelasting.”

“In de vergelijking van ons systeem met een geventileerd gevelsysteem, moesten we vaststellen dat dit laatste eigenlijk een heel degelijk systeem is en dat het ook in grote mate circulair is. Alleen stoot je daar dan weer op andere tekortkomingen. De houten of metalen profielen waar de gevelbekleding op bevestigd wordt, moet bijvoorbeeld in een voldoende krachtige structuur worden bevestigd. Bij het gemiddelde kantoorgebouw uit de jaren zeventig, waar niet-draagkrachtig metselwerk zit tussen de betonnen balken en kolommen, is die er niet en daar is een standaard geventileerd gevelsysteem dus vaak geen optie. Ons systeem is wél toepasbaar op zo’n hoogbouw met een niet-kwalitatief binnenspouwblad.”

“Een ander verschil met een geventileerde gevel is dat je zo’n gevel slechts tot op materiaalniveau kan demonteren en het onze tot op elementniveau.”


Besluit

“Samengevat kunnen we stellen”, neemt Jona Van Steenkiste het weer over, “dat een ETICS-systeem niet zo goed uit het onderzoek komt vanuit circulair standpunt, maar een geventileerd gevelsysteem eigenlijk wel. Al heeft dat dus wel enkele technische tekortkomingen. Ons systeem is ook veelbelovend in de context van circulair bouwen, maar is vandaag nog niet echt levensvatbaar. De reden daarvoor is het feit dat gebouwen vandaag nog steeds op maat en dus te specifiek worden ontworpen om ze te kunnen aanpakken met een beperkt aantal gestandaardiseerde gevelpanelen. De toevoeging van de hergebruikmogelijkheid maakt ons systeem ook materiaalintensiever. Maar de bevinding dat er in de huidige context met een geventileerd gevelsysteem eigenlijk al een heel goed circulair gevelsysteem bestaat, is natuurlijk ook een relevante besluittrekking. Ons onderzoek kan zeker dienen als bron voor vervolgonderzoek. Daar hopen we dan ook op.”

  • Deel dit artikel

Onze partners