KRAS architecten transformeert Gentse industriële loods tot daglichtrijke radiologiepraktijk

  • image
  • image
  • image
  • image
  • image
  • image
  • image
  • image

Een industriële loods, die de voorbije eeuw tal van functies huisvestte, werd door KRAS architecten getransformeerd tot een duurzame radiologiepraktijk, ingebed in het stedelijk weefsel van Sint-Amandsberg (Gent). De herbruikbare gebouwdelen werden herbestemd en aangevuld met een slimme hybride houtconstructie: een mix van CLT en houtskelet. KRAS zette met dit project een ontwerp neer dat tal van complexe randvoorwaarden combineert en de donkere loods van weleer transformeert tot een duurzame en aangename (werk)omgeving voor al haar gebruikers, nu en in de toekomst.

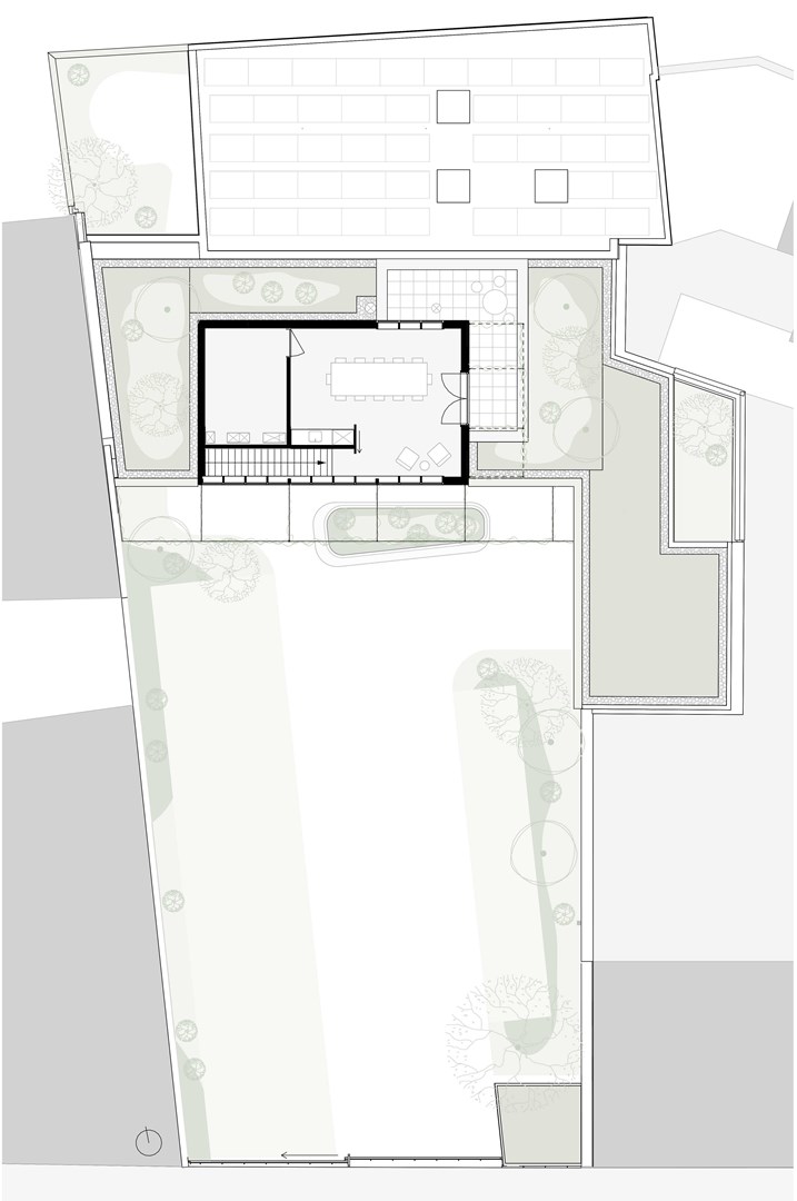
Binnen het compacte plot ontwierp KRAS een radiologiepraktijk, met veel aandacht voor het welzijn van patiënten, artsen en medewerkers. Daglicht, binnen-buiten-relaties en contact met de groene buitenomgeving staan hierin centraal. Achter het healing environment van het interieur gaat een efficiënte organisatie van een klein maar complex programma schuil. Gescheiden circulatie van medewerkers en bezoekers, korte looplijnen en een strategische positie van de frontoffice dragen daartoe bij.

Rust, welzijn en daglicht centraal

Reeds bij het betreden van de site staan rust en welzijn centraal. De bezoeker verlaat de drukte van de steenweg en parkeert de wagen of de fiets op een voorplein, dat mettertijd zal worden ingericht als groene, rustige bufferzone. De gevel van het gebouw is zeer transparant en biedt de bezoeker meteen een blik in het gebouw. Het onthaal en de wachtruimte vormen een warme binnenomgeving, in nauw contact met de buitenomgeving door middel van grote raampartijen en een lichtrijke patio.

Het interieur werd vormgegeven met oog voor de kleinste details en met aandacht voor alle soorten bezoekers. Voor de allerkleinsten werd een avontuurlijke speelhoek onder de trap gerealiseerd. Ook achter de schermen staat daglicht centraal. Een tweede patio brengt daglicht naar de werkplek en biedt de mogelijkheid om te lunchen in een oase van rust. Bovenin werd een vergaderplek met dakterras voorzien, die onafhankelijk van de radiologiepraktijk kan functioneren.

Bron KRAS

  • Deel dit artikel

Onze partners