Licht en open paviljoen op Provinciedomein Huizingen door BC Architects

  • image
  • image
  • image
  • image
  • image

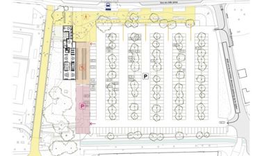
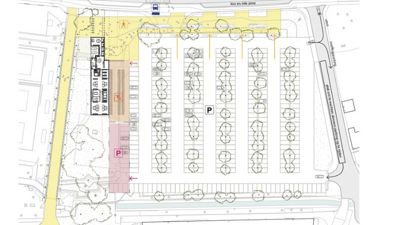
BC Architects kreeg de opdracht een nieuw paviljoen te ontwerpen voor Provinciedomein in Huizingen dat naast een ticketbalie en ontvangstruimte ook bureaus herbergt. Ze grepen het ontwerp aan om de bestaande parking te herdenken. De keuze voor den en beton zorgt voor een open, lichte structuur op het drukbezochte domein.

Kasteel

Het domein is door zijn ligging naast de Brusselse ring erg afhankelijk van autogebruik. Dat zorgt samen met voetgangers en fietsers voor een chaotisch verloop op de parking. Het contrast voor het kasteel, met chaos en geronk, in tegenstelling tot achter het kasteel, met een ontspannen sfeer, was te groot. BC Architects kreeg de opdracht een nieuw paviljoen te ontwerpen dat naast een ticketbalie en ontvangstruimte ook bureaus herbergt. Ze grepen het ontwerp aan om de bestaande parking te herdenken. De positie van het paviljoen structureert de flow van auto’s, voetgangers en fietsers. Tegelijk creëert het ook een buffer ten opzichte van het kasteel.

 

Openheid

“Het ontwerp is ingebed langsheen de voetgangersweg die het recreationele gedeelte introduceert. Het kan beschouwd worden als een geprogrammeerde afsluiting tussen deze weg en de meer infrastructurele parking,” aldus BC Architects. Voor dit ontwerp in het groen voorzagen de architecten ook verschillende kruiszichten die een gevoel van openheid en bewustzijn creëren. Die openheid uit zich op drie verschillende niveaus, bijgestaan door de natuurlijke materialisatie in hout. 

Aan het westelijke einde krijgt het paviljoen de meeste openheid, hier ontstaat zo een binnenplein. Aangrenzend bevinden zich de loketten en wachtersbureaus, met aan beide zijden uitzicht voor maximale controle en betrokkenheid. In het midden van het gebouw voorzag BC Architects bureaus voor het secretariaat, die positie laat een optimale communicatie toe.

Aan de oostkant komen de rustig gelegen administratieve bureaus. Het hoogteverschil laat toe om onder de oostelijke bureaus nog polyvalente ruimtes te voorzien, geschikt voor meetings of educatieve workshops. De verbinding met de administratieve ruimtes komt tot stand door een trap met vide, die zorgt voor licht en ruimtelijke betrokkenheid.

 

Prefab

BC Architects: “Door de keuze voor thermisch behandelde den met een betonnen skeletstructuur krijgt het paviljoen een hedendaagse look, bovendien konden we zo het budget binnen de perken houden.” Prefab beton structuren met verloren houten bekisting dragen bij aan de architecturale layout. Die beton structuur draagt de prefab vloerelementen die op hun beurt de 10 meter lange overspanning ondersteunen.

“De compactheid van het gebouw, de door circulatie gebufferde zuidgeoriënteerde binnenruimtes, het systeem van geïsoleerde prefab panelen en zonnedoeken, maken van dit ontwerp een logisch laag energie gebouw,” stipt BC Architects aan.

 

Bron BC Architects & Studies

  • Deel dit artikel

Onze partners