Multi-inzetbaar cultureel centrum behoudt contact met de omgeving dankzij akoestische oplossingen (MORGEN)

  • image
  • image
  • image
  • image
  • image
  • image
  • image
  • image
  • image
  • image
  • image
  • image
  • image
  • image
  • image
  • image
  • image
  • image
  • image
  • image
  • image
  • image
  • image

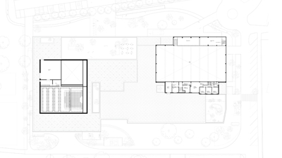
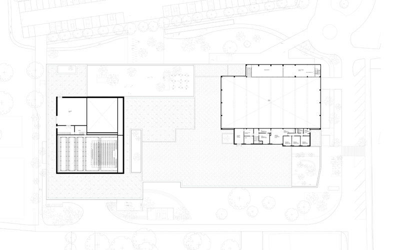
In Wommelgem werd sportcentrum 'Het Brieleke' door MORGEN architectuur uitgebreid en gerenoveerd tot een cultureel centrum. De wedstrijdvraag was veelvoudig: het maken van een theaterzaal met foyer die gelijktijdig gebruikt kunnen worden, een jeugdontmoetingscentrum en aanliggende ruimtes (artiestenruimtes, technieken,...), allemaal als uitbreiding op het bestaande sportcomplex naast een woonwijk. Het vermengen van deze verschillende functies en de ligging van het nieuwe cultureel centrum dwongen het bouwteam, met Daidalos-Peutz als akoestisch expert, tot een grondige studie akoestiek.

Samen met de gemeente Wommelgem werd voor het nieuwe Brieleke een breed doordacht programma van eisen opgemaakt en verwerkt in een masterplan voor heel het bestaande gebouw, zijn uitbreiding en de omliggende site. Inzet was het besteden van de beschikbare middelen in een zo breed mogelijk te gebruiken nieuw complex.

 

Twee toegangen

Aangezien het gebouw een veel meer publieke functie zou gaan vervullen, werd er ingezet op het verduidelijken van de toegangen en het uitzuiveren van de interne circulatie als ruggengraat van het geheel. Er worden twee toegangen ontworpen, telkenmale voorzien van een leesbare colonnade en inkompatio. De colonnades proberen de diversiteit van aanwezige bouwvolumes te omarmen tot het bekomen van één leesbaar gebouw.

 

Geïsoleerde gevels

Het programma werd gerealiseerd door het maximaal bewaren van de bestaande infrastructuur en het welgemikt toevoegen van het nieuwe programma. De bestaande volumes waaronder bv. de grote sportzaal, waren eerder gebouwd als industriegebouw en niet aangepast aan huidige comforteisen. Doorgedreven kosten-baten analyses hebben ertoe geleid dat deze volumes voorzien werden van nieuwe performant geïsoleerde gevels en weer klaar staan voor de komende 40 jaar.

 

Leesbare circulatie

Wat betreft voorkomen is gepoogd een slag te maken van een gebouw dat duidelijk ‘een sporthal’ was, naar een hedendaags gebouw met de nodige geleding, dat zich wenst te presenteren als één groot geheel, dat verwelkomt en op een duidelijk leesbare manier circulatiestromen weet te begeleiden. Het centrum ligt langs een gefrequenteerde fietsroute. Ook deze passanten vinden moeiteloos de weg naar het gebouw en zijn aangenaam ondergebracht café in de patio naast de hoofdingang.

 

Dubbele verschuifbare wand

In het wedstrijdontwerp werden de theaterzaal en foyer gescheiden door een dubbele verschuifbare wand zodat beiden ruimten samen gebruikt kunnen worden voor feesten, eetfestijnen, etc. maar ook apart gebruikt kunnen worden voor theatervoorstellingen en recepties. De dubbele wand zorgt voor een voldoende geluidsisolatie tussen beiden zalen, zodat ze gelijktijdig en onafhankelijk van elkaar kunnen functioneren zonder elkaar te storen.

 

Maatregelen tegen geluidshinder

In ontwerpfase werd de geluiduitstraling van de gebouwen naar de omgeving gemodelleerd om hinder voor de buren uit te sluiten bij evenementen. Dit resulteerde in een reeks van maatregelen: het volume van de zaal, foyer en jeugdhuis  is uitgevoerd met een massief binnenspouwblad uit 40cm beton; alle toegangen (publiek, muzikanten/acteurs en technici) van de theaterzaal zijn uitgevoerd met een sas om overlast naar de omliggende functies en de omgeving te vermijden. Enkel bij de vluchtdeuren vanuit de theaterzaal was het niet mogelijk om een sas te voorzien, hier zijn de vluchtdeuren als tandemdeuren uitgevoerd; in het JOC is al het vast schrijnwerk ontdubbeld uitgevoerd, tussen beide beglazingen is een luchtspouw voorzien waarvan de dagkanten absorberend zijn uitgevoerd (geperforeerde houten beplating met achterliggend absorptiemateriaal) etc.

 

Contact met de omgeving

Een wens van de opdrachtgever was om in de foyer veel daglicht en voldoende contact met de buitenomgeving te hebben. Dit wordt verenigd met de hoge eisen aan geluidsisolatie naar de omgeving door het voorzien van geluidsisolerende sectionaalpoorten die voor de beglaasde gevel van de foyer worden geschoven. Op deze manier is er bij optredens of fuiven geen geluidoverlast naar de omgeving, maar blijft er een aangenaam contact met de buitenomgeving bij het normaal gebruik van de foyer als ontmoetingsruimte.

 

Geluidsabsorptie

Doorheen het project werden de nodige geluidsabsorberende afwerkingen voorzien om een gepaste nagalmtijd te hebben in de theaterzaal en om rumoer te beperken in de ruimtes met hoge bezetting.
Zo wordt er een algemeen verlaagd geluidsabsorberend plafond voorzien uit houtvezelcementplaten en worden de wanden afgewerkt met houten latten met een achterliggend spouw die wordt opgevuld met minerale wol.

 

Nagalmtijd

In de theaterzaal worden beide afwerkingen aangevuld met laagfrequente diffusoren uit in de massa gekleurde MDF-platen. Zo wordt er op alle plaatsen in de zaal een goede spraakverstaanbaarheid bekomen en is de nagalmtijd ook in de lage frequenties voldoende laag.

De theaterzaal werd in ontwerpfase gemodelleerd met een ray-tracing model. In overleg met de architect werd de afwerking van de verschillende vlakken fijn gesteld om tot de beoogde nagalmtijd te komen. Deze nagalmtijd kan variëren van 0.8s (met gordijnen rond het speelveld) tot 1s (zonder deze gordijnen).

Het resultaat is een complex dat inspeelt op de noden van de verschillende gebruikers, met respect voor de omgeving.

Bron MORGEN architectuur & Daidalos-Peutz

  • Deel dit artikel

Onze partners