NET NIET. Herbestemming van voormalige garage tot kinderdagverblijf (OFFICEU & OSK-AR)

  • image
  • image
  • image
  • image
  • image
  • image
  • image
  • image
  • image
  • image
  • image

Met hun ontwerp voor een kinderdagverblijf in het gebouw van een voormalige autogarage in Schaarbeek wonnen ZAmpone Architectuur & wissel architectuur studio een wedstrijd uitgeschreven door de Brusselse Bouwmeester. Zoals altijd bij ontwerpwedstrijden zijn er ook bureaus de het niet haalden. Zonde van de tijd en creativiteit die in hun ontwerp kroop. Om deze ontwerpen toch de aandacht te geven die ze verdienen, is er de Architectura-rubriek 'Net Niet'. Zo richten we onze schijnwerpers deze keer op OFFICEU architects for urbanity en OSK-AR architecten. Ook zij deden mee aan de architectuurwedstrijd, maar strandden op de twee plaats.

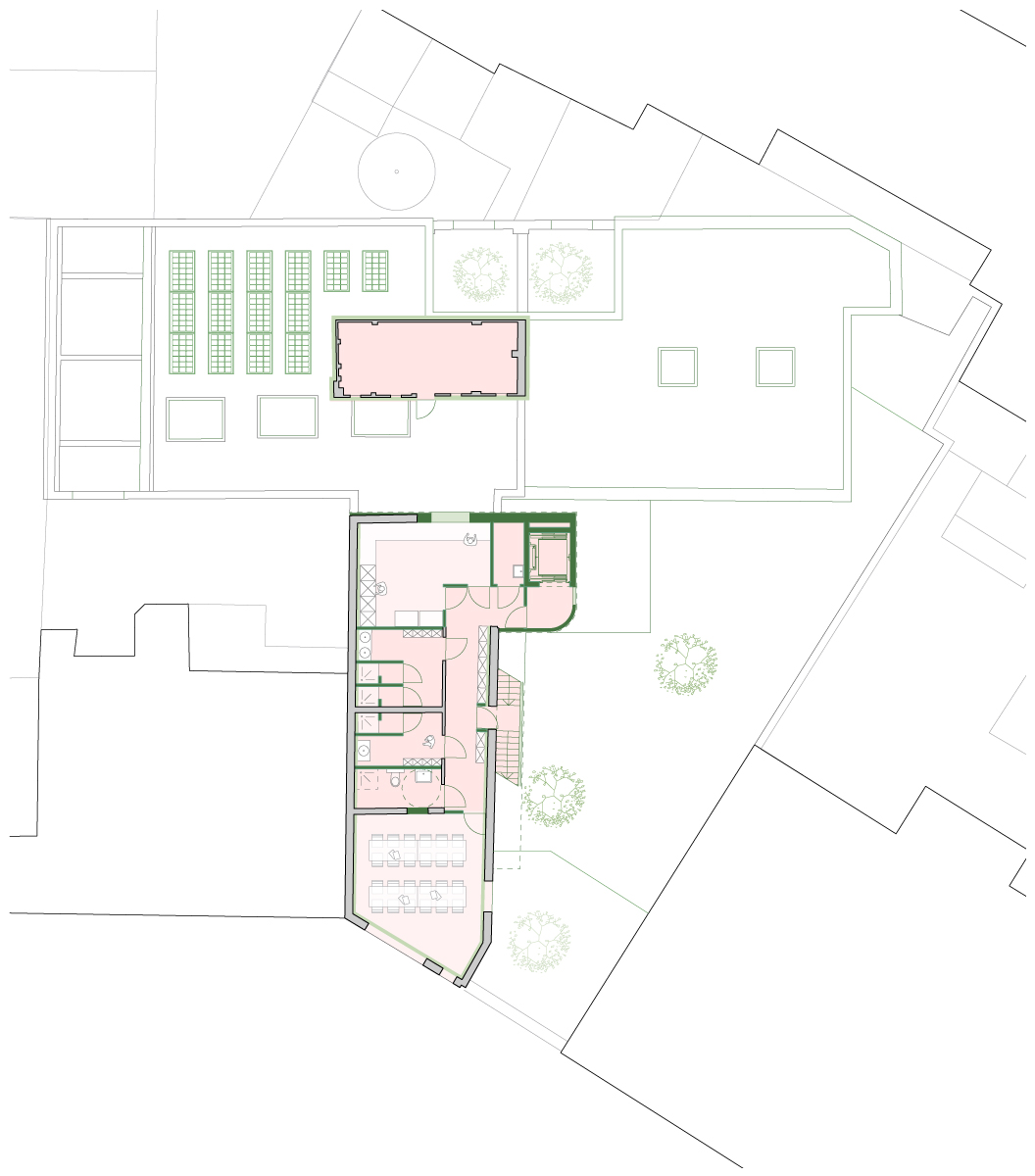
Het gebouw aan de Brichautstraat kende al verschillende transformaties doorheen haar geschiedenis. Deze geschiedenis - en de verschillende aanpassingen aan het gebouw - zijn duidelijk leesbaar en geven het gebouw een eigen identiteit. De hellingen in het gebouw ademen beweging, en de grote open ruimtes hebben duidelijke ruimtelijke voordelen. Het voelde voor OFFICEU en OSK-AR dan ook logisch om de eigenheid van het gebouw zoveel mogelijk te behouden en de aanwezige kwaliteiten te versterken in dit nieuwe hoofdstuk in haar geschiedenis.

 

Welzijn centraal

De ontwerpers wilden een leesbaar en toekomstgericht geheel creëren, een plek waar kinderen zich ten volle kunnen ontplooien en waar welzijn centraal staat. Ze hebben daarom ruimtes vormgeven die multi-inzetbaar zijn en flexibel in gebruik, en gezocht naar de juiste relaties tussen de verschillende binnen- en buitenruimtes en tussen het project en zijn context.

Het bestaande gebouw en de bestaande structuren worden maximaal behouden. Enkel daar waar het noodzakelijk is om licht, lucht en groen in de ruimtes te brengen, worden openingen in het bestaande gebouw gemaakt, steeds binnen de bestaande structurele logica. Op de plaatsen waar structurele of ruimtelijke toevoegingen noodzakelijk zijn, wordt er enkel gebruikt gemaakt van duurzame materialen.

 

Interactie met de buurt

De wijk is een dichtbevolkte, dense wijk met weinig groen. De aanwezige openbare ruimtes bieden daarnaast weinig speelruimte voor kinderen. OFFICEU en OSK-AR voorzien in hun ontwerp dan ook een veelheid aan kwalitatieve groenruimtes en een diversiteit aan prikkelende bewegingsruimtes. Ze creëren een plek waar kinderen zich kunnen uitleven, waar er groene buitenruimte is om te ravotten, om op ontdekking te gaan. De architecten zoeken daarbij naar een subtiele interactie met de buurt, waarbij het ontwerp de mogelijkheid in zich draagt om groenruimte en bewegingsruimte in beperktere of grotere mate open te stellen voor de wijk.

Het ontwerpteam wil voorzien in aangename ruimtes, met voldoende licht en zichten op groen en de (soms blauwe) lucht. De crèche vormt een helder, functionerend geheel met duidelijk leesbare ruimtes en begrijpelijke routes, waar bijzonder veel aandacht is voor het welzijn van zowel de kinderen, de ouders als het personeel. De verbeelding van de kinderen wordt geprikkeld, spelmogelijkheden vormen een rode draad doorheen het project. Het ontwerp wil kinderen en begeleiders alle kansen aanreiken om zich maximaal te ontplooien.

Bron OFFICEU architects for urbanity

  • Deel dit artikel

Onze partners