NWLND Rogiers Vandeputte en Havana architectuur versterken Gentse Freinetschool met Kinderdagverblijf Dampoort

  • image
  • image
  • image
  • image
  • image
  • image
  • image
  • image
  • image
  • image
  • image

In Gent is Kinderdagverblijf Dampoort officieel gelanceerd en de offertefase voor aannemers geopend. Het project is een ontwerp van de bureaus NWLND Rogiers Vandeputte en Havana architectuur, in opdracht van Stad Gent. Samen met bouwpartners Stabimi, TECH3, Bureau De Fonseca, Studibo, Seghers Landschapsarchitecten en EMS-advies werken de ontwerpers aan een project dat de historische Freinetschool De Vlieger opnieuw verankert in haar stedelijke context én klaarstoomt voor de toekomst.

Het project kadert in een bredere hertekening van de schoolsite, die in drie fasen wordt aangepakt. De nieuwbouw voor het kinderdagverblijf vormt niet alleen een belangrijke eerste stap, maar is ook het vehikel waarmee het ontwerpteam het bredere masterplan op intelligente wijze helpt realiseren. De architecten grijpen deze gelegenheid aan om de werking van de school te optimaliseren, tijdelijke verhuisoperaties te beperken en een ruimtelijk kader te bieden voor toekomstige onderwijsontwikkelingen.

KDV als scharnier in het masterplan voor de schoolsite

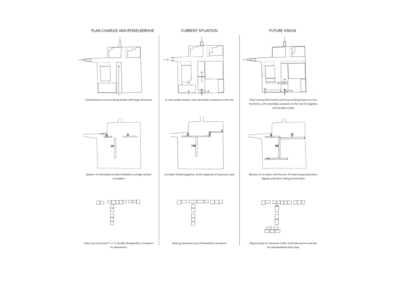
De schoolsite, die een centrale plek inneemt in een dicht stedelijk bouwblok tussen Dendermondsesteenweg en de Wasstraat, is sinds 1882 meegegroeid met de stad. De oorspronkelijke kruisvormige gebouwen van stadsarchitect Charles Van Rysselberghe nestelen zich tussen de woonhuizen en hebben een tentakelstructuur naar drie omliggende straten. De oostzijde bleef echter lang onvoltooid, waardoor de typologie nooit helemaal leesbaar was. Met de toevoeging van KDV Dampoort vervolledigen de ontwerpers de ruimtelijke figuur, zonder de historische gelaagdheid te verdrukken.

De crèche wordt een vanzelfsprekend onderdeel van het bouwblok, zonder de school te verbergen of op te sluiten. Net als het eerder gerealiseerde jeugdcentrum De Wasserette (ontwerp: Bart Dehaene en Peter Geldof) staat het nieuwe gebouw een vijftal meter terug van de rooilijn. Samen vormen ze een soort trechter naar het schoolterrein, met een poort die nog verder terug ligt. Zo ontstaat een semipublieke voorruimte die de school opent naar de buurt. Op termijn zou de verkeersluwe Wasstraat zelfs verhoogd kunnen worden, wat een vloeiende overgang tussen school en park zou opleveren.

Een ontwerp dat de school én de buurt versterkt

In plaats van zich terug te trekken achter de bestaande muur op de rooilijn, kiezen NWLND en Havana ervoor om de achtergevels van de crèche open te draaien naar het buurtpark. De drie leefgroepen bevinden zich tussen een collectieve buitenruimte en een voortuin, die visueel contact mogelijk maakt zonder de privacy van de kinderen in het gedrang te brengen. De eenvoudige maar doordachte compositie sluit aan bij het corridorprincipe van de historische school, maar keert tegelijk de logica om door het park als centrale oriëntatie te nemen.

De nieuwe gebouwen bieden niet alleen fysieke ruimte voor jonge kinderen, maar herstructureren ook de werking van de school. Administratieve functies van de school en het kinderdagverblijf worden samengebracht in het bestaande schoolgebouw, dat daardoor efficiënter en overzichtelijker functioneert. Op de verdieping boven de crèche voorziet het ontwerpteam een flexibele ruimte, die tijdens de renovatiefasen dienst kan doen als klaslokaal of ontmoetingsruimte, en op lange termijn plaats biedt aan pedagogische vernieuwing binnen het Freinetonderwijs.

Architecturale knipoog naar verleden en toekomst

De ontwerpers blijven trouw aan de sobere uitstraling van de site, maar geven er een hedendaagse draai aan. De nieuwbouw heeft qua planstructuur verwantschap met het oude schoolgebouw, maar verschilt duidelijk in materiaalgebruik en constructie. Het skelet is opgebouwd in staal, met houtskeletwanden die de verschillende leefgroepen verdelen. Grote bandramen zorgen voor licht en zicht, terwijl de gevel wordt bekleed met golvende vezelcementplaten die verwijzen naar het ruw bekiste beton van De Wasserette.

Het resultaat is een gebouw dat zich niet opdringt, maar wel een nieuw hoofdstuk toevoegt aan de geschiedenis van de site. De kinderdagverblijfvolumes passen qua schaal en positionering in het stedelijk weefsel, en vormen tegelijk een schakel tussen de interne schoolwerking en de publieke ruimte van de buurt. Het ontwerp laat ruimte voor toekomstig gebruik, biedt robuuste oplossingen voor tijdelijke noden, en draagt op een slimme manier bij aan de geleidelijke herontwikkeling van het hele bouwblok.

Bron NWLND Rogiers Vandeputte & A+

  • Deel dit artikel

Onze partners