Ontwerp nieuwe Beeld- en Dansacademie Hoboken mikt op ontmoeting, samenwerking en zichtbaarheid (Bart Dehaene & LAMUSCH)

  • image
  • image
  • image
  • image
  • image
  • image
  • image
  • image
  • image

In de Notelaarstraat in Hoboken bevindt zich vandaag de afdeling Beeld en Dans van de Academie van Hoboken. Het historisch gebouw zal worden afgebroken om plaats te maken voor een nieuwbouw die een nieuw impuls moet geven aan het bouwblok. In een toekomstige tweede fase wordt een verdere uitbreiding van de kunstencampus voorgesteld die ook de afdeling Woord en Muziek en de bestaande sporthal omvat.

De Academie van Hoboken wil zich openen naar de buurt. Het moet een uitnodigende en gezellige plek zijn voor zowel studenten als passenten. De gebouwen moeten flexibel zijn en eventuele toekomstige functies kunnen opnemen. AG Vespa ging op zoek naar een geschikt ontwerpteam via de wedstrijdpool voor architectuuropdrachten en vond die met laureaten Architectenbureau Bart Dehaene en LAMUSCH Architecten.

 

Ontmoeting en samenwerking

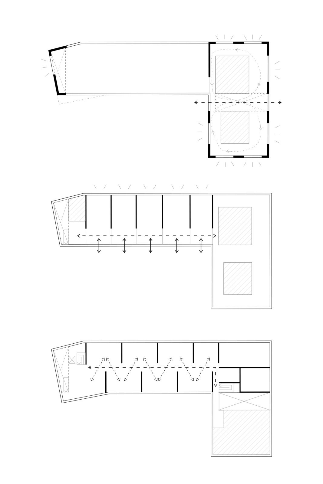
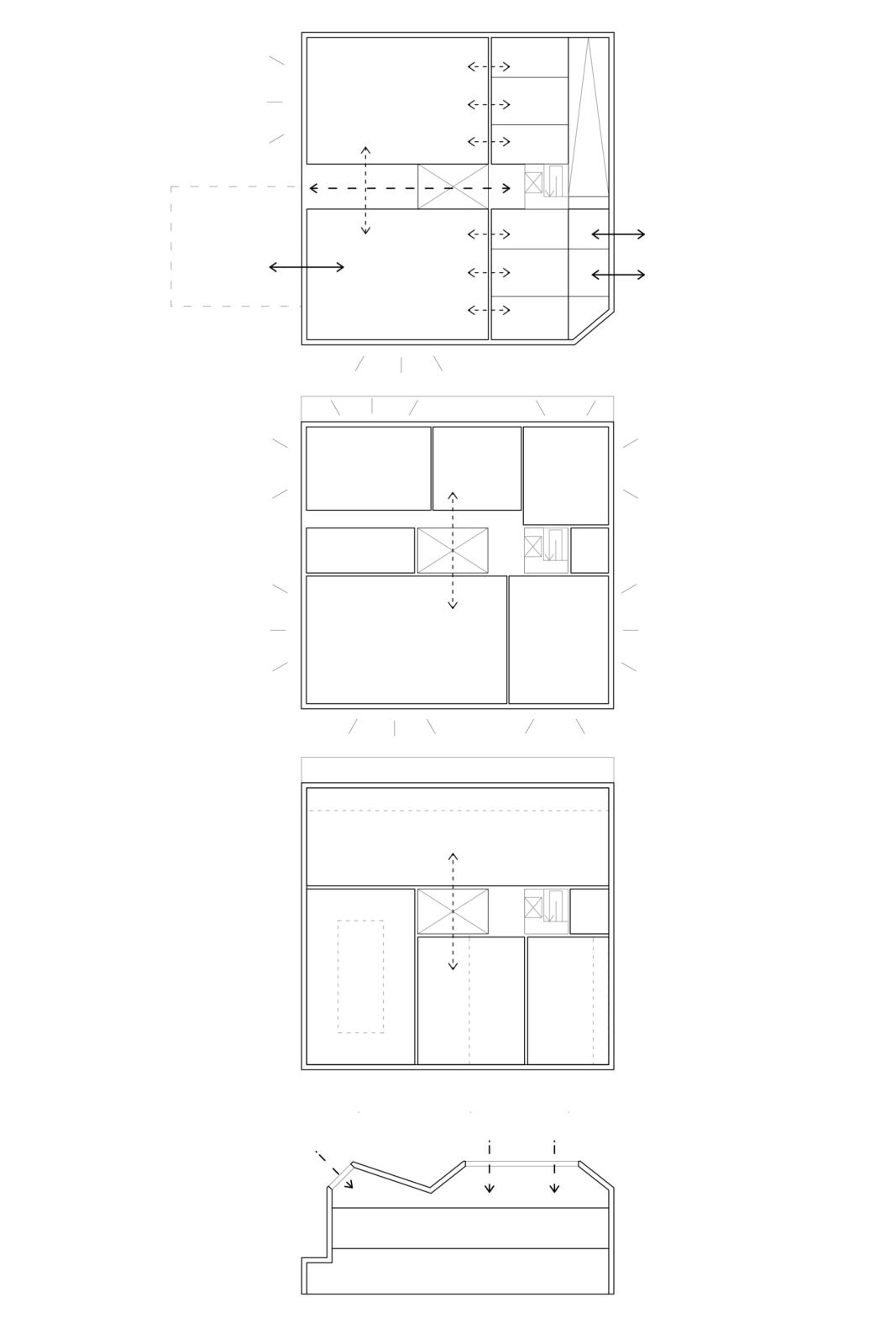
Opmerkelijk aan het ontwerp is de binnenstraat die een variëteit aan buitenruimtes aan elkaar schakelt en de straat een perspectief biedt naar de school. De centrale administratie ligt midden op de site en vormt het hart van de school. De ateliers hebben grote ramen aan de straat, zodat buurtbewoners zicht hebben op de activiteiten in de school. 

Jef Pottier, projectleider bij atelier stadsbouwmeester van Stad Antwerpen en lid van de jury prijst de kwaliteiten van het ontwerp van Bart Dehaene & LAMUSCH: “Het centrale hart beantwoordt aan de dagdagelijkse werking van de academie en in het ontwerp gaat veel aandacht naar ontmoeting, samenwerking, zichtbaarheid en doorzichten."

 

Buitenruimtes

Voor het ontwerp van de nieuwe Academie van Hoboken is de vraag naar het gewenste soort buitenruimtes leidend geweest. Een academie is tenslotte geen gewone school, waar in de pauzes gevoetbald wordt op het schoolplein. In zekere zin heeft een academie geen nood aan één groot schoolplein, maar juist aan een verzameling van buitenruimtes, verschillend in karakter en schaal. Buitenruimtes die een directe betrokkenheid hebben op het gebouw en uitnodigen tot toe-eigening vanuit dat gebouw.

Voor deze ruimtes vonden de ontwerpers inspiratie in de binnenstraten van 19e-eeuwse industriële sites. Deze straten zijn als ruimte eerder het resultaat van de omliggende bebouwing dan omgekeerd en in eerste instantie bedoeld om het bouwblok efficiënt te ontsluiten. Ze bieden echter vaak interessante perspectieven en zorgen voor een boeiende wandeling doorheen het blok. Het nieuwe, meestal postindustriële gebruik van dergelijke sites toont ook hoe deze binnenstraat eenvoudig kan worden toegeëigend kan worden. Grote poorten zorgen voor een directe relatie met het gebouw waardoor een atelier op een mooie dag zijn werkzaamheden deels buiten laat plaats vinden. Tegelijkertijd voorkomt het semipublieke karakter van de straat dat deze volledig privatiseert.

 

Semipublieke ruimte

Architectenbureau Bart Dehaene en LAMUSCH Architecten zien in deze binnenstraat ook een antwoord op de vraag van de Academie naar transparantie en betrokkenheid op het publiek domein. Niet door het gebouw volledig te openen naar de omliggende publieke ruimte, maar door het maken van een semipublieke ruimte die leerlingen, bezoekers en bewoners uitnodigt om het terrein te betreden, van buitenaf een klas binnen te kijken of een expo te bezoeken.

In de architectuur bouwen ze voort op de variatie in de buitenruimtes. De gebouwen die deze ruimtes maken krijgen ook elk een eigen karakter. De architecten werken op die manier aan diversiteit en herkenbaarheid op de site. Zo is het L-gebouw lang en ligt aan de straat. De geaccentueerde koppen geven het publieke aanwezigheid en markeren de collectieve entree centraal op de site.

Het Blok-gebouw daarentegen staat iets terug van de straat en heeft met zijn vrijwel vierkante planopbouw een meer autonoom karakter. Voor de verdeling van het programma werd een onderscheid gemaakt tussen de kleinere ateliers en grotere leslokalen en werden ze elk op een passende wijze georganiseerd. De verschillende clusters zijn daarbij telkens zoveel mogelijk ondergebracht op een enkele bouwlaag, waardoor er eenvoudig uitwisseling plaats kan vinden tussen de ateliers onderling.

Bron Stad Antwerpen | Architectenbureau Bart Dehaene

  • Deel dit artikel

Onze partners