Restauratie The Grand in Nieuwpoort uit de startblokken (David Chipperfield Architects)

  • image
  • image
  • image
  • image
  • image
  • image
  • image
  • image
  • image
  • image

The Grand in Nieuwpoort, de baanbrekende herbestemming van het voormalige ‘Le Grand Hôtel’ en ‘The White Residence’, gaat een nieuwe fase in. Erfgoedontwikkelaar VDD Project Development heeft zo pas het startschot gegeven voor de restauratie- en opbouwwerken, een belangrijke volgende stap in de metamorfose van het iconische gebouw. Voor het ontwerp van The Grand ging VDD in zee met het gerenommeerde architectenbureau David Chipperfield Architects. David Chipperfield, oprichter van het bureau, haalde onlangs nog het wereldnieuws na het winnen van de prestigieuze Pritzker Architecture Prize 2023.

De Belgische kust wordt vooral gekenmerkt door de eentonige Atlantikwall die de kustlijn tekent, toch zijn er hier en daar nog enkele erfgoedparels te vinden. Eén van die unieke monumenten, het voormalige 'Le Grand Hôtel' uit 1924, later gekend als de 'White Residence' in Nieuwpoort, krijgt binnenkort een nieuwe toekomst. Om de grandeur van het iconische gebouw te herstellen en zijn status terug te geven, wordt een indrukwekkend en duurzaam totaalproject gerealiseerd. Met 70 bijzondere appartementen, het gelijkvloers dat wordt opengesteld voor het grote publiek met o.a. een historische bar en brasserie op de Zeedijk, wordt The Grand een hefboomproject met meerwaarde voor het monument en de ruimere omgeving.

Gevelschoringen

Na de opstart van gedeeltelijke ontmantelings- en afbraakwerken binnenin het pand en de archeologische vooronderzoeken in 2022, werd recent het startschot gegeven voor de restauratie- en opbouwfase van dit baanbrekende herbestemmingsproject. In samenwerking met aannemer Verstraete.team uit Roeselare, met ruime ervaring in restauratie-, renovatie- en nieuwbouwprojecten, wordt het gebouw de volgende maanden gestript. Langs de drie gevelzijdes werden indrukwekkende gevelschoringen geplaatst. Deze gele constructies zorgen voor de stabiliteit en instandhouding van de buitengevels en de historische traphal tijdens de funderings- en ruwbouwwerken, die vermoedelijk vanaf september 2023 van start zullen gaan.

David Chipperfield Architects

VDD koos voor David Chipperfield als architect omwille van zijn expertise en fijngevoelige aanpak bij de renovatie en restauratie van bestaande gebouwen. Chipperfield hanteert daarbij de filosofie van ‘adaptive reuse’: hij beperkt zich niet tot waardevolle restauraties, en vindt historische gebouwen belangrijk genoeg om er nieuwe functies aan te geven. Hierbij worden kwaliteiten van een gebouw gevierd en interventies toegelaten. In The Grand wordt dit concreet gemaakt door de toevoeging van extra verdiepingen, in een hedendaagse architectuurtaal die het oorspronkelijke idee van het ontwerp versterken.

Monument in verval

Het voormalige Le Grand Hôtel werd in 1924 ontworpen door de Belgische architect Apollon Lagache. Terwijl de sinds eind negentiende eeuw populair geworden badplaats Nieuwpoort-Bad eromheen groeide, raakte het gebouw zelf in verval. Aanzienlijke oorlogsschade, gecombineerd met geleidelijke aanpassingen, waaronder de afbraak van enkele torentjes, deden afbreuk aan het uiterlijk, de status en het silhouet van het gebouw. Met dit project wil het bouwteam het monument zijn vroegere grandeur teruggeven.

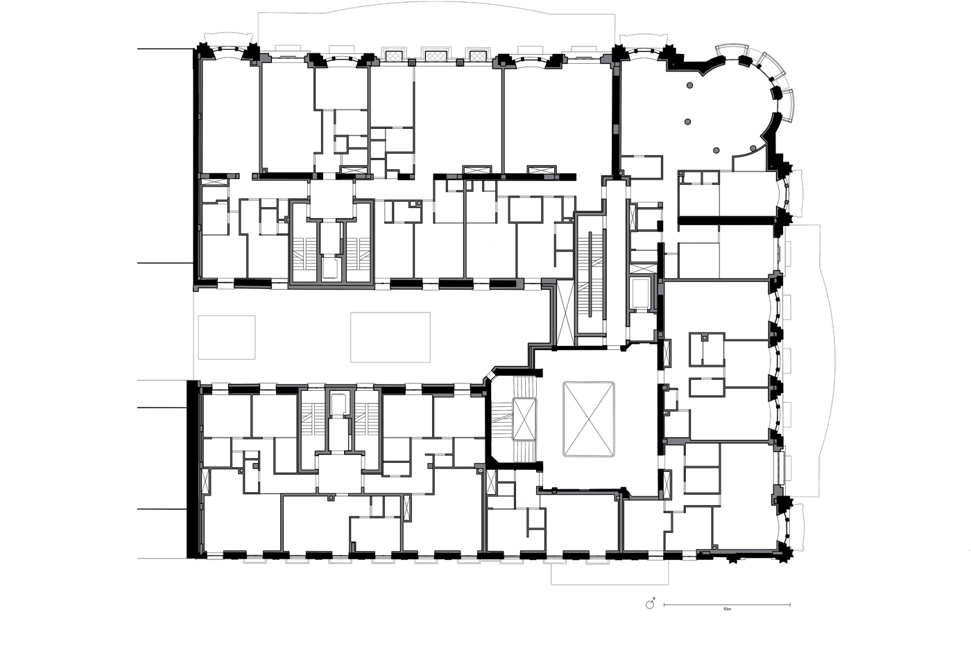
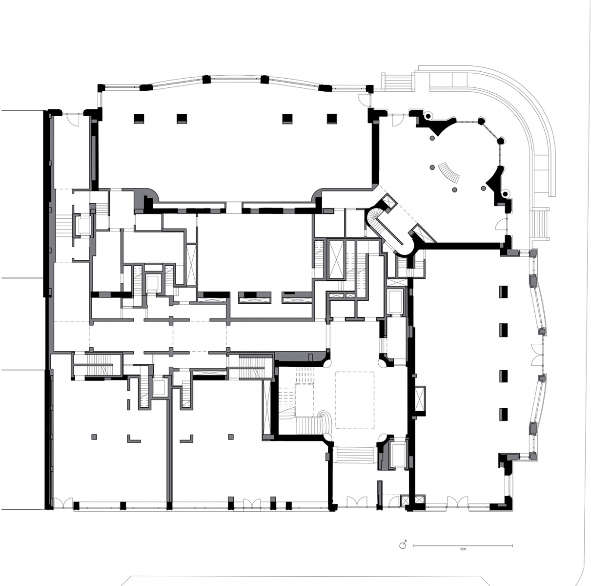
Chipperfield kijkt naar de geschiedenis van The Grand, zorgt voor de onderscheidende kwaliteiten en begrijpt de noodzaak van het voortbestaan in de toekomst. Het overgebleven historische weefsel zal zorgvuldig worden gerestaureerd, zoals de entree en de originele gevelelementen. De appartementen op de bovenste verdiepingen zullen de oorspronkelijke structuur van het hotel respecteren. Verloren elementen, zoals de toren en de koepels, worden in ere hersteld, waarbij inspiratie wordt geput uit het speelse oorspronkelijke ontwerp.

Extra verdiepingen

Het gebouw zal in schaal toenemen met vier extra verdiepingen om zijn status als landmark aan het strand van Nieuwpoort terug te krijgen. Het gebouw zelf behoudt veel van zijn decoratieve gevel, die in 1981 beschermd werd. Daarom vereist de uitbreiding een gevoelig begrip van de erfgoedwaarde en impliceert het zowel herinterpretatie en uitvinding als restauratie.

In het spanningsveld tussen erfgoedbehoud en hedendaagse technische vereisten speelt de materiaalkeuze een cruciale rol. Voor de dakbedekking wordt bijvoorbeeld voor natuurleien gekozen omdat ze perfect beantwoorden aan de twee belangrijkste uitgangspunten van het project: het respecteren van de oorspronkelijke esthetiek van het beschermde gebouw én het voldoen aan de strenge eisen op het vlak van brandveiligheid, dankzij hun onbrandbare eigenschappen. In dit kader is het CUPA 4 Vlaams Model van CUPA PIZARRAS een geschikte oplossing, die zich op een vanzelfsprekende en ingetogen manier integreert in het architecturale concept van de renovatie. 

Met het nieuwe ontwerp wordt niet getracht een stijl of signatuur aan het gebouw op te leggen, noch een contrast te creëren tussen het historische weefsel en de nieuwe toevoegingen. In dit opzicht kan het worden gezien als onderdeel van een grotendeels vergeten traditie van aanpassing en uitbreiding van historische gebouwen, waarbij rechtstreeks wordt ingegrepen in het oorspronkelijke weefsel om een genuanceerde lezing van de geschiedenis van het gebouw mogelijk te maken.

Bron Bereal | David Chipperfield Architects

  • Deel dit artikel

Onze partners