Touroperator Intersoc breidt charmant Oostenrijks berghotel uit naar duurzaam ontwerp van U/Define

  • image
  • image
  • image
  • image
  • image
  • image
  • image
  • image
  • image
  • image
  • image
  • image
  • image
  • image
  • image
  • image
  • image
  • image
  • image
  • image
  • image
  • image
  • image
  • image
  • image
  • image
  • image

Al sinds 1949 organiseert de Belgische touroperator Intersoc ‘gezonde bergluchtvakanties’. Jaarlijks genieten zo’n 36.000 vakantiegasten in een vijftigtal bestemmingen van een leuke en betaalbare vakantie. Intersoc biedt vooral ski- en zomervakanties aan in haar eigen hotels in Zwitserland en Frankrijk. Intussen heeft de touroperator nu ook haar eerste hotel geopend in Oostenrijk: Astoria. In het ski- en wellnessstadje Badhof Gastein, vlakbij Salszburg, renoveerde en breidde ze een bestaand charmant hotel uit, op maat van haar activiteiten. Het project werd ontworpen en begeleid door architectuurstudio U/Define en studiebureau Boydens Engineering, beiden uit Brugge.

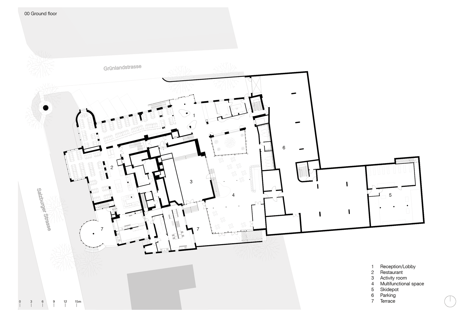
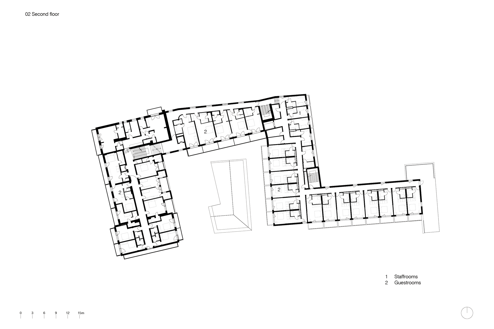
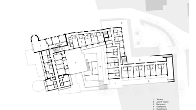
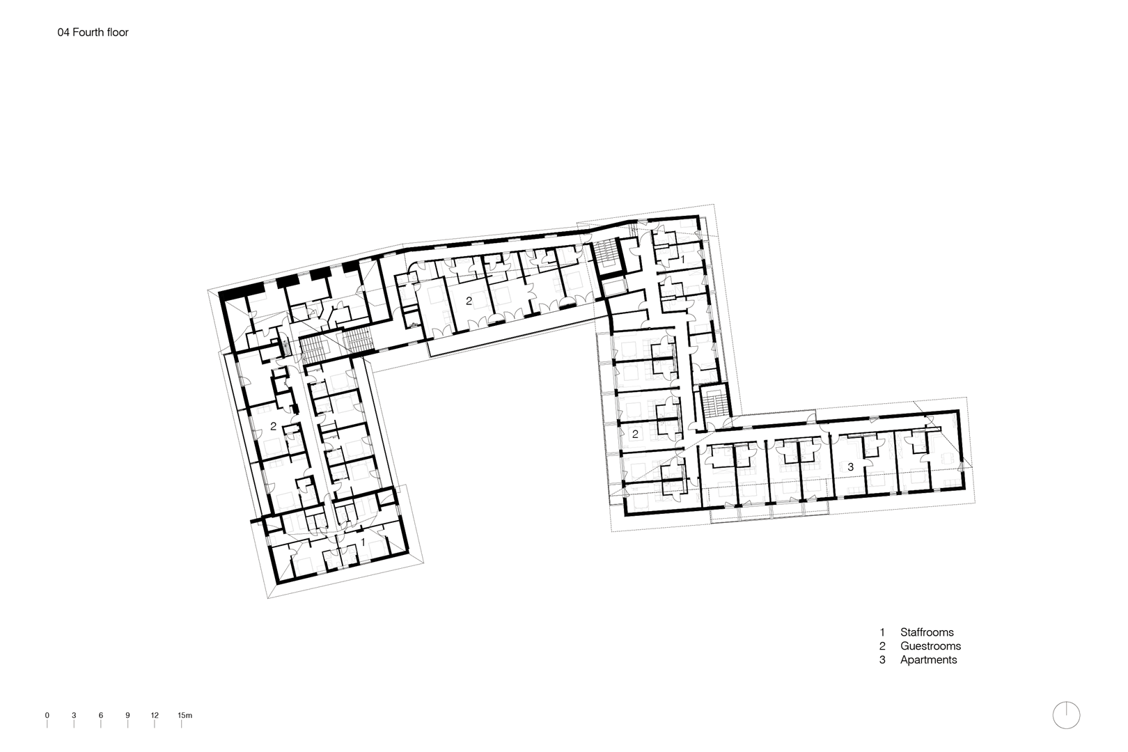
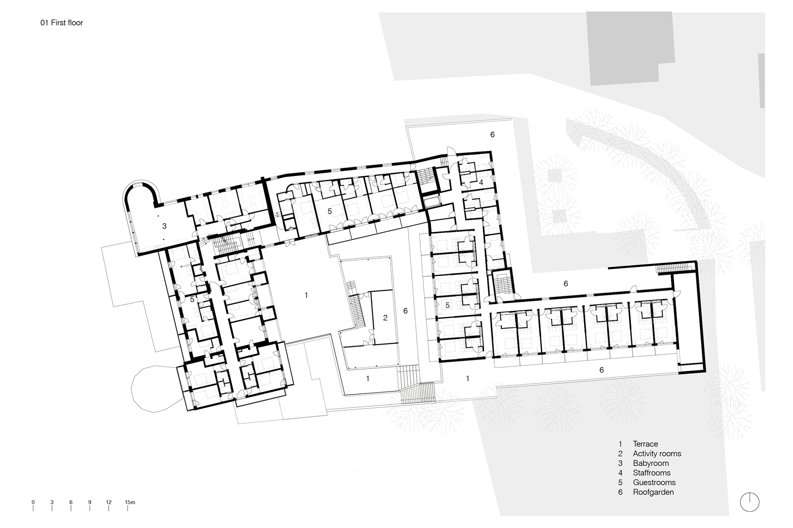
Om de capaciteit van het aantal gasten in het hotel uit te breiden met 76 nieuwe hotelkamers, werd een nieuwe hotelvleugel  aangebouwd. De extra bedden vereisten een evenredige vergroting van het restaurant en de bouw van een nieuwe multifunctionele ruimte met bar. Om de specifieke activiteiten, kenmerkend voor de animatieprogramma’s van Intersoc, te kunnen huizen, dienden er minstens drie polyvalente ruimtes te worden geïmplementeerd en één babyspeelruimte met aanpalende babyslaapruimtes.

Het extra programma vorderde een bijna volledige bezetting van het beschikbare terrein. Alle nieuwe onderdelen werden met hun eigen voorwaarden beschreven en geanalyseerd. Voldoende kwalitatieve buitenruimtes, doeltreffend ruimtegebruik, overvloedig daglicht, toegankelijkheid, duidelijke signalisatie, adequate luchtverversing, aangenaam thermisch comfort: alle puzzelstukken schoven met het ontwerp in elkaar.

Efficiënte indeling

Een hotel staat en valt met de interne organisatie. De aansluiting tussen de verschillende publieke, semipublieke en private ruimtes, en de nabijheid van bergingen en sanitair vragen een efficiënte indeling waarin loopafstanden, brandnormen en akoestische prestaties de belangrijkste parameters vormen.

De functies in het bestaande hotel lopen naadloos over in de nieuwbouw. De herinrichting van het bestaand gebouw werd voorzien op een optimalisatie in rechtstreeks daglicht en aangename uitzichten op het omringende berglandschap. De ruimtes van de Back-of-House, de zone waar alleen personeel kan/mag komen, sluiten op elkaar aan en zijn zo geplaatst dat ze de publieke functies zodanig bedienen dat de hotelgasten er geen hinder van ondervinden.

Nieuwe multifunctionele ruimte

Om het logistieke evenwicht in het gebouwencomplex te herstellen tussen bestaand gebouw en nieuwbouw, werd het hart van het hotel verplaatst van de hoofdstraat naar de nieuwe binnenruimte tussen beide vleugels. Het vormt een belangrijk scharnierpunt in het project: de nieuwe multifunctionele ruimte die hier gesitueerd is, heeft rechtstreekse verbindingen met de nieuwe lobby, het 273 zitplaatsen tellende restaurant en de vier nieuwe activiteitenruimtes. Door de verplaatsing van de hoofdtoegang van het hotel, van de hoofdstraat naar de zijstraat, werd deze centraler gepositioneerd en komt deze duidelijker naar voor in het straatbeeld.

Het project omvatte in zijn geheel de volgende werken: de verbouwing van een hotelvleugel tot nieuwe inkomzone + lobby + receptie, de verbouwing en uitbreiding van de capaciteit van het hotelrestaurant en de industriële keuken tot 273 zitplaatsen, de verbouwing van kelderruimtes tot koelruimtes en techniekenruimtes, de nieuwbouw van een nieuwe multifunctionele ruimte + bar met meer dan 150 zitplaatsen + berging en sanitair, de verbouwing van het zwembad tot polyvalente zaal, een nieuwe parkeergarage + nieuw skidepot, de verbouwing van hotelkamers tot kinderspeelruimtes en kinderslaapruimtes, de verbouwing van wijnbar tot personeelsrestaurant, de nieuwbouw van een extra hotelvleugel met 76 hotelkamers, drie nieuwe polyvalente activiteitenruimtes, nieuwe buitenterrassen en parkeergelegenheden, de herinrichting van de buitenaanleg en de toegangen, het ontwerp van vast meubilair voor de nieuwe hotelkamers + kinderspeelruimte, de wayfinding (signalisatie) in het volledige hotel.

Herinterpretatie chaletarchitectuur

De typologieën van de bebouwing rond het project werden onderzocht op ruimtelijke kenmerken en materialiteit. Aan elke zijde van de uitbreiding ziet het aanzicht er anders uit: het gebouw reageert op de lokale context maar straalt eenheid uit door de eenvoud in materiaalgebruik.

De architectuur van de nieuwe vleugel werd door architectuurstudio U/Define uitgewerkt als een herinterpretatie van de typische Oostenrijkse chaletarchitectuur. In een omgeving waar men het gewend is vooral met gewapend beton te werken als primair bouwmateriaal werd het gebruik van Oostenrijks belangrijke exportproduct in bouwmaterialen, kruislaags gelamineerd hout (CLT), als structureel materiaal en als interieurafwerking, fel gesmaakt bij de bevoegde stedenbouwkundige diensten.

De snelle uitvoering door de geprefabriceerde modules beperkte de hinder voor de omwonenden en vakantiegangers tot een minimum. Lokaal geproduceerd hout werd tevens in de vorm van gevellatten in geprefabriceerde modules aan de gevel bevestigd. De nieuwbouw valt op in het contrast tussen oud en nieuw, maar gaat op in de achterliggende omgeving van de bergen.

Massiefhouten modules

Door gebruik te maken van lokaal geproduceerd kruislaags hout in geprefabriceerde massiefhouten modules kon de nieuwe vleugel, desondanks de soms extreme weerscondities, bijzonder snel worden opgebouwd. De structuur en de afwerking zijn hetzelfde materiaal, het CLT-hout, waardoor het interieur een gezonde, serene en warme uitstraling krijgt. Ruwbouw is afwerking en droogtijd vormt geen issue en heeft aldus geen invloed op de bouwtermijn.

Houten geprefabriceerde modules als primaire structurele elementen bieden bijzondere technische en praktische voordelen voor dit project. De lichtheid en de sterkte verschaffen het materiaal een uiterst hanteerbaar en robuust karakter t.a.v. andere materialen, zowel bij de opbouw, het gebruik en bij demontage. Bijna de volledige bouwfase van het project werd geprefabriceerd en dus in een droog atelier voorbereid. Hierdoor ligt de foutenmarge in de combinatie van de bouwmaterialen een stuk lager en wordt de bouwtijd aanzienlijk ingekort. Deze methode zorgt ook voor beperkte geluidshinder voor de omgeving omdat de realisatiemethodiek op montagetechnieken werd ontworpen.

Veranderingsgericht bouwen

Bouwen op zich is weinig duurzaam omdat we telkens nieuwe grondstoffen aanspreken. Door op een duurzame en een slimmere manier om te gaan met beschikbare materialen, dragen de ontwerpers bij aan harmonie in People – Planet – Prosperity. Deze drie P’s vormen de ijking voor duurzame ontwikkeling.

Het project wil tegemoetkomen aan de behoeften van vandaag, zonder de noden van toekomstige generaties in het gedrang te brengen. Veranderingsgericht bouwen staat vandaag meer dan ooit op de klimatologische agenda. Deze strategie is ingebed in het Europese en Vlaamse beleid en komt steeds vaker aan bod in de opdrachten die regionale en lokale overheden uitschrijven. Met hun ambitie om een voorbeeld te stellen, jagen zij de circulaire transitie aan.

Demonteerbaarheid, flexibiliteit en een lange levensduur vormen de basis voor dit project. De circulaire ontwerpkwaliteiten die we aanwenden zijn: hanteerbaarheid, toegankelijkheid, robuustheid, onafhankelijkheid en compatibiliteit van bouwcomponenten, polyvalentie van ruimtes, hernieuwbare bouwmaterialen en eenvoud en omkeerbaarheid in constructie.  Dit project behoefde geen hightech, maar sobere en eenvoudige oplossingen. Oplossingen die op lange termijn aanpasbaar en onderhoudsvriendelijk blijven.

Onuitputtelijk materiaal

Gezonde materialen  en componenten erbarmen een vlot hergebruik in de toekomst. Dergelijke materialen dragen ook bij aan een gezondere leefomgeving. Daarnaast paste het ontwerpteam maximaal materialen toe die zoveel mogelijk zuiver zijn in hun samenstelling alsook robuust, vervangbaar en eenvoudig in verwerking en gebruik.

Hout is als enige materiaal onuitputtelijk. 90% van het hout dat in Europa wordt gebruikt, is Europees. Gezien de Europese boskap slechts 64,2% bedraagt van de jaarlijkse aangroei, groeit het volume hout in Europa ieder jaar met 270 miljoen m3. De positieve CO2- balans t.a.v. andere materialen zoals metaal of beton maakt dat als hout als volwaardig bouwmateriaal wordt toegepast er per m3 gebruikt hout twee ton CO2 uit de atmosfeer wordt gewonnen.

Emissiebesparing

Door hout, het enige materiaal dat een negatieve CO2-emissiewaarde heeft, als primair structureel bouwmateriaal, als afbouwmateriaal én als gevelmateriaal in te zetten in dit hotelproject, werd 2.628 ton CO2 uit de lucht gehaald t.o.v. de traditionele bouwmaterialen (beton, baksteen, staal). Voor de hotelsector, waar duurzaamheid niet bovenaan op de agenda staat, is dit een toonaangevende stap naar een klimaatbewustere sector.

Om de behaalde emissiebesparing te kunnen vergelijken op een meetbare schaal: 2.628 ton CO2 uit de lucht halen staat gelijk aan 5.615 autoritten h/t Brussel-Badhof Gastein of 1.954 vluchten h/t Brussel-Salzburg met een gezin van 4 incl. de huurwagen h/t voor Badhof Gastein of 6.844 treinritten h/t Brussel-Badhof Gastein. Het staat voor een besparing op CO2 van 15.768.000 km met een dieselwagen. Het staat ook gelijk aan het jaarverbruik van 328 Belgen.

Bron U/Define

  • Deel dit artikel

Onze partners