WIT architecten tranformeert Mechelse industriële wasserijsite tot sociaal-circulair project Impact Factory

  • image
  • image
  • image
  • image
  • image
  • image
  • image
  • image
  • image
  • image
  • image
  • image
  • image
  • image
  • image

In de Mechelse binnenstad wordt gebouwd aan de Impact Factory, een grootschalige herbestemming op een terrein van de stad Mechelen. Het project transformeert drie bestaande panden tot een circulaire omgeving voor duurzaam ondernemerschap met de toevoeging van een nieuwbouwvolume. De creatieve hub is het resultaat van een publiek-private samenwerking tussen de stad Mechelen en Stadsmakersfonds. Op uitnodiging van Architectuurwijzer komen WIT architecten en Miss Miyagi op 25 maart de architecturale en strategische visie achter dit project toelichten in het Cultuurcentrum Hasselt (CCHA).

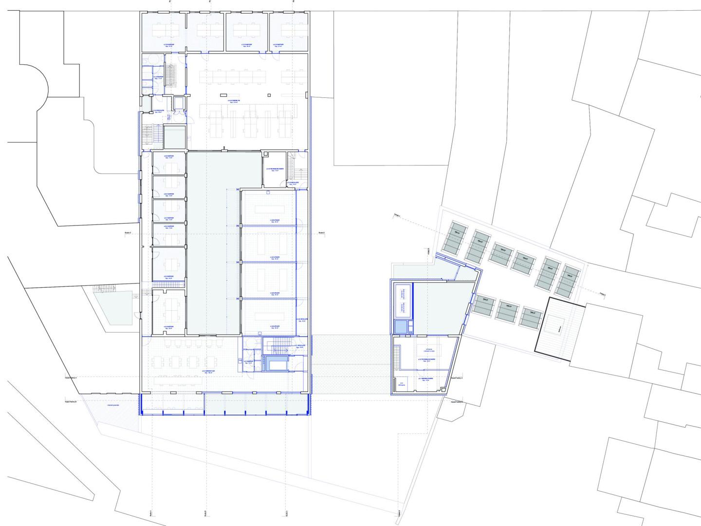
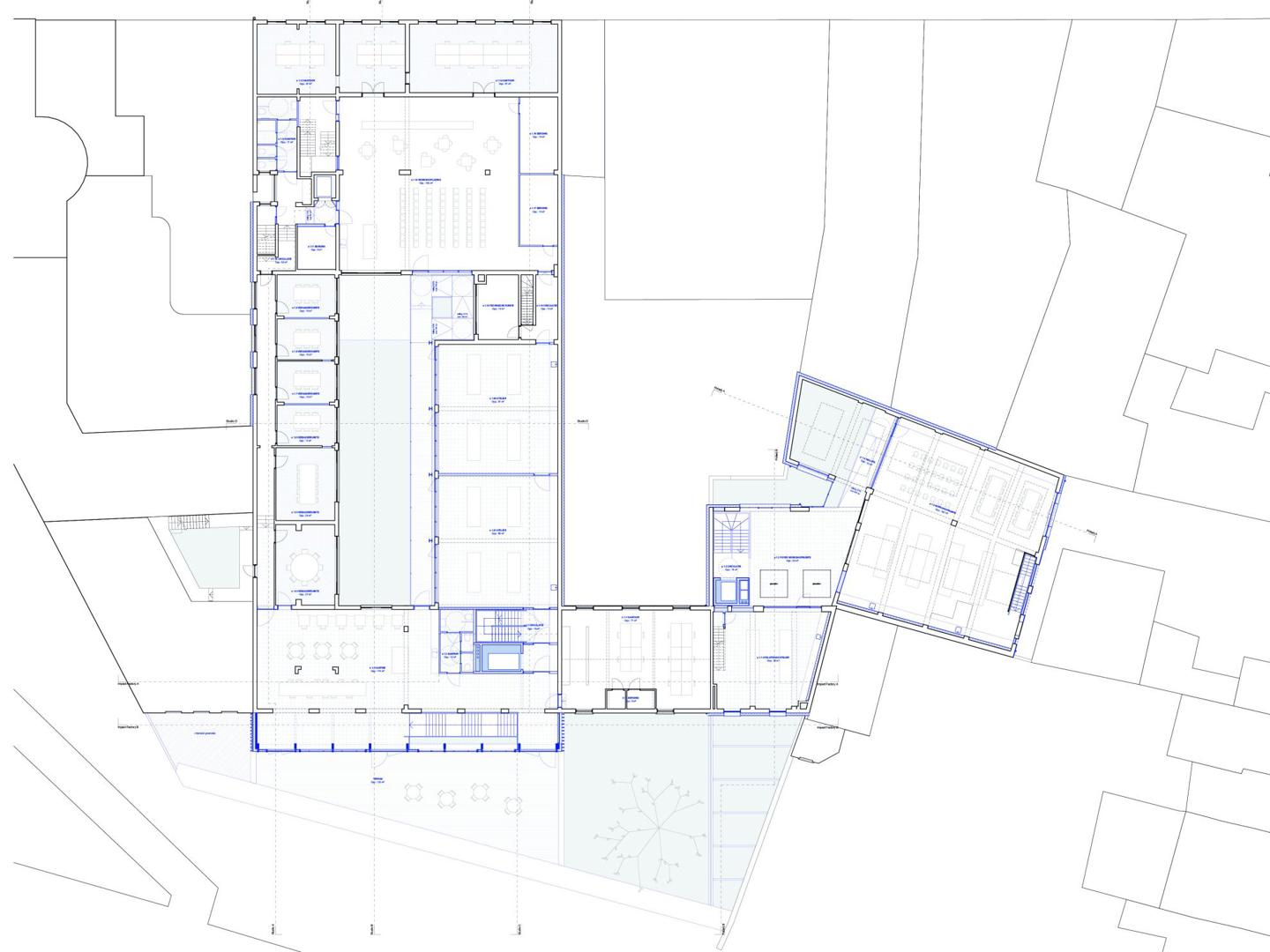
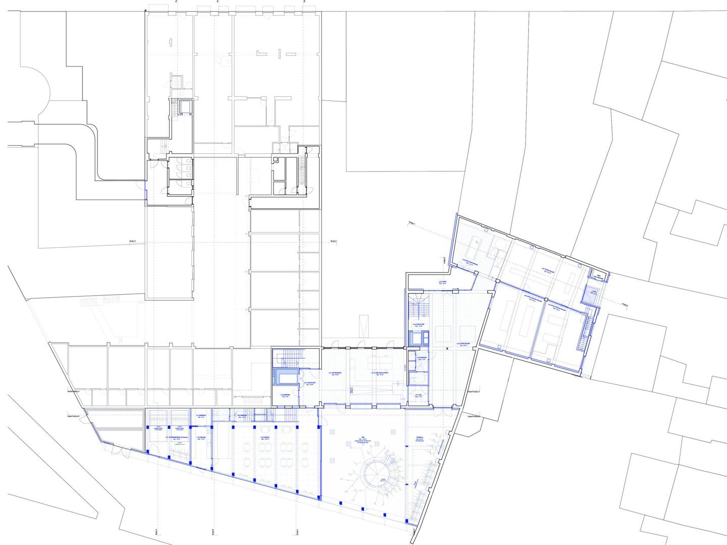
De Impact Factory verenigt de Potterij, de Studio en het Koetshuis tot een dynamisch geheel. De Potterij, een voormalige industriële wasserij in eigendom van OVAM, wordt ontwikkeld als circulair stadslabo met ruimte voor maaklabs en ateliers. De Studio is gehuisvest in een negentiende-eeuws pand van stadsarchitect François Drossaert en biedt plek aan circulaire ondernemers en impactbedrijven. Het Koetshuis ligt letterlijk tussen de Potterij en de Studio in. Door de aankoop van dit pand wordt de volledige fysieke koppeling tussen de gebouwen gerealiseerd. In dat gebouw krijgt het onthaal een plek en de site krijgt ook een nieuwe voorgevel.

Ontwerpvisie van maximaal behoud

Het concept voor de site vertrekt vanuit de gedachte dat de Impact Factory er in essentie al is en niet volledig nieuw gebouwd hoeft te worden. Er wordt resoluut gekozen voor maximaal behoud en minimale interventie, waarbij circulaire bouwprincipes de leidraad vormen voor elke ontwerpkeuze doorheen het proces. In de Studio wordt de bestaande structuur benut door kantoren en werkruimtes te organiseren rond een nieuwe galerij aan de zuidgevel. Die ingreep lost de beklemmende interne circulatie op en dient tegelijkertijd als zonnewering voor de ateliers. Terwijl de noordzijde een grote ruimte vormt met ramen op het zuiden, is de zuidzijde opgedeeld in kleinere kamers die profiteren van een doordachte lichtinval.

beleving van de Potterij

In de Potterij blijven de typerende betonconstructie, de daklichten en het stalen schrijnwerk aanwezig om de historische waarde zichtbaar te houden. Aan de zuidzijde wordt een deel van de vloer en het dak verwijderd om een patio te creëren die licht en lucht in het gebouw brengt. Wat overeind blijft, is een vierkant deel van twee bouwlagen aan de Potterijstraat, gedragen door een centrale kolom, en een compact bouwvolume van drie bouwlagen zonder kolommen aan de achterzijde. De daken van de gebouwen worden verstevigd voor een gezamenlijk dakenlandschap met daktuinen en gerecupereerde serres. Nieuwe liften ontsluiten dit dakterras via twee tuinkamers die als lantaarns boven de site uitsteken en een weids zicht bieden over Mechelen.

De Impact Tuin en Impact Hal als schakels

Een nieuw verbindend voorportaal maakt van de verschillende gebouwen een samenhangend complex. De Impact Tuin fungeert als een vestibule, een grotendeels lege ruimte van waaruit alle gebouwdelen bereikbaar zijn. De Impact Hal is een grote nieuwbouwruimte op een deel van de huidige parking van het Hof van Egmont. Hierin worden een horecazaak met 60 tot 70 zitplaatsen en een afgesloten fietsenstalling ondergebracht. Een gezamenlijk voorportaal, dat deels overdekt is voor logistieke handelingen en deels openblijft als voortuin, versterkt de dialoog tussen de diverse volumes. Die ingrepen brengen de gebouwen in een ongedwongen relatie als een grote en een kleine broer samen.

Gevarieerde werkruimtes

De site is ingericht met een breed scala aan ruimtes voor impactondernemers en creatieve bedrijven. Er worden werkplekken aangeboden in verschillende formules, waaronder 30 plekken voor coworking en een 140-tal plekken in afgesloten kantoren. Die kantoren variëren in grootte en bieden zo werkruimtes met een capaciteit van 2 tot 24 personen. Ongeveer 570 m² aan flexibele ruimte is gereserveerd voor labo’s en ateliers voor kleinschalige productie, prototyping en onderzoek. De verdeling tussen individuele en gedeelde ruimtes wordt bepaald op basis van de concrete vraag van de toekomstige gebruikers.

Publieke functies

In de Potterij wordt bovendien een laagdrempelige exporuimte en conceptstore ingericht, direct gekoppeld aan het onthaal en de ateliers. Hier kunnen producten, thema’s of projecten in wisselende opstellingen aan het publiek worden gepresenteerd. Voor ontmoetingen en kennisdeling beschikt de site over twee polyvalente eventruimtes met een capaciteit tot 120 personen, voorzien van eigen keukenfaciliteiten. De horecazaak streeft ernaar exemplarisch te zijn op het gebied van duurzame voeding en zero-waste, en fungeert als de centrale ontmoetingsplek voor bewoners en toevallige passanten.

Sociaal-circulaire impact

Naast de ecologische focus speelt de sociale dimensie een grote rol in de werking van de site. Het project is opgezet als een ecosysteem waar ondernemers, maatschappelijke organisaties, studenten en onderzoekers samenwerken aan de economie van de toekomst. Door in te zetten op tewerkstelling en activering van kwetsbare burgers fungeert de site tevens als motor voor sociale mobiliteit. De organisatie wordt ingericht als een centrum voor circulair ondernemerschap in de regio, waarbij expertise en informatie worden gebundeld via een loketwerking in samenwerking met diverse partners.

Bron Miss Miyagi & WIT architecten & Impact Factory

  • Deel dit artikel

Onze partners