a2o architecten en Broekbakema winnen ontwerpwedstrijd Bouwcampus 2.0 in Diepenbeek

  • image
  • image
  • image
  • image
  • image
  • image
  • image
  • image
  • image
  • image
  • image
  • image
  • image
  • image
  • image

De architectenbureaus a2o, met vestigingen in Hasselt en Brussel, en Broekbakema, gevestigd in Rotterdam, hebben de ontwerpwedstrijd voor Bouwcampus 2.0 in Diepenbeek gewonnen. Het winnende ontwerp vertaalt een breed gedragen visie op duurzaam en circulair bouwen. Het project combineert drie kernambities: het huisvesten van een innovatieve community in een gezonde werkomgeving, het realiseren van hoge duurzaamheidsnormen door een circulair en flexibel ontwerp, en het functioneren als uithangbord voor de sector. Deze ambities worden geïntegreerd in een coherente architecturale en landschappelijke aanpak die de campus een nieuw gezicht geeft.

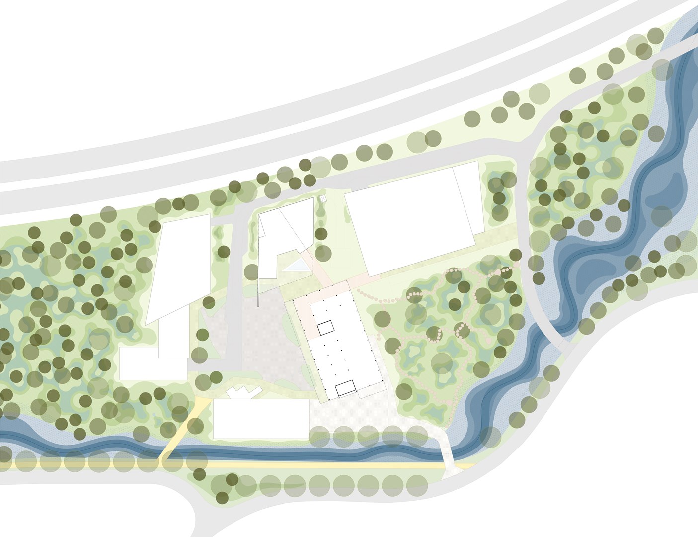
De inplanting van het gebouw op de researchcampus Diepenbeek respecteert de bestaande landschappelijke structuren. Het ontwerp sluit aan bij ecologische verbindingen die in het masterplan voorzien zijn, waardoor de natuur en de infrastructuur hand in hand gaan. Er wordt gebouwd op reeds geroerde grond, zonder extra kelderconstructie, waardoor de impact op de bodem minimaal blijft. De interactie tussen het gebouw en de omgeving is zo ontworpen dat bezoekers en gebruikers zich intuïtief door de campus kunnen bewegen.

Modulair houten grid

Het compacte volume van Bouwcampus 2.0 is doordacht opgebouwd om energetisch slim en waterpositief te functioneren. Centraal in het ontwerp staan twee klimaatschachten die het gebouw passief ventileren en de natuurlijke energiebronnen optimaal benutten. De zuidgevel herbergt een zonneschacht, terwijl de grote luchttoevoer- en afvoeropeningen op het dak bijdragen aan een gezond binnenklimaat. De inkom bevindt zich aan de noordzijde, waar de centrale trap als dynamisch ontmoetingspunt fungeert en de verschillende niveaus met elkaar verbindt.

Op structureel vlak maakt het ontwerp gebruik van een modulair houten grid met kolommen, balken en houten vloeren. Deze duurzame constructie is volledig demontabel en flexibel inzetbaar, met een levensduur die gemakkelijk een eeuw overspant. Materialen zoals kalk-hennep, hout en leemsteen dragen bij aan een bio-based en circulaire architectuur. Het gebouw is voorbereid op toekomstige uitbreidingen: volumevergrotingen tot 2800 m² kunnen snel worden toegevoegd binnen de bestaande structuur, waardoor de campus mee kan evolueren met de behoeften van de sector.

Circulaire transitie

Bouwcampus 2.0 is een sleutelelement binnen de bredere ambities van POM Limburg om Limburg DC te ontwikkelen als toonaangevend innovatiedistrict. Samen met de Health Campus vormt deze bouwcampus een platform waar innovatieve experimenten en kennisdeling in de bouwsector centraal staan. De campus speelt in op grote uitdagingen zoals afvalreductie en digitalisering, en wil bijdragen aan een circulaire transitie van de sector. Dankzij de integratie van flexibele bouwtechnieken en digitale innovaties kan Bouwcampus 2.0 als referentie dienen voor de toekomst van duurzaam bouwen.

Het project wordt gerealiseerd door a2o architecten, in nauwe samenwerking met het Nederlandse BroekBakema, een bureau met een sterke reputatie in circulair bouwen. De aannemerscombinatie Dethier - Vanhout staat in voor de uitvoering. Door de keuze voor een concurrentiegerichte dialoog in plaats van een klassieke aanbesteding, wordt het bouwproces gestuurd door een voortdurende wisselwerking tussen opdrachtgever, architect en aannemer. Dit proces laat toe om innovatieve bouwprincipes en duurzame oplossingen in de praktijk te brengen.

Bron a2o architecten

  • Deel dit artikel

Onze partners