Barozzi Veiga en Tab Architects transformeren Groeningeabdij tot museum Abby met beheerste en gelaagde architectuur

  • image
  • image
  • image
  • image
  • image
  • image
  • image
  • image
  • image
  • image
  • image
  • image
  • image
  • image
  • image
  • image
  • image
  • image
  • image
  • image
  • image
  • image
  • image
  • image
  • image
  • image
  • image
  • image

Toen de stad Kortrijk de Groeningeabdij in de jaren tachtig aankocht, stond nog niet vast welk cultureel leven deze plek ooit zou herbergen. Wat begon als toeristisch onthaal en museum 1302, transformeert nu in iets radicaal anders: Abby, een nieuw museum voor beeldende kunst dat de rijke geschiedenis van de abdij niet enkel conserveert, maar ook herschrijft. Het ontwerp van Tab Architects en het Spaanse Barozzi Veiga, in samenwerking met Koplamp Architecten voor het restauratieluik, kwam tot stand via een Open Oproep van het Team Vlaams Bouwmeester. Wat de ontwerpers voor ogen hadden, was geen klassiek museumgebouw, maar een gelaagd geheel van kamers en sferen, met ruimte voor kunst én ontmoeting.

De transformatie is het resultaat van een ontwerp dat niet inzet op spektakel, maar op precisie. Het gebouw wil een meervoudige ruimte voor reflectie zijn. Dat is het sterkst voelbaar in de manier waarop het ontwerp de historische gebouwen benadert als een reeks kamers, elk met een eigen atmosfeer, functie en verhouding tot de bezoeker.

Erfgoed als vertrekpunt

In plaats van het bestaande klakkeloos te conserveren, vertrokken de ontwerpers vanuit de intrinsieke kwaliteiten van elke ruimte. Zo werd de 16e-eeuwse kapel teruggebracht tot haar essentie: een hoge, open ruimte met een sacrale stilte. Geen overmatige restauratie, maar een verfijnde herwaardering. "In die kapel is de ruimtelijkheid de echte kwaliteit," zegt Tom Debaere van Tab Architects. "We hebben die tussenvloeren eruit gehaald om net dat terug te brengen."

Latere toevoegingen zoals mezzanines, gangen en tussenvloeren verdwenen. Niet om terug te keren naar een vermeend origineel, maar om de ruimtelijke kwaliteiten opnieuw tot hun recht te laten komen. "Je moet soms eerst afbreken om iets nieuws te kunnen opbouwen," aldus Debaere. Het is de keuze om waar nodig te durven slopen, met respect en precisie.

Restaureren is ook herinterpreteren

De restauratie van de historische volumes gebeurde met een fijngevoeligheid die typerend is voor de architecten. Buitenmuren, ramen, vloerafwerkingen en plafonds werden hersteld waar nodig, zonder ze te fetisjiseren. In het dormitorium bleef de authentieke terracotta vloer bewaard. Het plafond werd gereinigd, de ramen heropend. Nieuwe ingrepen, zoals de lange vitrinekast met collectiepresentatie, zijn helder en hedendaags — herkenbaar als toevoeging, maar niet opdringerig.

Technisch werd alles herzien: van HVAC tot museale verlichting, met aandacht voor duurzaamheid en comfort. De restauratie is dus niet alleen esthetisch, maar ook functioneel toekomstgericht. Het erfgoed werd leesbaar gemaakt, niet bevroren.

Het paviljoen als zelfstandig gebaar

Op de plek van een vroegere aanbouw verrijst nu een nieuw volume: het paviljoen. De enige bovengrondse uitbreiding van het museum verwijst in zijn vorm naar de schuine daken van de abdij. Tegelijk is het een markant stedelijk baken, opgetrokken in donkergrijze baksteen van gerecycleerd materiaal. "We wilden dat het volume autonoom zou zijn, maar wel zou resoneren met de rest van de site," vertelt Debaere. "Het is smal, lang en even hoog als de kapel. Een zelfstandig gebaar, maar in continuïteit."

Binnenin huisvest het paviljoen het Abby Café, ook wel de ‘eetkamer’ genoemd. De rode vloer, rode wanden en royale raampartijen zorgen voor een warme sfeer die contrasteert met de rest van het museum. "We wilden een soort huiselijkheid binnenbrengen," zegt Debaere. "Het moest niet zomaar café-architectuur zijn, maar een plek waar je blijft hangen en ook in contact komt met de kunst."

Het museum als huis

Die huiselijkheid is geen toeval, maar ligt ingebed in het ontwerpconcept. Al tijdens de wedstrijdfase spraken de architecten over een opeenvolging van kamers, met elk hun eigen ruimtelijkheid. Die benadering werd later overgenomen in de museale werking. "Dat idee van salon, living, eetkamer zat er van bij het begin in," aldus Debaere. "De architectuur moest een soort thuisgevoel creëren, zonder letterlijk te worden."

Bezoekers worden ontvangen in de stadsliving, bewegen door de white boxes, verdwalen in de kapel of het salon, of nestelen zich in het Abby Café. Elke ruimte nodigt uit tot een ander soort aandacht. De opeenvolging van zalen is geen lineair parcours, maar een aaneenrijging van stemmingen en sferen.

Circulatie als narratief

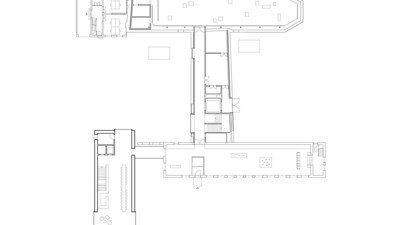
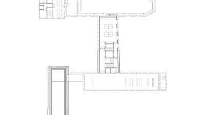
De leesbaarheid van het parcours is geen toeval. De plattegrond is doordacht: één centrale trap en lift verbinden alle niveaus. Dat levert een compact, helder en flexibel gebouw op, waarin de bezoeker intuïtief navigeert. "We hebben gezocht naar een zuiver plan," zegt Debaere, "waarbij je met een minimum aan middelen een maximum aan mogelijkheden biedt."

De afwisseling van gesloten en open ruimtes, hoge en lage plafonds, zichtlijnen en intieme hoekjes zorgt voor ritme en variatie. De logica van het plan stuurt het verhaal van het museum, zonder het op te leggen.

Ondergronds en open

Het merendeel van de tentoonstellingsoppervlakte bevindt zich onder de grond. Twee ondergrondse white boxes bieden flexibele, state-of-the-art museumzalen, vrij van historische ballast. Die keuze was niet louter technisch, maar ruimtelijk en landschappelijk: bovenop de zalen ligt nu een binnentuin én een nieuwe doorsteek naar de Groeningestraat. "We hebben de ondergrondse uitbreiding vooral gedaan om het park te vrijwaren," zegt Debaere. "Het programma bovengronds realiseren zou veel van de buitenruimte opgeofferd hebben."

De zalen ondergronds zijn bewust neutraal gehouden. "Ze zijn de logische aanvulling op de andere ruimtes, die veel uitgesprokener zijn," legt hij uit. De kapel, het dormitorium, het paviljoen: elk heeft een uitgesproken karakter. De white boxes zorgen voor balans.

Buiten is ook binnen

De tuin boven de ondergrondse zalen is meer dan een restzone. Het is een nieuwe publieke ruimte in het hart van de stad. Met sculpturen, banken, openheid en doorzichten vormt ze een kamer zonder dak. "Dit wordt evengoed een kamer van het geheel," zegt Debaere. "Het park maakt even goed deel uit van het museum, als het museum deel uitmaakt van het park."

In de binnentuin komen twee kunstintegraties samen: de zelfverzonken jongeling van Georges Minne en de oplichtende neonbloem van Daan Gielis. Introspectie en kwetsbaarheid krijgen hier letterlijk plek, zonder dat de ruimte haar openheid verliest.

Kunst in context

Ook elders is kunst subtiel in de architectuur verweven. Zo verwerkte kunstenaar Kris Martin een reeks glasmozaïeken in de muurkapellen van het voormalige klooster. Zijn werk Creation verwijst naar het scheppingsverhaal, maar doet dat op een radicaal bescheiden manier. Geen grote gebaren, maar kleine tekens van zingeving, rust en reflectie — in dialoog met de plek, niet erbovenop.

Het is emblematisch voor de hele benadering van dit project: ambitie gekoppeld aan ingetogenheid. Abby is een museum waar je kunst niet enkel bekijkt, maar waarin je als bezoeker wordt opgenomen in het geheel.

Een vanzelfsprekende samenwerking

Het project is  het resultaat van een intense samenwerking tussen Barozzi Veiga en Tab Architects. Zij brengen kennis van buiten België binnen, wij brengen de lokale context," verduidelijkt Debaere.

Die collaboratieve werkwijze is voelbaar in het resultaat. Geen internationaal statement, geen vervlaamsing van een buitenlands idee, maar een gebouw dat even sterk geworteld is in de plek als in het vakmanschap van twee complementaire ontwerppraktijken.

Een vanzelfsprekende aanwezigheid

Wat architecturaal sterk is aan Abby, is niet de monumentaliteit — die zit vooral in de kapel — maar de balans. Balans tussen oud en nieuw, tussen zichtbaar en verborgen, tussen museale neutraliteit en ruimtelijke intensiteit. Sommige ruimtes nodigen uit tot verstilling, andere tot ontmoeting. Het geheel voelt coherent, maar niet voorspelbaar.

De term ‘vanzelfsprekende aanwezigheid’, die Debaere gebruikt om hun aanpak te omschrijven, is misschien wel de beste samenvatting van Abby. Of misschien ook: een stille monumentaliteit. Het museum stelt zich niet op als icoon, maar nestelt zich in de stad. Het is een plek die bewijst dat architectuur niet luid hoeft te zijn om een sterke indruk na te laten.

  • Deel dit artikel

Onze partners