Circulaire economie centraal bij renovatie sociaal woonproject Generaal Jacques (Karbon’ & Label)

  • image
  • image
  • image
  • image
  • image
  • image
  • image
  • image
  • image
  • image
  • image
  • image
  • image
  • image
  • image
  • image

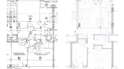
Recent zijn de werken gestart van het sociaal huisvestingsproject Generaal Jacques in Elsene. Het gebouw dateert uit het begin van de jaren 1960 en is ontworpen als flatgebouw met 61 appartementen voor ‘gehuwde rijkswachters’: 5 appartementen met 3 slaapkamers en 56 appartementen met 2 slaapkamers. De Brusselse Gewestelijke Huisvestingsmaatschappij (BGHM) wil het gebouw nu renoveren om de levensduur ervan met minstens 50 tot 60 jaar te verlengen. Met het oog daarop worden er delen duurzaam gerenoveerd en worden onderdelen die te verouderd zijn, vervangen.

Het gerenoveerde gebouw zal nog steeds bestemd blijven voor huisvesting, maar de typologie wordt door ontwerpbureaus Karbon’ architecture et urbanisme en Label architecture hedendaagser gemaakt: de privébuitenruimten worden vergroot, er wordt beter geïsoleerd en de keuken wordt opengemaakt naar de woonkamer.

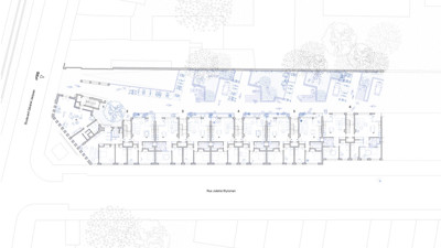
De meer uitgebreide werken aan de gemeenschappelijke ruimten, zoals de tuin, de ondergrondse parking, de Engelse binnenplaats en het gemeenschapslokaal, zijn bedoeld om bewoners ontmoetingsruimten te bieden en tegelijkertijd zachte mobiliteit te stimuleren.

 

Circulaire economie

De sociale woningen, beheerd door OVM BinHôme, worden gerenoveerd volgens een duurzame aanpak: de circulaire economie. Het te renoveren gebouw bevat immers een grote hoeveelheid materialen die, gezien hun kwaliteit, hergebruikt zouden kunnen worden. Voorafgaand aan de projectstudie is een inventaris gemaakt van alle herbruikbare materialen op het terrein.

De BGHM vindt het belangrijk om, in het kader van de geplande werken, het hergebruik en de renovatie van materialen aan te moedigen. Dit maakt het mogelijk om de kostprijs van bepaalde posten te verlagen of, indien dit niet mogelijk is, de kwaliteit van de materialen te verbeteren tegen een vergelijkbare kostprijs, en maakt dus deel uit van een aanpak die circulaire economie nastreeft.

 

Milieu-ambities

Het doel was dus om de bestaande materialen te valoriseren door zoveel mogelijk onderdelen van het gebouw te behouden. Voor de nieuwe gedeelten is het de bedoeling materialen te gebruiken uit hernieuwbare bronnen, uit hergebruik, die zeer duurzaam zijn of een lage milieu-impact hebben.

Voor alle delen van het gebouw is er een zorgvuldige keuze gemaakt tussen restauratie, renovatie of onderhoud, waarbij prioriteit is gegeven aan werken met de minste impact op het milieu, maar de grootste op de architectuur. Het doel hierbij is om het gebouw aan te passen aan de huidige normen en milieu-ambities (energie, mobiliteit, waterbeheer, biodiversiteit, inclusiviteit) en tegelijkertijd de impact van de werken op het milieu, hulpbronnen, transport en afval tot een minimum te beperken.

Bron BGHM

  • Deel dit artikel

Onze partners